Bildegalleri

Velkommen til Nylænde 6!
Solgt
Lys og romslig 3-roms m/vestvendt balkong| V.vann inkl.|Attraktiv og sentral beliggenhet| God planløsning | Peis
Prisantydning4 590 000 kr
Nøkkelinfo
- Boligtype
- Leilighet
- Eieform
- Andel
- Soverom
- 2
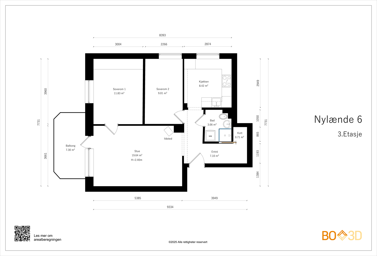
- Internt bruksareal
- 63 m² (BRA-i)
- Bruksareal
- 77 m²
- Eksternt bruksareal
- 14 m² (BRA-e)
- Balkong/Terrasse
- 7 m² (TBA)
- Etasje
- 3
- Byggeår
- 1955
- Energimerking
- E - Rød
- Rom
- 3
- Tomteareal
- 27 037 m² (eiet)
Fasiliteter
Balkong/Terrasse
Barnevennlig
Bredbåndstilknytning
Kabel-TV
Peis/Ildsted
Rolig
Sentralt
Vaktmester-/vektertjeneste
Turterreng
Om boligen
Attraktiv 3-roms leilighet på Lambertseter/Karlsrud med flott intern beliggenhet i Nylænde borettslag, i en rolig og familievennlig blindvei. Leiligheten har en gjennomgående god standard og svært god planløsning. Her får du en romslig entré, stor stue med plass til sofagruppe og spisebord, 2 soverom og separat kjøkken. Flott utsikt og lite innsyn.
Verdt å merke seg:
- 3-roms med god standard, flytt rett inn!
- Godt med oppbevarings muligheter i 3 boder
- Vestvendt balkong med gode solforhold
- Delikat kjøkken fra 2017
- Hyggelig peisovn i stuen
- Nye vinduer og balkongdør i 2011
- Leiligheten ligger usjenert til
- T-bane til Oslo sentrum på ca. 20 min
- Nærhet til Lambertseter senter med "alt" man trenger, samt Symra Kino
Verdt å merke seg:
- 3-roms med god standard, flytt rett inn!
- Godt med oppbevarings muligheter i 3 boder
- Vestvendt balkong med gode solforhold
- Delikat kjøkken fra 2017
- Hyggelig peisovn i stuen
- Nye vinduer og balkongdør i 2011
- Leiligheten ligger usjenert til
- T-bane til Oslo sentrum på ca. 20 min
- Nærhet til Lambertseter senter med "alt" man trenger, samt Symra Kino
NB: Knappen for å vise hele beskrivelsen har kun en visuell effekt.
NB: Knappen for å vise hele beskrivelsen har kun en visuell effekt.
Salgsoppgaven beskriver vesentlig og lovpålagt informasjon om eiendommen
Se komplett salgsoppgaveNyttige lenker
Nærområdet
Nordvik Østensjø
Annonseinformasjon
| FINN-kode | 407512631 |
|---|---|
| Sist endret | 20. aug. 2025 17:58 |
| Referanse | 18-0047/25 |
Annonsene kan være mangelfulle i forhold til lovpålagt opplysningsplikt. Før bindende avtale inngås oppfordres interessenter til å innhente komplett informasjon fra meglerforetaket, selger eller utleier.































