Bildegalleri

Nora Larsen Rørvik v/ Krogsveen har gleden av å presentere Regnbueveien 3!
Solgt
Teisen
Sjelden mulighet! Rålekker 3R toppleilighet | Høyt og fritt | Sydvendt, innglasset balkong | Attraktivt | Garasjeopsjon*
Prisantydning4 800 000 kr
Nøkkelinfo
- Boligtype
- Leilighet
- Eieform
- Andel
- Soverom
- 2
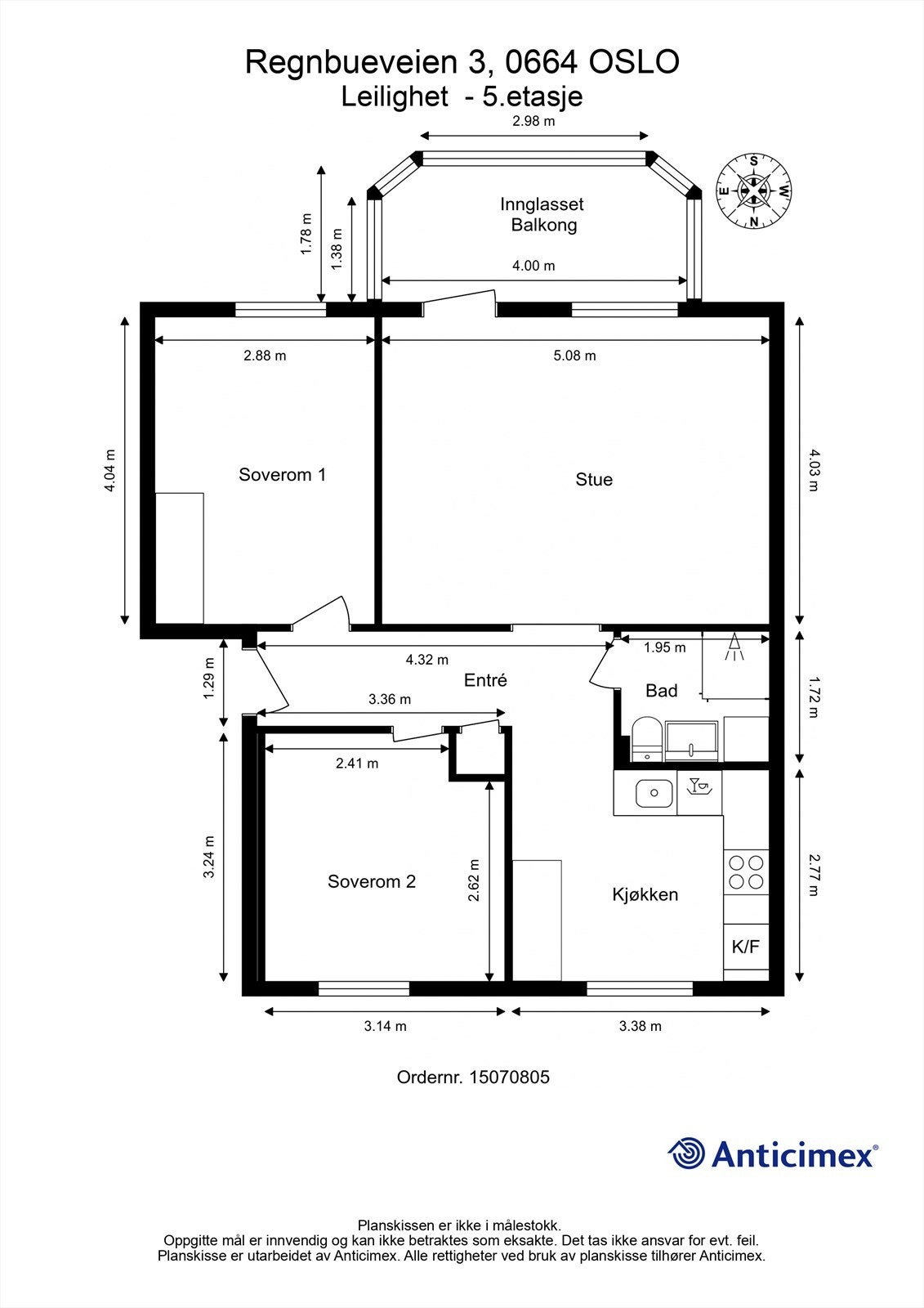
- Internt bruksareal
- 65 m² (BRA-i)
- Bruksareal
- 87 m²
- Eksternt bruksareal
- 11 m² (BRA-e)
- Innglasset balkong
- 11 m² (BRA-b)
- Etasje
- 5
- Byggeår
- 1953
- Energimerking
- G - Rød
- Rom
- 3
- Tomteareal
- 99 627 m² (eiet)
Fasiliteter
Balkong/Terrasse
Barnevennlig
Bredbåndstilknytning
Fellesvaskeri
Garasje/P-plass
Kjæledyr tillatt
Parkett
Rolig
Sentralt
Utsikt
Turterreng
Om boligen
Nora Larsen Rørvik v/ Krogsveen har gleden av å presentere Regnbueveien 3! En lekker og innholdsrik 3-roms toppleilighet som ligger høyt og fritt til på Teisen! Svært god planløsning og gode sol- og utsiktsforhold! Leiligheten holder god standard med tidsriktige fargevalg. Sjelden mulighet i borettslaget!
Leiligheten har en praktisk planløsning med separat stue- kjøkkenløsning, romslig bad og to soverom av god størrelse.
Leiligheten har en praktisk planløsning med separat stue- kjøkkenløsning, romslig bad og to soverom av god størrelse.
- Sydvendt balkong med innglassing fra 2022 og solskjerming
- Hyggelige, grønne og barnevennlige fellesområder
- Opsjon på kjøp av garasjeplass kr 190.000,-*
- Høyt og fritt med lite innsyn og flott utsyn
- Kollektivtilbud i umiddelbar nærhet
- God skapplass i leiligheten
- To romslige soverom
- God lagring i 3 boder
- Ingen gjenboere
Velkommen!
NB: Knappen for å vise hele beskrivelsen har kun en visuell effekt.
NB: Knappen for å vise hele beskrivelsen har kun en visuell effekt.
Salgsoppgaven beskriver vesentlig og lovpålagt informasjon om eiendommen
Se komplett salgsoppgaveNyttige lenker
Nærområdet
Krogsveen Hasle
Verdien av en god megler.
Annonseinformasjon
| FINN-kode | 407074861 |
|---|---|
| Sist endret | 10. aug. 2025 12:14 |
| Referanse | KR37.25178 |
Annonsene kan være mangelfulle i forhold til lovpålagt opplysningsplikt. Før bindende avtale inngås oppfordres interessenter til å innhente komplett informasjon fra meglerforetaket, selger eller utleier.










































