Bildegalleri

Houssam Ben Zrelli v/EIE eiendomsmegling har gleden av å presentere Kalbakkstubben 24 - en lys og innbydende 2-roms toppleilighet med arealeffektiv planløsning.
Solgt
Kalbakken
Lys og pen 2-R toppleilighet! | Sørvestvendt, inngl. balkong | Fyring, internett og TV inkl. | Sentralt på Kalbakken
Prisantydning3 290 000 kr
Nøkkelinfo
- Boligtype
- Leilighet
- Eieform
- Andel
- Soverom
- 1
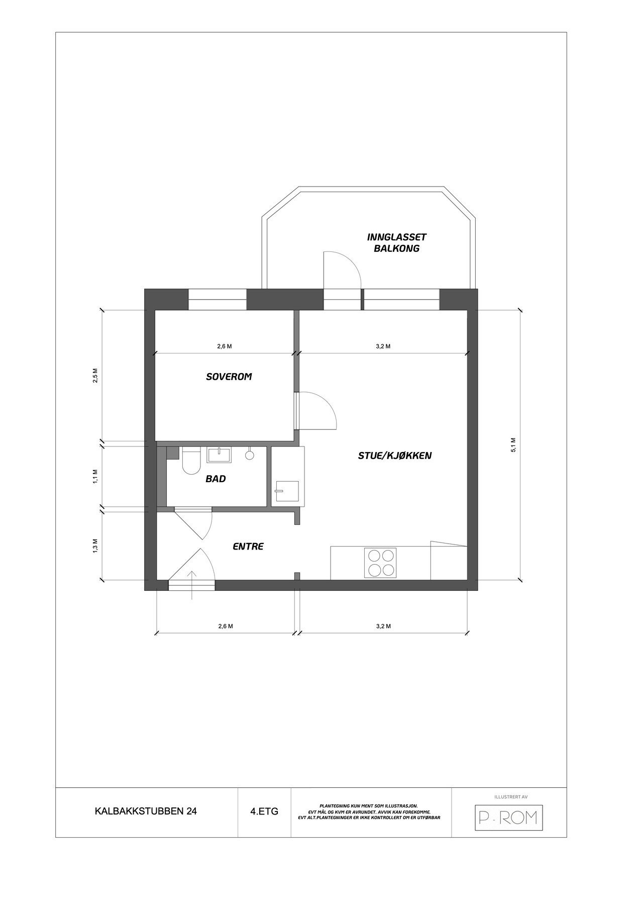
- Internt bruksareal
- 30 m² (BRA-i)
- Bruksareal
- 44 m²
- Eksternt bruksareal
- 7 m² (BRA-e)
- Innglasset balkong
- 7 m² (BRA-b)
- Etasje
- 4
- Byggeår
- 1955
- Energimerking
- G - Mørkegrønn
- Rom
- 2
- Tomteareal
- 47 373 m² (eiet)
Fasiliteter
Barnevennlig
Balkong/Terrasse
Garasje/P-plass
Kabel-TV
Fiskemulighet
Offentlig vann/kloakk
Turterreng
Vaktmester-/vektertjeneste
Fellesvaskeri
Sentralt
Bredbåndstilknytning
Moderne
Rolig
Bademulighet
Om boligen
Houssam Ben Zrelli v/EIE eiendomsmegling har gleden av å presentere Kalbakkstubben 24 - en lys og innbydende 2-roms toppleilighet med arealeffektiv planløsning. Perfekt for førstegangskjøpere, par eller deg som ønsker å bo sentralt, men rolig. Leiligheten ligger i populære Akerli borettslag med kort vei til T-bane, turområder og Kalbakken shopping.
Kvaliteter:
- Arealeffektiv planløsning
- Attraktiv fargepalett
- Åpen stue/kjøkkenløsning
- Lunt soverom med garderobeskap
- Bad pusset opp i regi av brl. i 2006
- Vinduer fra 2013
- Innglasset, sørvestvendt balkong på 7 kvm
- Flott utsyn og gode solforhold
- 4. etg uten innsyn
- Fyring, internett og TV inkl.
- Automatsikringer
- Fellesvaskeri
- Kjeller og loftsbod
- Mulighet for å leie parkering/garasje
Mangler du egenkapital? Boligen kan kjøpes med Finit Deleie.
Kvaliteter:
- Arealeffektiv planløsning
- Attraktiv fargepalett
- Åpen stue/kjøkkenløsning
- Lunt soverom med garderobeskap
- Bad pusset opp i regi av brl. i 2006
- Vinduer fra 2013
- Innglasset, sørvestvendt balkong på 7 kvm
- Flott utsyn og gode solforhold
- 4. etg uten innsyn
- Fyring, internett og TV inkl.
- Automatsikringer
- Fellesvaskeri
- Kjeller og loftsbod
- Mulighet for å leie parkering/garasje
Mangler du egenkapital? Boligen kan kjøpes med Finit Deleie.
NB: Knappen for å vise hele beskrivelsen har kun en visuell effekt.
NB: Knappen for å vise hele beskrivelsen har kun en visuell effekt.
Salgsoppgaven beskriver vesentlig og lovpålagt informasjon om eiendommen
Se komplett salgsoppgaveNyttige lenker
Nærområdet
EIE eiendomsmegling Stovner
Annonseinformasjon
| FINN-kode | 407042335 |
|---|---|
| Sist endret | 26. juni 2025 10:53 |
| Referanse | 75250114 |
Annonsene kan være mangelfulle i forhold til lovpålagt opplysningsplikt. Før bindende avtale inngås oppfordres interessenter til å innhente komplett informasjon fra meglerforetaket, selger eller utleier.

































