Bildegalleri

Nordvik Tønsberg v/Jørgen Nyhus har gleden av å ønske velkommen til Strandveien 35A! Foto: Fotograf Magik.
Husøy havn!
Drømmeleilighet i vannkanten | 2 balkonger m/sjøutsikt | Garasjeplass m/billader | Mulighet for båtplass | ikke boplikt!
Prisantydning8 120 000 kr
Nøkkelinfo
- Boligtype
- Leilighet
- Eieform
- Eier (Selveier)
- Soverom
- 2
- Internt bruksareal
- 98 m² (BRA-i)
- Bruksareal
- 106 m²
- Eksternt bruksareal
- 8 m² (BRA-e)
- Balkong/Terrasse
- 27 m² (TBA)
- Etasje
- 3
- Byggeår
- 2018
- Energimerking
- A - Gul
- Rom
- 3
- Tomteareal
- 2 770 m² (eiet)
Fasiliteter
Balkong/Terrasse
Garasje/P-plass
Heis
Kjæledyr tillatt
Offentlig vann/kloakk
Parkett
Rolig
Utsikt
Bademulighet
Turterreng
Lademulighet
Visning
Alle våre visninger har påmelding. På denne måten sikrer vi at megler har god oversikt og tid til å imøtekomme alle interessenter. Meld deg på visning ved å trykke på lenken visningspåmelding.
VisningspåmeldingOm boligen
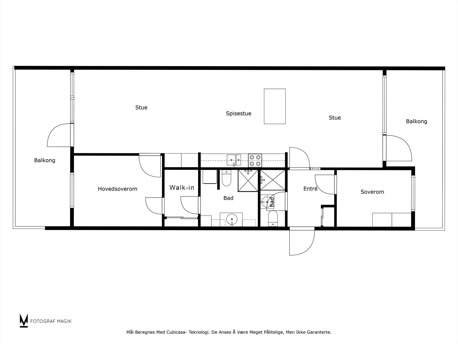
Velkommen til Strandveien 35, en påkostet, moderne og stilfull 3-roms selveierleilighet fra 2018. Her bor du rett ved vannkanten, og kan nyte utmerkede solforhold og nydelig utsikt fra to store, overbygde balkonger. I nærområdet er det golfbane, spennende kyststi, badestrender og båtbrygge.
Leiligheten fremstår med tidsmessige farge- og materialvalg og oppgraderte løsninger og den ekstra takhøyden gir romfølelse og særpreg til leiligheten, mens vannbåren varme gir en lun varme. Stuen og kjøkkenet danner et langstrakt, innbydende allrom m/utmerket møbleringsfrihet, og kjøkkenet fra HTH har kvalitetsmessige, integrerte hvitevarer. Videre er det et bad/wc/vaskerom, et bad/wc, et garderoberom og to gode soverom. Det er garasjeplass og ekstern lagringsbod.
Leiligheten fremstår med tidsmessige farge- og materialvalg og oppgraderte løsninger og den ekstra takhøyden gir romfølelse og særpreg til leiligheten, mens vannbåren varme gir en lun varme. Stuen og kjøkkenet danner et langstrakt, innbydende allrom m/utmerket møbleringsfrihet, og kjøkkenet fra HTH har kvalitetsmessige, integrerte hvitevarer. Videre er det et bad/wc/vaskerom, et bad/wc, et garderoberom og to gode soverom. Det er garasjeplass og ekstern lagringsbod.
NB: Knappen for å vise hele beskrivelsen har kun en visuell effekt.
NB: Knappen for å vise hele beskrivelsen har kun en visuell effekt.
Salgsoppgaven beskriver vesentlig og lovpålagt informasjon om eiendommen
Se komplett salgsoppgaveNyttige lenker
Nærområdet
Nordvik Tønsberg
Annonseinformasjon
| FINN-kode | 407037216 |
|---|---|
| Sist endret | 01. des. 2025 14:07 |
| Referanse | 25-0076/25 |
Annonsene kan være mangelfulle i forhold til lovpålagt opplysningsplikt. Før bindende avtale inngås oppfordres interessenter til å innhente komplett informasjon fra meglerforetaket, selger eller utleier.


















































