Bildegalleri

Velkommen til Lauritz Hervigs vei 108A
Inaktiv
Flott og romslig 3-roms endeleilighet i høy 1. etasje | Fin utsikt | Innglasset balkong | "Alt" inkl. i felleskost
Prisantydning2 090 000 kr
Nøkkelinfo
- Boligtype
- Leilighet
- Eieform
- Andel
- Soverom
- 2
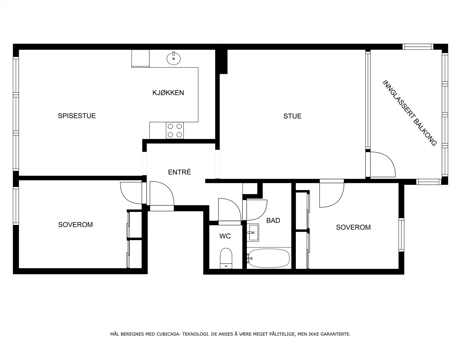
- Internt bruksareal
- 70 m² (BRA-i)
- Bruksareal
- 84 m²
- Eksternt bruksareal
- 5 m² (BRA-e)
- Innglasset balkong
- 9 m² (BRA-b)
- Etasje
- 1
- Byggeår
- 1967
- Rom
- 3
- Tomteareal
- 109 000 m² (eiet)
Fasiliteter
Balkong/Terrasse
Barnevennlig
Bredbåndstilknytning
Kjæledyr tillatt
Kabel-TV
Offentlig vann/kloakk
Rolig
Sentralt
Vaktmester-/vektertjeneste
Turterreng
Om boligen
Velkommen til Lauritz Hervigs vei 108A presentert av Alban Hasi v/Nordvik Bolig.
Leiligheten er en gjennomgående 3-roms endeleilighet i høy første etasje. Fra leiligheten er det flott utsikt mot grønne og naturskjønne omgivelser. Leiligheten har en god planløsning og inneholder blant annet to lyse og romslige soverom, en innbydende stue med gode møbleringsmuligheter, og et lyst kjøkken med gode arbeidsflater og oppbevaringsplass.
Badet/WC har potensiale for oppgradering, og gir nye eiere mulighet til å sette sitt eget preg. Fra stuen er det utgang til en solrik og innglasset balkong på hele 9 kvm et perfekt sted å nyte lange sommerkvelder.
Dette er et populært og sentralt boligområde på Fjell, med kort gangavstand til barneskole, offentlig transport og dagligvarebutikker.
Leiligheten er en gjennomgående 3-roms endeleilighet i høy første etasje. Fra leiligheten er det flott utsikt mot grønne og naturskjønne omgivelser. Leiligheten har en god planløsning og inneholder blant annet to lyse og romslige soverom, en innbydende stue med gode møbleringsmuligheter, og et lyst kjøkken med gode arbeidsflater og oppbevaringsplass.
Badet/WC har potensiale for oppgradering, og gir nye eiere mulighet til å sette sitt eget preg. Fra stuen er det utgang til en solrik og innglasset balkong på hele 9 kvm et perfekt sted å nyte lange sommerkvelder.
Dette er et populært og sentralt boligområde på Fjell, med kort gangavstand til barneskole, offentlig transport og dagligvarebutikker.
NB: Knappen for å vise hele beskrivelsen har kun en visuell effekt.
NB: Knappen for å vise hele beskrivelsen har kun en visuell effekt.
Salgsoppgaven beskriver vesentlig og lovpålagt informasjon om eiendommen
Se komplett salgsoppgaveNyttige lenker
Nærområdet
Nordvik Grünerløkka
Annonseinformasjon
| FINN-kode | 407036647 |
|---|---|
| Sist endret | 28. mai 2025 11:14 |
| Referanse | 64-0087/25 |
Annonsene kan være mangelfulle i forhold til lovpålagt opplysningsplikt. Før bindende avtale inngås oppfordres interessenter til å innhente komplett informasjon fra meglerforetaket, selger eller utleier.


























