Bildegalleri

Aktiv Eiendomsmegling ved Lise Blomberg har gleden av å presentere Skoleveien 51!
Sørumsand
Fin enebolig over to plan med barnevennlig beliggenhet | Oppgradert i de senere år | Stor terrasse | Kort vei til alt!
Prisantydning5 790 000 kr
Nøkkelinfo
- Boligtype
- Enebolig
- Eieform
- Eier (Selveier)
- Soverom
- 4
- Internt bruksareal
- 161 m² (BRA-i)
- Bruksareal
- 161 m²
- Balkong/Terrasse
- 126 m² (TBA)
- Etasje
- 2
- Byggeår
- 1971
- Rom
- 5
- Tomteareal
- 832 m² (eiet)
Fasiliteter
Balkong/Terrasse
Barnevennlig
Offentlig vann/kloakk
Parkett
Rolig
Sentralt
Bademulighet
Turterreng
Visning
Ved annonsert visning er det viktig at du melder deg på visningen ved å bruke visningspåmeldingsknappen eller kontakter megler. Annonserte visninger hvor det ikke er noen påmeldte innen kl. 12.00 på visningsdagen vil ikke bli avholdt. For visninger utover dette, ta direkte kontakt med megler.
VisningspåmeldingOm boligen
Aktiv Eiendomsmegling ved Lise Blomberg har gleden av å presentere Skoleveien 51.
Skoleveien 51 er en familievennlig enebolig med attraktiv og barnevennlig beliggenhet i Sørumsand. Her kan man flytte rett inn i et moderne og praktisk hjem - og samtidig ha den ypperlige fordelen av gangavstand til både skole, barnehage, bademuligheter og servicetilbud!
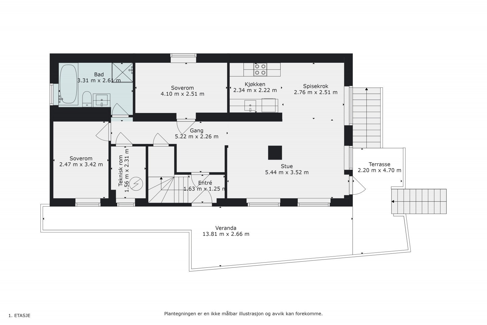
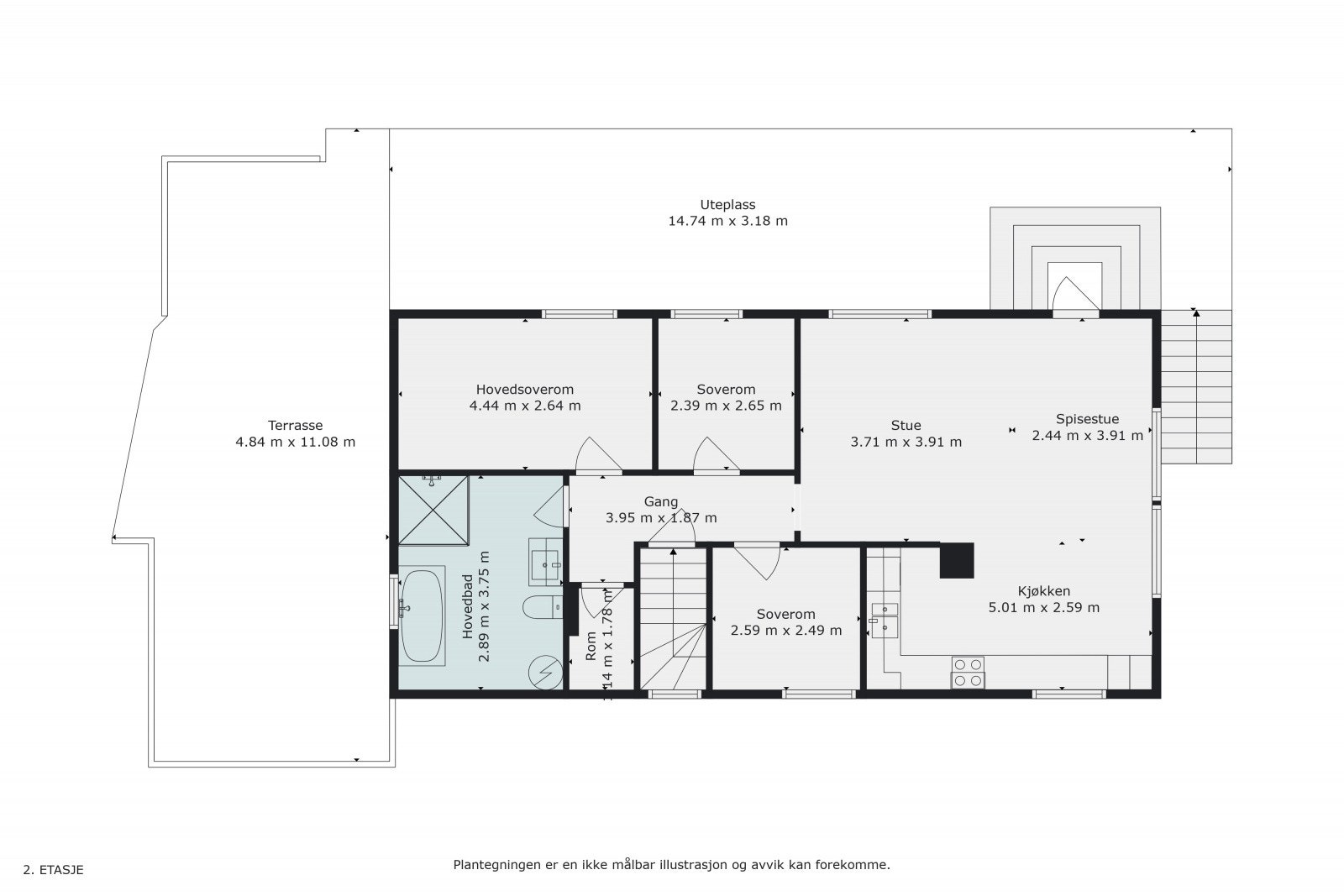
Eneboligen strekker seg over to etasjer og i hovedetasjen inneholder entré, tre soverom, åpen kjøkken/stue og et pent baderom. I underetasjen er det entré, soverom, bad og innredet kjøkken/stue i åpen løsning. Deler av underetasjen er ikke bruksendret.
I tillegg har man gleden av hyggelige uteplasser som terrasse og hage. Parkering gjøres på egen tomt.
Velkommen til visning!
Skoleveien 51 er en familievennlig enebolig med attraktiv og barnevennlig beliggenhet i Sørumsand. Her kan man flytte rett inn i et moderne og praktisk hjem - og samtidig ha den ypperlige fordelen av gangavstand til både skole, barnehage, bademuligheter og servicetilbud!
Eneboligen strekker seg over to etasjer og i hovedetasjen inneholder entré, tre soverom, åpen kjøkken/stue og et pent baderom. I underetasjen er det entré, soverom, bad og innredet kjøkken/stue i åpen løsning. Deler av underetasjen er ikke bruksendret.
I tillegg har man gleden av hyggelige uteplasser som terrasse og hage. Parkering gjøres på egen tomt.
Velkommen til visning!
NB: Knappen for å vise hele beskrivelsen har kun en visuell effekt.
NB: Knappen for å vise hele beskrivelsen har kun en visuell effekt.
Salgsoppgaven beskriver vesentlig og lovpålagt informasjon om eiendommen
Se komplett salgsoppgaveNærområdet
Aktiv Kløfta
Annonseinformasjon
| FINN-kode | 407029597 |
|---|---|
| Sist endret | 04. des. 2025 13:04 |
| Referanse | 1205250132 |
Annonsene kan være mangelfulle i forhold til lovpålagt opplysningsplikt. Før bindende avtale inngås oppfordres interessenter til å innhente komplett informasjon fra meglerforetaket, selger eller utleier.



























