Bildegalleri

EIE eiendomsmegling ved Amrinder Singh har gleden av å presentere Anders Buens gate 17!
Solgt
Lademoen
Lekker og modernisert 2-roms selveier i 2. etg. Kjøkken fra 2022. Peis. Balkong. 3 boder. Nær Solsiden og studiesteder.
Prisantydning2 790 000 kr
Nøkkelinfo
- Boligtype
- Leilighet
- Eieform
- Eier (Selveier)
- Soverom
- 1
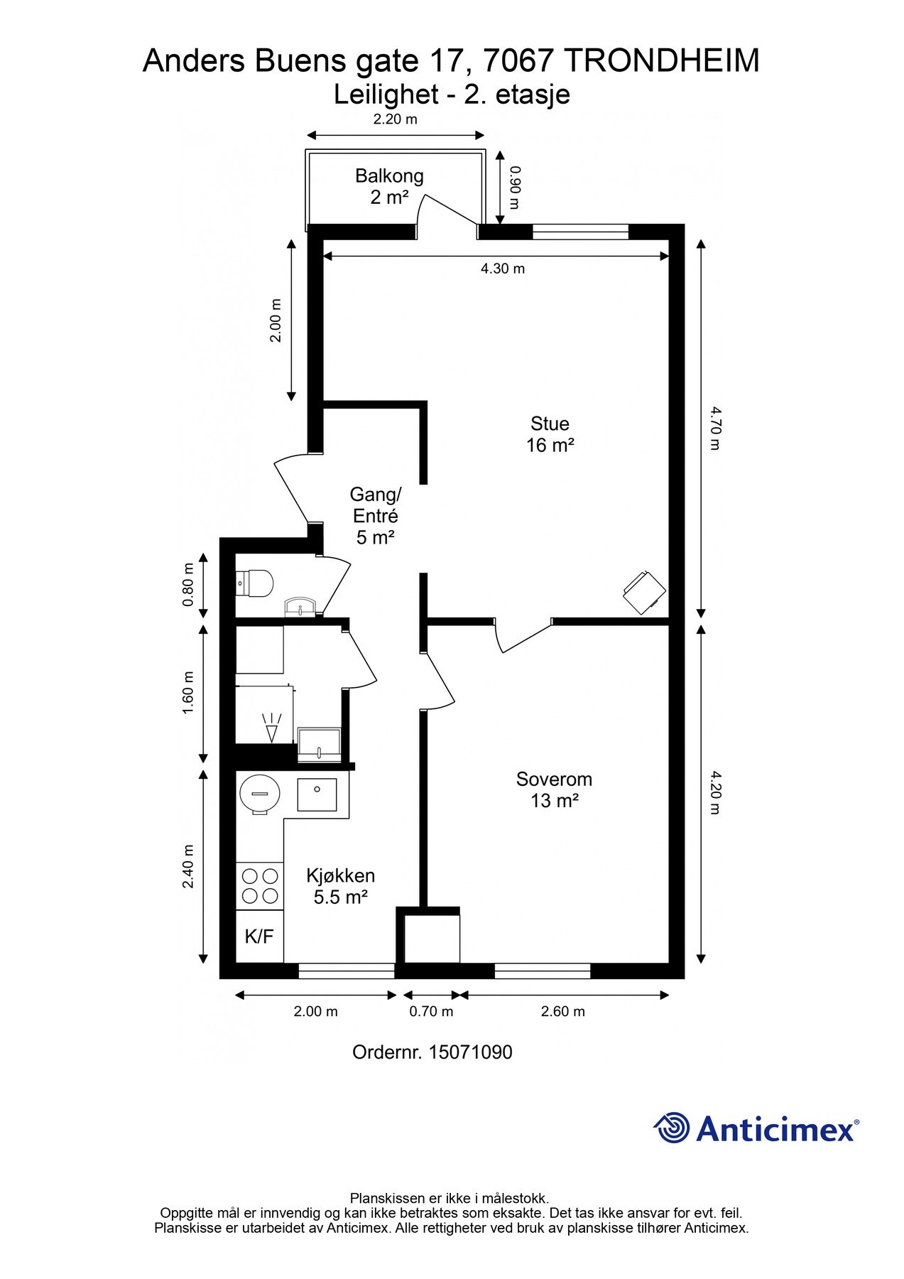
- Internt bruksareal
- 47 m² (BRA-i)
- Bruksareal
- 58 m²
- Eksternt bruksareal
- 11 m² (BRA-e)
- Balkong/Terrasse
- 2 m² (TBA)
- Etasje
- 2
- Byggeår
- 1935
- Energimerking
- E - Oransje
- Rom
- 2
- Tomteareal
- 1 533 m² (eiet)
Fasiliteter
Balkong/Terrasse
Kabel-TV
Offentlig vann/kloakk
Peis/Ildsted
Turterreng
Utsikt
Sentralt
Bredbåndstilknytning
Moderne
Om boligen
EIE eiendomsmegling ved Amrinder Singh har gleden av å presentere Anders Buens gate 17 - en gjennomført og innflyttingsklar 2-roms i hjertet av populære Lademoen.
Dette er boligen for deg som ønsker en sentral leilighet med gode kvaliteter og lett adkomst til alt byen har å by på. Leiligheten har en attraktiv beliggenhet med nærhet til Lademoparken, og ligger sentralt til med kort vei til Solsiden, sentrum og Ladestien.
Høydepunkter verdt å merke seg:
- Prima beliggenhet
- Fasadeoppgradering i 2011 og rørfornying i 2017/18
- Stilig kjøkken fra 2022 med integrerte hvitevarer
- Ny peisovn fra 2023
- Nytt gulv i stue, gang og soverom fra 2022
- Soverom vendt mot rolig bakgård
- God lagringsplass - to boder i kjeller + en på loft
- Gode kollektivforbindelser
- Gangavstand til flere studiesteder
- Mye av det elektriske anlegget er oppgradert av fagfolk i senere år
- Gratis parkering rett utenfor blokka, så fremt det er ledige plasser
Velkommen til visning.
Dette er boligen for deg som ønsker en sentral leilighet med gode kvaliteter og lett adkomst til alt byen har å by på. Leiligheten har en attraktiv beliggenhet med nærhet til Lademoparken, og ligger sentralt til med kort vei til Solsiden, sentrum og Ladestien.
Høydepunkter verdt å merke seg:
- Prima beliggenhet
- Fasadeoppgradering i 2011 og rørfornying i 2017/18
- Stilig kjøkken fra 2022 med integrerte hvitevarer
- Ny peisovn fra 2023
- Nytt gulv i stue, gang og soverom fra 2022
- Soverom vendt mot rolig bakgård
- God lagringsplass - to boder i kjeller + en på loft
- Gode kollektivforbindelser
- Gangavstand til flere studiesteder
- Mye av det elektriske anlegget er oppgradert av fagfolk i senere år
- Gratis parkering rett utenfor blokka, så fremt det er ledige plasser
Velkommen til visning.
NB: Knappen for å vise hele beskrivelsen har kun en visuell effekt.
NB: Knappen for å vise hele beskrivelsen har kun en visuell effekt.
Salgsoppgaven beskriver vesentlig og lovpålagt informasjon om eiendommen
Se komplett salgsoppgaveNærområdet
EIE eiendomsmegling Heimdal
Annonseinformasjon
| FINN-kode | 406988330 |
|---|---|
| Sist endret | 21. juli 2025 11:33 |
| Referanse | 97251022 |
Annonsene kan være mangelfulle i forhold til lovpålagt opplysningsplikt. Før bindende avtale inngås oppfordres interessenter til å innhente komplett informasjon fra meglerforetaket, selger eller utleier.























