Bildegalleri

Velkommen til Dag Hammarskjölds vei 91 presentert av Tage Helle v/ Fana Sparebank Eiendom.
Solgt
Nydelig 3-roms i 10. etg | Fantastiske sol og utsiktsforhold | Heis | Parkering i garasje | Ingen dok.avgift.
Prisantydning3 790 000 kr
Nøkkelinfo
- Boligtype
- Leilighet
- Eieform
- Andel
- Soverom
- 2
- Internt bruksareal
- 74 m² (BRA-i)
- Bruksareal
- 79 m²
- Eksternt bruksareal
- 5 m² (BRA-e)
- Balkong/Terrasse
- 16 m² (TBA)
- Etasje
- 10
- Byggeår
- 1970
- Energimerking
- G - Rød
- Rom
- 3
- Tomt
- Eiet
Fasiliteter
Balkong/Terrasse
Barnevennlig
Garasje/P-plass
Heis
Offentlig vann/kloakk
Rolig
Sentralt
Utsikt
Om boligen
Velkommen til Dag Hammarskjölds vei 91- en nydelig 3-roms leilighet med attraktiv og sentral beliggenhet i Fyllingsdalen.
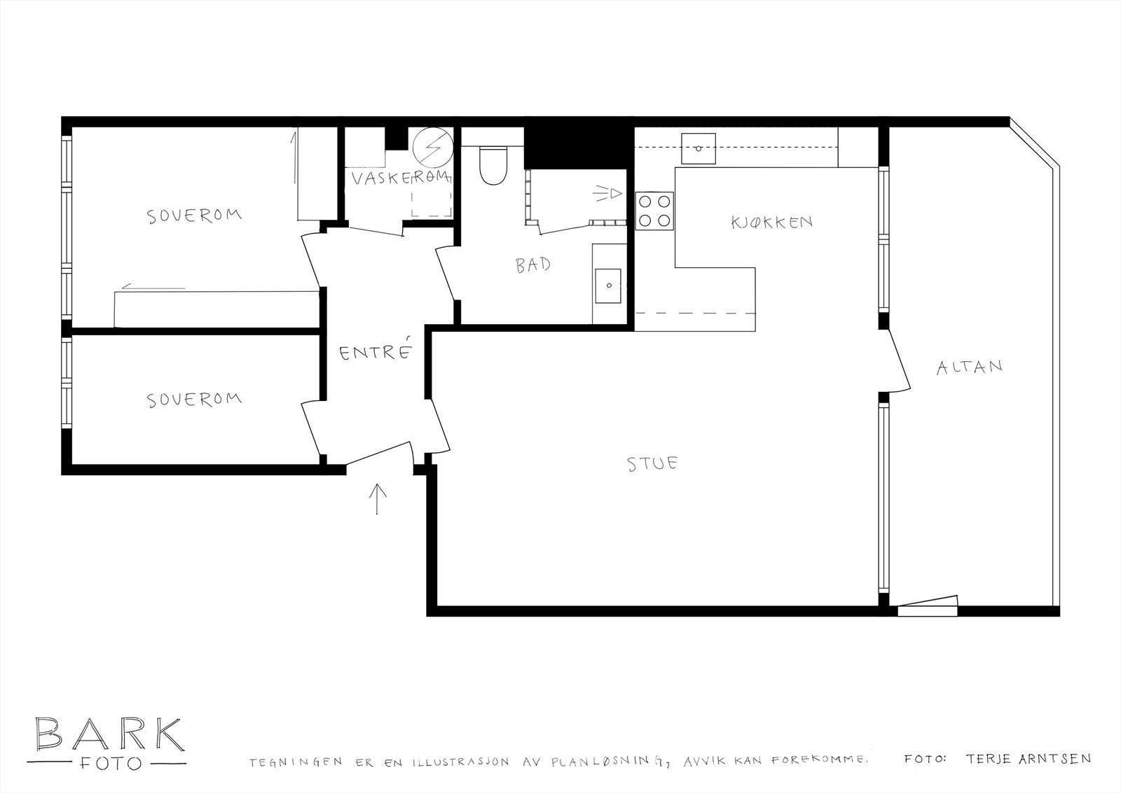
Leiligheten ligger i byggets 10.etg og består av gang, soverom, hovedsoverom, vaskerom, baderom, stue/kjøkken og altan. I tillegg har leiligheten to eksterne boder.
Kort gangavstand til Oasen Kjøpesenter som har et rikt utvalg av butikker, spisesteder og servicetilbud. Her finner man blant annet klesbutikker, apotek, vinmonopol, frisør, Sportsbar, legesenter og dagligvarebutikker. Det er også SATS treningssenter med meget gode åpningstider.
Gode kollektivforbindelser i nærområdet, med busstopp like ved leiligheten i tillegg til bybanestopp på Oasen som tar deg til blant annet Kronstad og Haukeland Sykehus.
Flotte turmuligheter i nærområdet.
Velkommen til visning
Leiligheten ligger i byggets 10.etg og består av gang, soverom, hovedsoverom, vaskerom, baderom, stue/kjøkken og altan. I tillegg har leiligheten to eksterne boder.
Kort gangavstand til Oasen Kjøpesenter som har et rikt utvalg av butikker, spisesteder og servicetilbud. Her finner man blant annet klesbutikker, apotek, vinmonopol, frisør, Sportsbar, legesenter og dagligvarebutikker. Det er også SATS treningssenter med meget gode åpningstider.
Gode kollektivforbindelser i nærområdet, med busstopp like ved leiligheten i tillegg til bybanestopp på Oasen som tar deg til blant annet Kronstad og Haukeland Sykehus.
Flotte turmuligheter i nærområdet.
Velkommen til visning
NB: Knappen for å vise hele beskrivelsen har kun en visuell effekt.
NB: Knappen for å vise hele beskrivelsen har kun en visuell effekt.
Salgsoppgaven beskriver vesentlig og lovpålagt informasjon om eiendommen
Se komplett salgsoppgaveNyttige lenker
Nærområdet
Fana Sparebank Eiendom
Annonsene kan være mangelfulle i forhold til lovpålagt opplysningsplikt. Før bindende avtale inngås oppfordres interessenter til å innhente komplett informasjon fra meglerforetaket, selger eller utleier.
































