Bildegalleri

Velkommen til Oppsaltoppen 19C - presentert av Sebastian Chodkowski i Nordvik Bolig!
Solgt
Oppsal
Pen og lys 3-roms med balkong på 7 m²! Modernisert 2018 - 2024 - Fyring inkl. - Markanær beliggenhet!
Prisantydning3 890 000 kr
Nøkkelinfo
- Boligtype
- Leilighet
- Eieform
- Andel
- Soverom
- 2
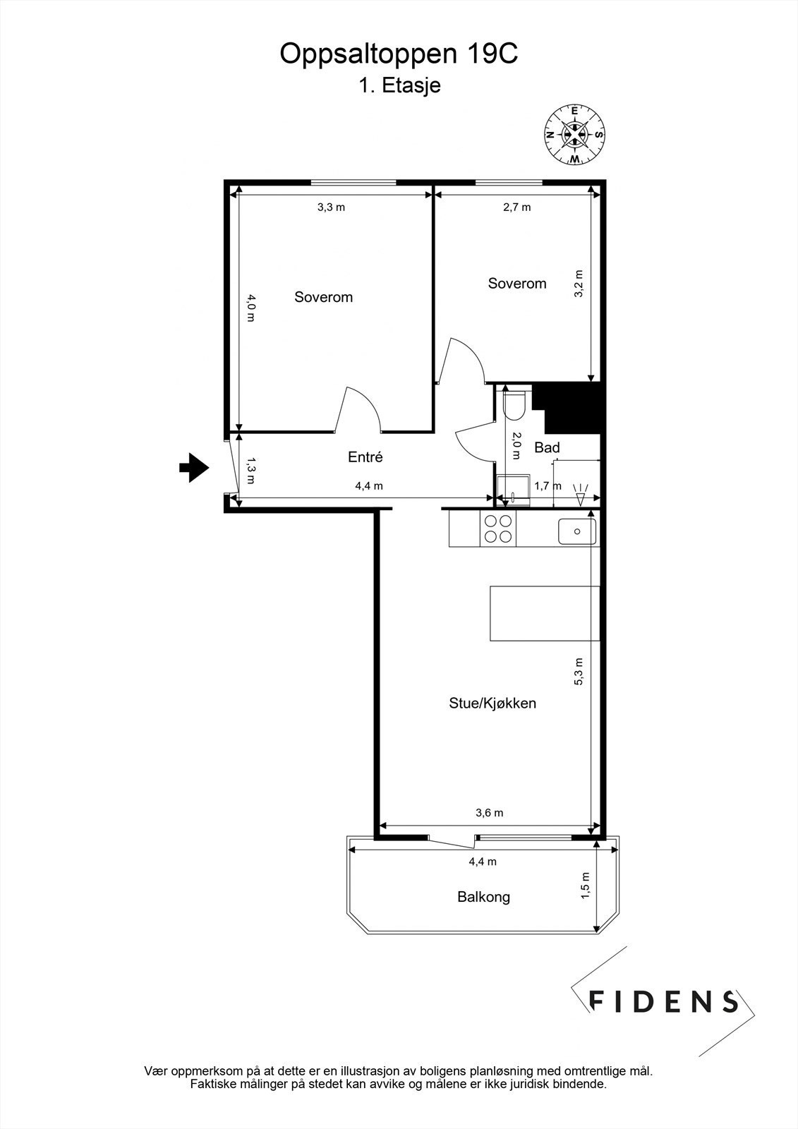
- Internt bruksareal
- 54 m² (BRA-i)
- Bruksareal
- 62 m²
- Eksternt bruksareal
- 8 m² (BRA-e)
- Balkong/Terrasse
- 7 m² (TBA)
- Etasje
- 1
- Byggeår
- 1956
- Energimerking
- F - Mørkegrønn
- Rom
- 3
- Tomteareal
- 19 645 m² (eiet)
Fasiliteter
Balkong/Terrasse
Barnevennlig
Bredbåndstilknytning
Kjæledyr tillatt
Kabel-TV
Offentlig vann/kloakk
Rolig
Sentralt
Turterreng
Om boligen
Dette er en pen og arealeffektiv 3-roms leilighet med god standard. Leiligheten består av en åpen stue- og kjøkkenløsning, to gode soverom og et pent flislagt bad. Fra stuen er det utgang til en herlig balkong på 7 m²! I tillegg disponeres en praktisk utvendig bod for sykler, en loftsbod og en kjellerbod.
Beliggenheten på feltet er barnevennlig med trygg vei til skole, barnehage og friluftsliv.
Høydepunkter:
- Arealeffektiv og godt utnyttet planløsning m/åpen stue-/kjøkkenløsning
- Store vindusflater som slipper inn rikelig med naturlig lys
- Vinduer og balkongdør er fra 2020
- Utgang til herlig balkong på 7 m²
- Innvendig modernisert 2018 - 2024
- Kjellerbod på 4m² og kjellerbod på 4m²
- Fyring inkl
- God beliggenhet på stille og rolig boligfelt
Velkommen til visning!
Beliggenheten på feltet er barnevennlig med trygg vei til skole, barnehage og friluftsliv.
Høydepunkter:
- Arealeffektiv og godt utnyttet planløsning m/åpen stue-/kjøkkenløsning
- Store vindusflater som slipper inn rikelig med naturlig lys
- Vinduer og balkongdør er fra 2020
- Utgang til herlig balkong på 7 m²
- Innvendig modernisert 2018 - 2024
- Kjellerbod på 4m² og kjellerbod på 4m²
- Fyring inkl
- God beliggenhet på stille og rolig boligfelt
Velkommen til visning!
NB: Knappen for å vise hele beskrivelsen har kun en visuell effekt.
NB: Knappen for å vise hele beskrivelsen har kun en visuell effekt.
Salgsoppgaven beskriver vesentlig og lovpålagt informasjon om eiendommen
Se komplett salgsoppgaveNyttige lenker
Nærområdet
Nordvik Lørenskog
Annonseinformasjon
| FINN-kode | 406975191 |
|---|---|
| Sist endret | 23. aug. 2025 13:00 |
| Referanse | 65-0091/25 |
Annonsene kan være mangelfulle i forhold til lovpålagt opplysningsplikt. Før bindende avtale inngås oppfordres interessenter til å innhente komplett informasjon fra meglerforetaket, selger eller utleier.
























