Bildegalleri

Arian Tabaku v/EIE Drammen Bragernes har gleden av å presentere Austadveien 182!
Austad/fjell
Moderne familiebolig over tre plan | Flott takterrasse og garasje | 4 soverom og 2 bad | Barnevennlig beliggenhet
Prisantydning2 990 000 kr
Nøkkelinfo
- Boligtype
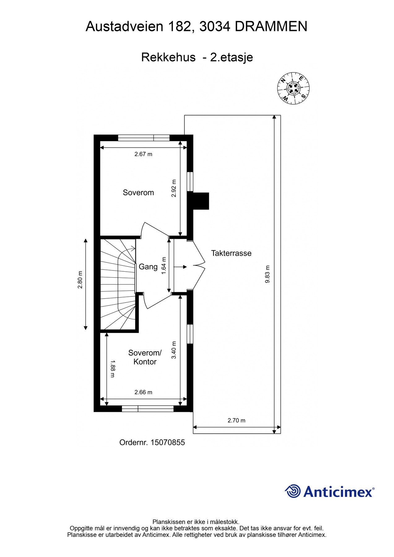
- Rekkehus
- Eieform
- Andel
- Soverom
- 4
- Internt bruksareal
- 120 m² (BRA-i)
- Bruksareal
- 120 m²
- Balkong/Terrasse
- 27 m² (TBA)
- Etasje
- 3
- Byggeår
- 2018
- Energimerking
- B - Rød
- Rom
- 6
- Tomt
- Eiet
Fasiliteter
Barnevennlig
Balkong/Terrasse
Garasje/P-plass
Kabel-TV
Offentlig vann/kloakk
Parkett
Turterreng
Utsikt
Vaktmester-/vektertjeneste
Sentralt
Bredbåndstilknytning
Moderne
Rolig
Lademulighet
Balansert ventilasjon
Visning
onsdag, 27. mai
17:00 – 17:45
For å yte premium rådgivning, har alle våre visninger påmelding. Dette sikrer at megler har god oversikt og tid til å imøtekomme alle interessenter på aller beste måte. Dersom ingen interessenter er påmeldt, kan visningen bli avlyst.
Om boligen
Velkommen til Austadveien 182 - et moderne og stilrent rekkehus fra 2018, fordelt på tre etasjer. Boligen ligger i et rolig og barnevennlig nabolag med lekeplasser rett utenfor døren, perfekt for aktive familier. Her bor du sentralt, med kort vei til skoler, barnehager, butikker og gode bussforbindelser, samtidig som du har enkel tilgang til sentrum på bare noen minutters kjøretur.
I underetasjen finner du to lyse og romslige soverom, samt et elegant bad med dusjhjørne. Praktisk vaskerom/teknisk rom med opplegg for vaskemaskin og varmtvannsbereder. Første etasje har en innbydende entré med gulvvarme og god lagringsplass, samt en lys stue/spisestue med sosial og åpen kjøkkenløsning. Kjøkkenet er stilfullt og utstyrt med integrerte hvitevarer, og videre finner du et moderne bad med dusjhjørne og vegghengt servant. Toppetasjen rommer to flotte soverom, samt utgang til en solrik takterrasse med nydelig utsikt - perfekt for avslapning og hyggelige stunder.
I underetasjen finner du to lyse og romslige soverom, samt et elegant bad med dusjhjørne. Praktisk vaskerom/teknisk rom med opplegg for vaskemaskin og varmtvannsbereder. Første etasje har en innbydende entré med gulvvarme og god lagringsplass, samt en lys stue/spisestue med sosial og åpen kjøkkenløsning. Kjøkkenet er stilfullt og utstyrt med integrerte hvitevarer, og videre finner du et moderne bad med dusjhjørne og vegghengt servant. Toppetasjen rommer to flotte soverom, samt utgang til en solrik takterrasse med nydelig utsikt - perfekt for avslapning og hyggelige stunder.
NB: Knappen for å vise hele beskrivelsen har kun en visuell effekt.
NB: Knappen for å vise hele beskrivelsen har kun en visuell effekt.
Salgsoppgaven beskriver vesentlig og lovpålagt informasjon om eiendommen
Se komplett salgsoppgaveNyttige lenker
Nærområdet
EIE eiendomsmegling Drammen
Annonsene kan være mangelfulle i forhold til lovpålagt opplysningsplikt. Før bindende avtale inngås oppfordres interessenter til å innhente komplett informasjon fra meglerforetaket, selger eller utleier.











































