Bildegalleri

- Velkommen til Bjørndalsskogen 41 -
Solgt
Flott 2-roms med nydelig utsikt og solrik terrasse! Fast parkeringsplass i felles garasje. Varmtvann inkl. i felleskost.
Prisantydning2 490 000 kr
Nøkkelinfo
- Boligtype
- Leilighet
- Eieform
- Andel
- Soverom
- 1
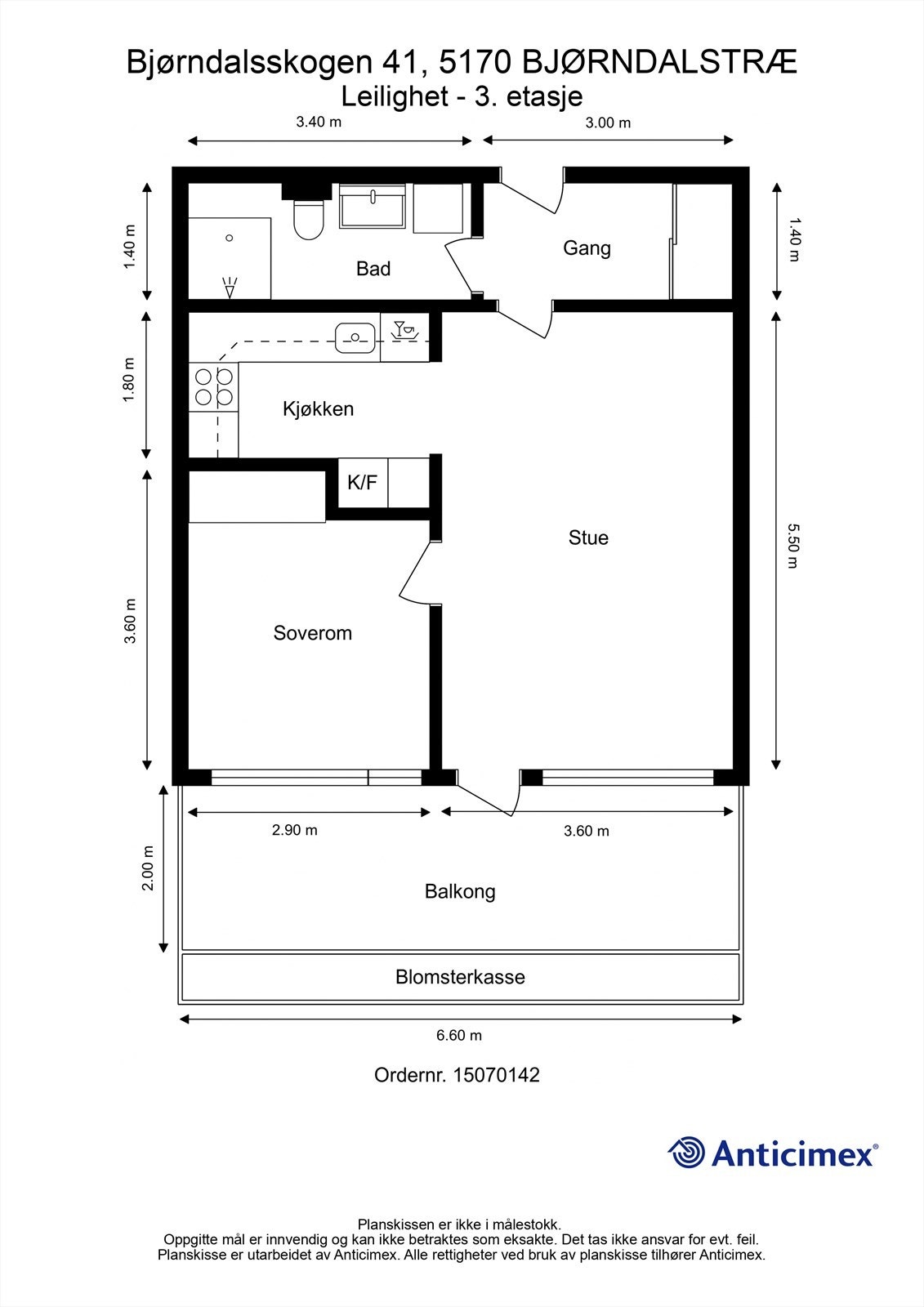
- Internt bruksareal
- 47 m² (BRA-i)
- Bruksareal
- 51 m²
- Eksternt bruksareal
- 4 m² (BRA-e)
- Balkong/Terrasse
- 14 m² (TBA)
- Etasje
- 3
- Byggeår
- 1975
- Energimerking
- F - Rød
- Rom
- 2
- Tomteareal
- 141 724 m² (eiet)
Fasiliteter
Balkong/Terrasse
Barnevennlig
Bredbåndstilknytning
Garasje/P-plass
Kabel-TV
Offentlig vann/kloakk
Rolig
Sentralt
Utsikt
Vaktmester-/vektertjeneste
Turterreng
Om boligen
Lekker 2- roms andelsleilighet med svært god beliggenhet. Kort avstand til Vestkanten storsenter, kollektivtransport, treningstudio, dagligvarehandel m.m
Høydepunkter:
Høydepunkter:
- Lys stue med spottekasse installert i 2023
- Fast garasjeplass medfølger
- Sørvendt terrasse på 14 m² med gode solforhold
- Praktisk planløsning og god standard
- Varmtvann inkl. i felleskostnader
- Turterreng like utenfor blokken, samt flere stier innad i borettslaget
- Gangavstand til Kiwi og Rema 1000, samt treningssenter og restauranter
- Busstopp ved inngangen til borettslaget
- Bo midt mellom Vestkanten storsenter og Oasen senter
- Egen vaktmester i borettslaget
NB: Knappen for å vise hele beskrivelsen har kun en visuell effekt.
NB: Knappen for å vise hele beskrivelsen har kun en visuell effekt.
Salgsoppgaven beskriver vesentlig og lovpålagt informasjon om eiendommen
Se komplett salgsoppgaveNyttige lenker
Nærområdet
Krogsveen Fyllingsdalen
Verdien av en god megler.
Annonseinformasjon
| FINN-kode | 406854353 |
|---|---|
| Sist endret | 29. aug. 2025 11:44 |
| Referanse | KR70.2540 |
Annonsene kan være mangelfulle i forhold til lovpålagt opplysningsplikt. Før bindende avtale inngås oppfordres interessenter til å innhente komplett informasjon fra meglerforetaket, selger eller utleier.

























