Bildegalleri

Velkommen til Maurveien 30! Enebolig med hybelleilighet, midt på barnevennlige og veletablerte Gjekstad!
Gjekstad
Modernisert enebolig med godkjent hybel m/egen inngang, gode solforhold og lite innsyn
Prisantydning4 750 000 kr
Nøkkelinfo
- Boligtype
- Enebolig
- Eieform
- Eier (Selveier)
- Soverom
- 4
- Internt bruksareal
- 162 m² (BRA-i)
- Bruksareal
- 187 m²
- Innglasset balkong
- 25 m² (BRA-b)
- Balkong/Terrasse
- 76 m² (TBA)
- Etasje
- 2
- Byggeår
- 1980
- Energimerking
- F - Oransje
- Tomteareal
- 870 m² (eiet)
Fasiliteter
Balkong/Terrasse
Barnevennlig
Garasje/P-plass
Kjæledyr tillatt
Offentlig vann/kloakk
Peis/Ildsted
Rolig
Sentralt
Turterreng
Visning
Ta kontakt med megler nå i Desember for å avtale visning, på tlf 924 23 974 eller via visningspåmelding.
Alle våre visninger har påmelding. På denne måten sikrer vi at megler har god oversikt og tid til å imøtekomme alle interessenter. Meld deg på visning ved å trykke på lenken visningspåmelding. Visning avholdes ikke om det ikke er noen påmeldte.
VisningspåmeldingOm boligen
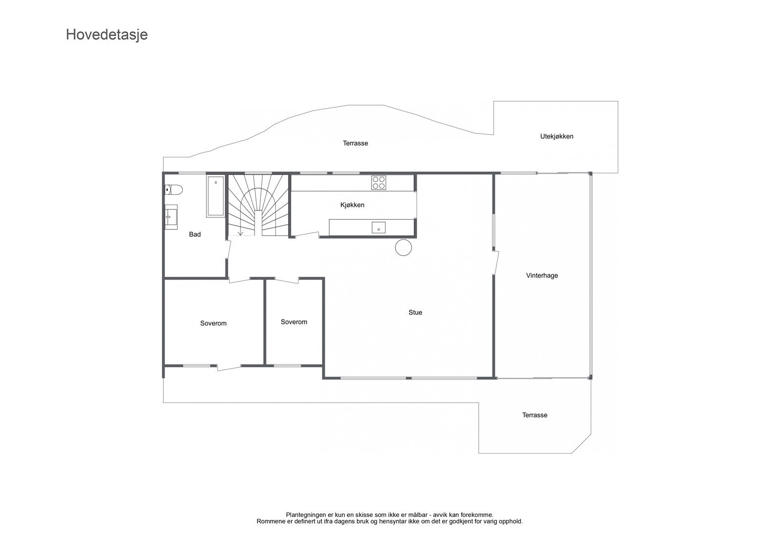
Velkommen til Maurveien 30,en innholdsrik og oppgradert enebolig med god planløsning, fine uteområder og separat hybel med egen inngang. Perfekt for deg som ønsker fleksibilitet, ekstra inntekt eller rom for storfamilien. Boligen har en moderne og gjennomført stil, med lyse oppholdsrom, lekkert kjøkken og flotte solforhold. Fra stuen er det utgang til en stor innglasset vinterhage på 25 m² perfekt for å forlenge utesesongen. Utenfor finner du utekjøkken med pizzaovn og en ny veranda med utsikt. Hybelen leies i dag ut for 9 500 kr + strøm, og er godkjent for utleie. Gjennomgang kan tas i bruk, og gir mulighet for én stor familiebolig med 4 soverom, 2 stuer, 2 bad og eget vaskerom. Eiendommen har også to biloppstillingsplasser, romslig garasje med lagringsloft og en separat utebod.
NB: Knappen for å vise hele beskrivelsen har kun en visuell effekt.
NB: Knappen for å vise hele beskrivelsen har kun en visuell effekt.
Salgsoppgaven beskriver vesentlig og lovpålagt informasjon om eiendommen
Se komplett salgsoppgaveNyttige lenker
Nærområdet
Nordvik Sandefjord
Vi vet hva det er verdt
Annonseinformasjon
| FINN-kode | 406850587 |
|---|---|
| Sist endret | 12. des. 2025 10:19 |
| Referanse | 40-0035/25 |
Annonsene kan være mangelfulle i forhold til lovpålagt opplysningsplikt. Før bindende avtale inngås oppfordres interessenter til å innhente komplett informasjon fra meglerforetaket, selger eller utleier.












































