Bildegalleri

Velkommen til Kalamyrveien 54!
Solgt
Hommersåk
Flott enebolig med solrike uteområder | Nyere kjøkken og bad | Grenser til skog
Prisantydning4 190 000 kr
Nøkkelinfo
- Boligtype
- Enebolig
- Eieform
- Eier (Selveier)
- Soverom
- 3
- Internt bruksareal
- 118 m² (BRA-i)
- Bruksareal
- 121 m²
- Eksternt bruksareal
- 3 m² (BRA-e)
- Balkong/Terrasse
- 100 m² (TBA)
- Energimerking
- G - Gul
- Rom
- 4
- Tomteareal
- 479 m² (eiet)
Fasiliteter
Barnevennlig
Balkong/Terrasse
Garasje/P-plass
Kabel-TV
Offentlig vann/kloakk
Peis/Ildsted
Turterreng
Sentralt
Bredbåndstilknytning
Moderne
Rolig
Om boligen
Vi i EIE eiendomsmegling har gleden av å presentere Kalamyrveien 54 for salg.
En flott enebolig som grenser til skog/friområde med beliggenhet i et rolig og veletablert nabolag.
Boligen har nyere bad og kjøkken, og er malt i en moderne fargepalett. Stor terrasse på hele 100kvm med utgang fra to sider i stuen gir en herlig flyt mellom inne- og uterom.
Innhold:
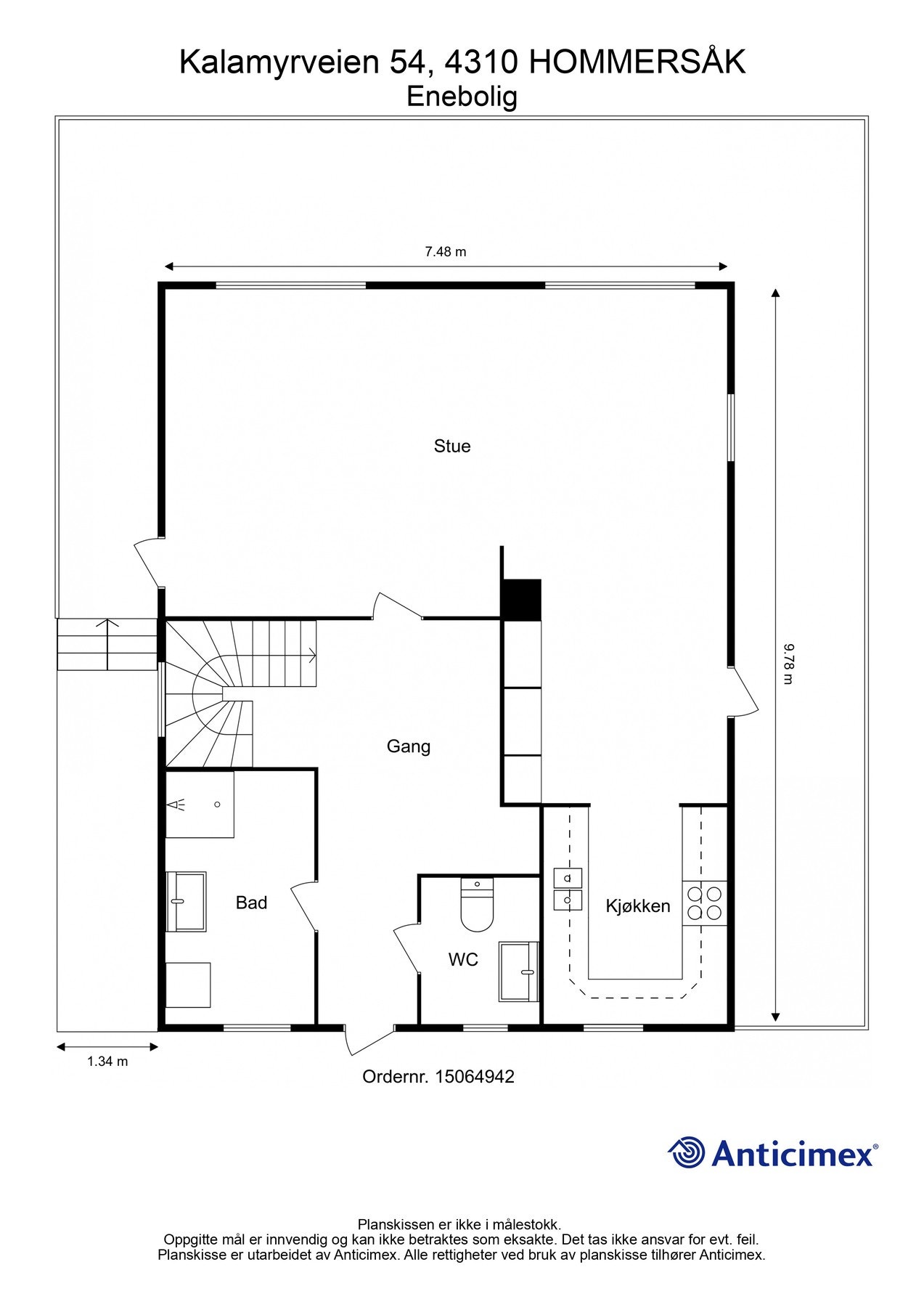
U. etg: Krypkjeller
1. etg: Gang, toalettrom, stue, kjøkken og bad
2. etg: Gang og tre soverom
Kort fortalt:
- Moderne farge- og materialvalg
- Nyere kjøkken og bad
- Separat gjestewc
- Stor stue med spisestuedel og utgang til terrasse
- Hage på to sider
- Stort gårdsrom
- Nærhet til skoler og barnehager
- Kort vei til Hommersåk sentrum
Frister noe av dette?
- Da bør du avlegge Kalamyrveien 54 et besøk!
En flott enebolig som grenser til skog/friområde med beliggenhet i et rolig og veletablert nabolag.
Boligen har nyere bad og kjøkken, og er malt i en moderne fargepalett. Stor terrasse på hele 100kvm med utgang fra to sider i stuen gir en herlig flyt mellom inne- og uterom.
Innhold:
U. etg: Krypkjeller
1. etg: Gang, toalettrom, stue, kjøkken og bad
2. etg: Gang og tre soverom
Kort fortalt:
- Moderne farge- og materialvalg
- Nyere kjøkken og bad
- Separat gjestewc
- Stor stue med spisestuedel og utgang til terrasse
- Hage på to sider
- Stort gårdsrom
- Nærhet til skoler og barnehager
- Kort vei til Hommersåk sentrum
Frister noe av dette?
- Da bør du avlegge Kalamyrveien 54 et besøk!
NB: Knappen for å vise hele beskrivelsen har kun en visuell effekt.
NB: Knappen for å vise hele beskrivelsen har kun en visuell effekt.
Salgsoppgaven beskriver vesentlig og lovpålagt informasjon om eiendommen
Se komplett salgsoppgaveNyttige lenker
Nærområdet
EIE eiendomsmegling Sandnes
Annonseinformasjon
| FINN-kode | 406822252 |
|---|---|
| Sist endret | 05. juni 2025 07:28 |
| Referanse | 62251007 |
Annonsene kan være mangelfulle i forhold til lovpålagt opplysningsplikt. Før bindende avtale inngås oppfordres interessenter til å innhente komplett informasjon fra meglerforetaket, selger eller utleier.



































