Bildegalleri

EIE eiendomsmegling ved Thomas Myhre har gleden av å presentere Kolstadtunet 4B!
Solgt
Saupstad
Delikat og nyoppusset 3-roms med peis & solrik terrasse | Omfattende oppgradert i 2024/25 | Kort vei til marka & buss
Prisantydning3 190 000 kr
Nøkkelinfo
- Boligtype
- Leilighet
- Eieform
- Andel
- Soverom
- 2
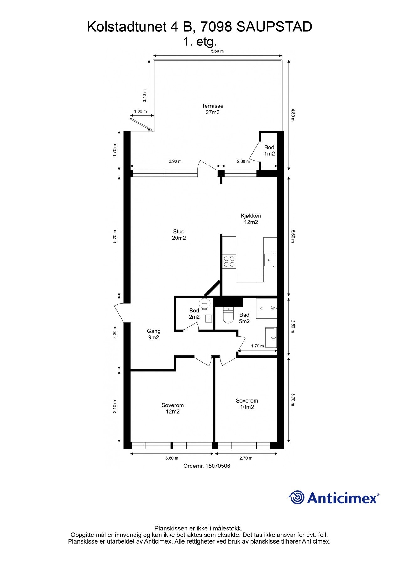
- Internt bruksareal
- 76 m² (BRA-i)
- Bruksareal
- 84 m²
- Eksternt bruksareal
- 8 m² (BRA-e)
- Balkong/Terrasse
- 27 m² (TBA)
- Etasje
- 1
- Byggeår
- 1972
- Energimerking
- F - Oransje
- Rom
- 3
- Tomt
- Eiet
Fasiliteter
Barnevennlig
Balkong/Terrasse
Garasje/P-plass
Kabel-TV
Offentlig vann/kloakk
Peis/Ildsted
Turterreng
Vaktmester-/vektertjeneste
Sentralt
Bredbåndstilknytning
Moderne
Rolig
Om boligen
EIE eiendomsmegling ved Thomas Myhre har gleden av å presentere Kolstadtunet 4B - En romslig og delikat leilighet med en av de beste beliggenhetene på Saupstad. Her bor du tilbaketrukket i et stille tun med en enorm terrasse og fantastiske solforhold. Leiligheten ligger i et barnevennlig og ettertraktet område, med nærhet til alt du trenger i hverdagen - skoler, barnehager, butikker og kollektivtilbud.
Merk deg følgende:
- Omfattende oppgradert i 24/25
- Delikat flislagt bad fra 24/25 med gulvvarme
- Praktisk og pent kjøkken med integrerte hvitevarer
- Separat vaskerom med opplegg til vaskemaskin
- Nytt elektrisk anlegg (TG0)
- 2 romslige soverom
- Veldrevet borettslag med lave felleskostnader som inkluderer internett og TV
- God planløsning og et flust av oppbevaringsplass
- Meget populært område
- Mulighet for parkering
Velkommen til visning!
Merk deg følgende:
- Omfattende oppgradert i 24/25
- Delikat flislagt bad fra 24/25 med gulvvarme
- Praktisk og pent kjøkken med integrerte hvitevarer
- Separat vaskerom med opplegg til vaskemaskin
- Nytt elektrisk anlegg (TG0)
- 2 romslige soverom
- Veldrevet borettslag med lave felleskostnader som inkluderer internett og TV
- God planløsning og et flust av oppbevaringsplass
- Meget populært område
- Mulighet for parkering
Velkommen til visning!
NB: Knappen for å vise hele beskrivelsen har kun en visuell effekt.
NB: Knappen for å vise hele beskrivelsen har kun en visuell effekt.
Salgsoppgaven beskriver vesentlig og lovpålagt informasjon om eiendommen
Se komplett salgsoppgaveNyttige lenker
Nærområdet
EIE eiendomsmegling Heimdal
Annonseinformasjon
| FINN-kode | 406777724 |
|---|---|
| Sist endret | 08. jan. 2026 13:03 |
| Referanse | 97251024 |
Annonsene kan være mangelfulle i forhold til lovpålagt opplysningsplikt. Før bindende avtale inngås oppfordres interessenter til å innhente komplett informasjon fra meglerforetaket, selger eller utleier.



























