Bildegalleri

Store vinduer som slipper inn mye lys.
Utsiktsbolig i Ekebergskrenten
Nyoppført, eksklusiv enebolig + uthus. Spektakulære sol- og utsiktsforhold. 40 kvm terrasse + hage. Gulvareal på 90 kvm
Prisantydning9 890 000 kr
Nøkkelinfo
- Boligtype
- Enebolig
- Eieform
- Eier (Selveier)
- Soverom
- 2
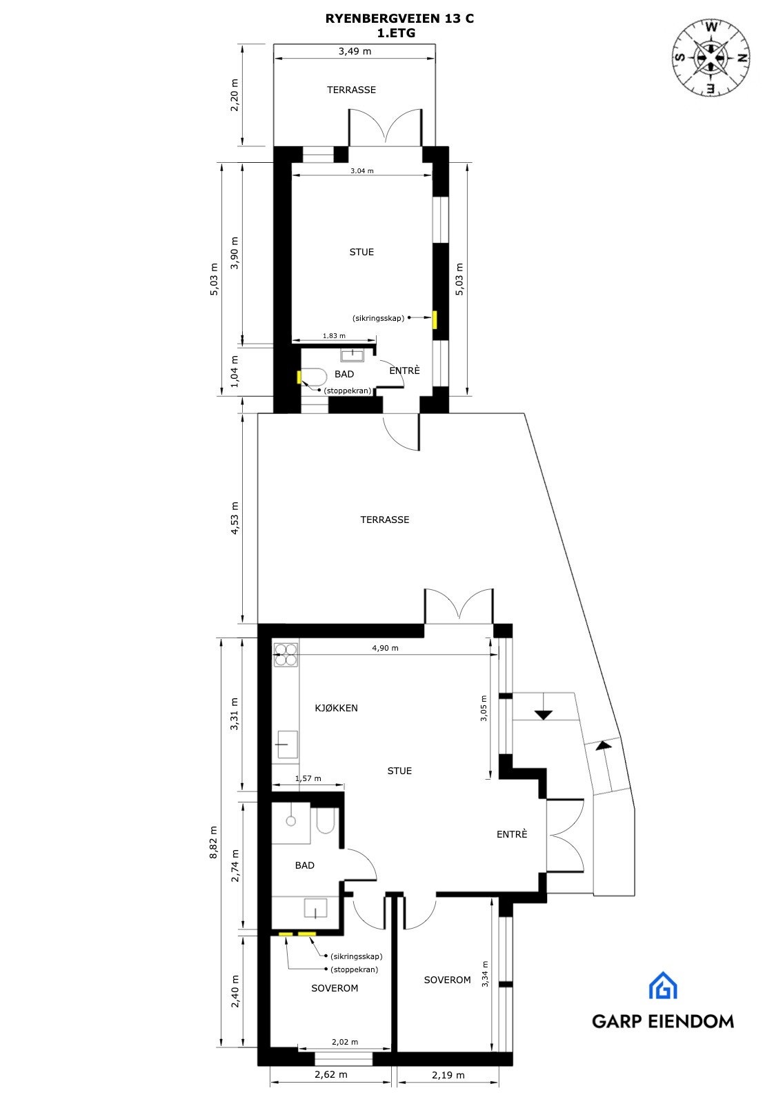
- Internt bruksareal
- 61 m² (BRA-i)
- Bruksareal
- 61 m²
- Balkong/Terrasse
- 40 m² (TBA)
- Byggeår
- 2023
- Energimerking
- C - Rød
- Rom
- 3
- Tomteareal
- 926 m² (eiet)
Fasiliteter
Balkong/Terrasse
Barnevennlig
Bredbåndstilknytning
Hage
Kjæledyr tillatt
Offentlig vann/kloakk
Parkett
Rolig
Sentralt
Utsikt
Turterreng
Om boligen
Velkommen til Ryenbergveien 13C. Nyoppført hus (2023) bygget med heltrelemeneter på original grunnmur og nytt uthusfra 2023. Boligen er bygget med påkostede materialvalg samt løsninger som holder en eksklusiv og tiltalende standard. Meget arealeffektiv planløsning over to plan + uthus gir rom for mange bruksområder. Eiendommen har en total gulvflate på 90 kvm.
- Delikat og stilren enebolig bygget i massiv tre
- Boligen er over to plan med en praktisk hems med to rom
- Ny moderne standard fra 2023
- Praktisk innredet uthus
- Vinkjeller nedfelt i stuegulvet med glassluke
- Lekkert baderom i hovedhus + WC i uthus
- Stor solrik terrasse på 40 kvm og idyllisk hage vendt mot vest
- Stilrent kjøkken med integrerte hvitevarer
- Spektakulær utsikt over Oslo
NB: Knappen for å vise hele beskrivelsen har kun en visuell effekt.
NB: Knappen for å vise hele beskrivelsen har kun en visuell effekt.
Salgsoppgaven beskriver vesentlig og lovpålagt informasjon om eiendommen
Se komplett salgsoppgaveNyttige lenker
Nærområdet
Nordvik Majorstuen
Annonseinformasjon
| FINN-kode | 406683884 |
|---|---|
| Sist endret | 22. jan. 2026 13:42 |
| Referanse | 8-0032/24 |
Annonsene kan være mangelfulle i forhold til lovpålagt opplysningsplikt. Før bindende avtale inngås oppfordres interessenter til å innhente komplett informasjon fra meglerforetaket, selger eller utleier.




















































