Bildegalleri

Proaktiv Eiendomsmegling v/Steinar Skaanes har gleden av å presentere en moderne 2-roms leilighet på Utleir.
Lys og delikat 2-roms selveierleilighet i 3. etasje. TG0/TG1 på alt. Stor & solrik balkong. Lave fellesutgifter. P-plass
Nøkkelinfo
- Boligtype
- Leilighet
- Eieform
- Eier (Selveier)
- Soverom
- 1
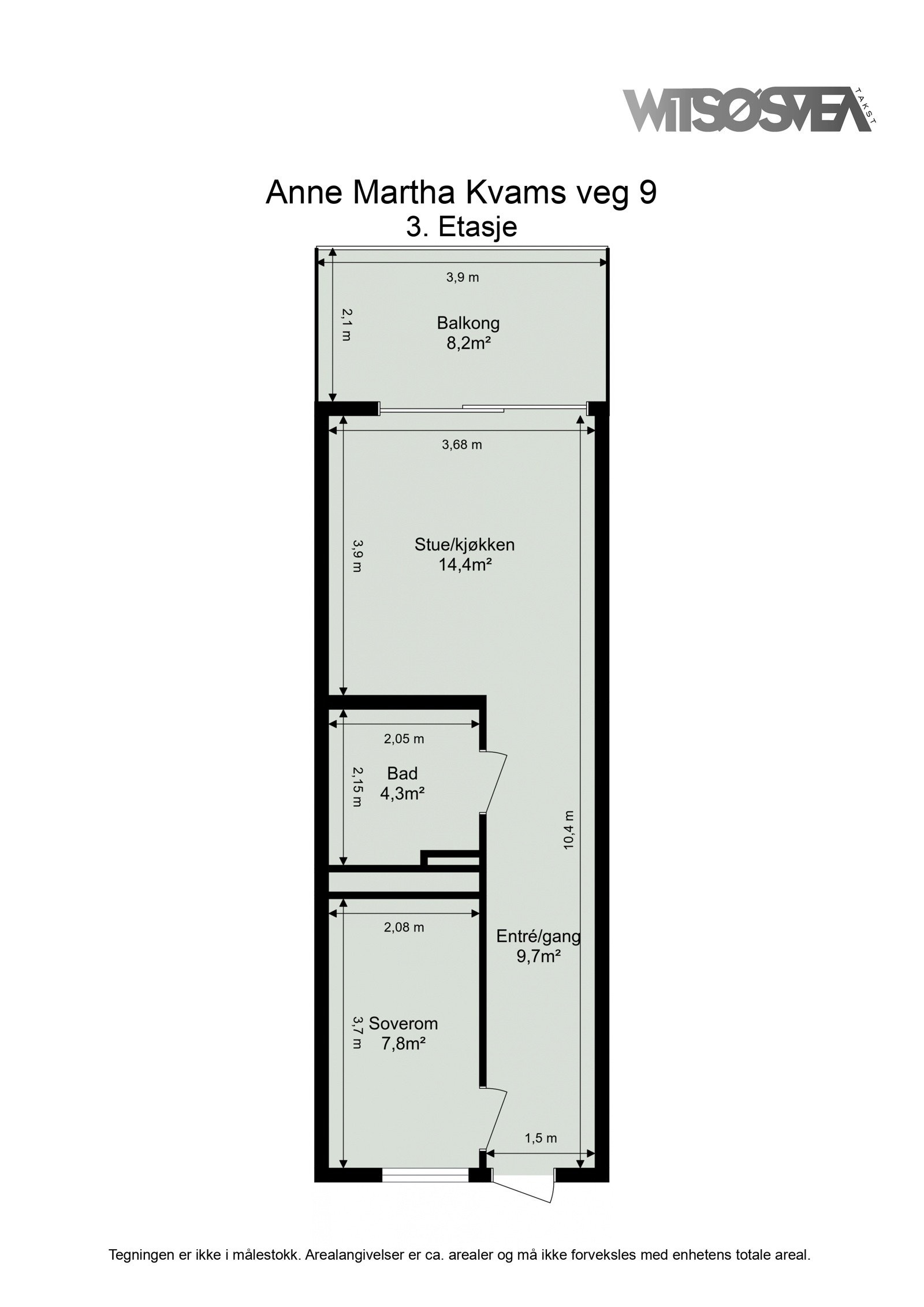
- Internt bruksareal
- 38 m² (BRA-i)
- Bruksareal
- 47 m²
- Eksternt bruksareal
- 9 m² (BRA-e)
- Balkong/Terrasse
- 8 m² (TBA)
- Etasje
- 3
- Byggeår
- 2014
- Energimerking
- B - Mørkegrønn
- Rom
- 2
- Tomteareal
- 6 118 m² (eiet)
Fasiliteter
Om boligen
Velkommen til en meget delikat 2-roms selveierleilighet i 3. etasje med TG0 og TG1 på alle punkter. Den har en gjennomgående god standard og solrik beliggenhet. Heis i bygget samt parkering på felles p-plass.
Leiligheten ligger ved foten av Estendtadmarka og har umiddelbar nærhet til matbutikk, restaurant og har gode bussforbindelser til St. Olavs Hospital, Trondheim sentrum, NTNU Gløshaugen/Dragvoll og øvrige & studiesteder.
Kvaliteter ved boligen som fremheves:
- Lave fellesutgifter hvor tv/internett er inkludert
- Flislagt, romslig og godt utstyrt badrom med behagelig gulvvarme
- Lys stue med plass til sofagruppe og spisebord
- Pent HTH-kjøkken med integrerte hvitevarer
- Balansert ventilasjon
- Stor vestevendt balkong med gode solforhold
- Soverom med god plass for dobbeltseng m.m.
- Egen bod på 9 kvm i kjeller
Salgsoppgaven beskriver vesentlig og lovpålagt informasjon om eiendommen
Se komplett salgsoppgaveNyttige lenker
Nærområdet
Proaktiv Eiendomsmegling Trondheim Øst
Annonsene kan være mangelfulle i forhold til lovpålagt opplysningsplikt. Før bindende avtale inngås oppfordres interessenter til å innhente komplett informasjon fra meglerforetaket, selger eller utleier.





























