Bildegalleri

Velkommen inn i en svært innbydende og oppgradert 3-roms leilighet i Jens Bjelkes gate 86B!
TØYEN
Lys, pen og påkostet 3-roms - Oppusset i 2022 m/ bla. nytt KVIK kjøkken - God planløsning- Fyring og vv inkludert!
Prisantydning5 150 000 kr
Nøkkelinfo
- Boligtype
- Leilighet
- Eieform
- Eier (Selveier)
- Soverom
- 2
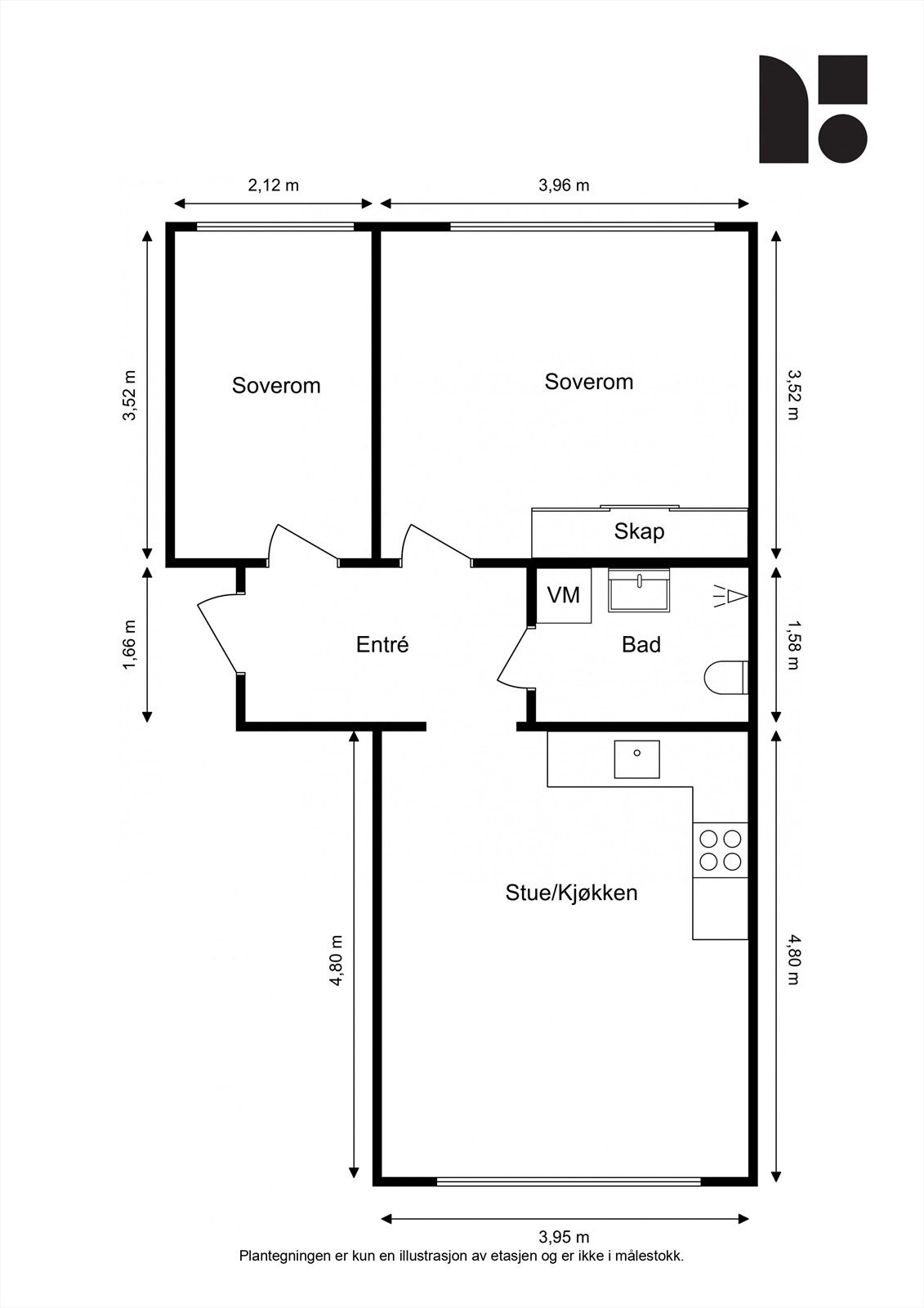
- Internt bruksareal
- 51 m² (BRA-i)
- Bruksareal
- 54 m²
- Eksternt bruksareal
- 3 m² (BRA-e)
- Etasje
- 2
- Byggeår
- 1939
- Energimerking
- G - Mørkegrønn
- Rom
- 3
- Tomteareal
- 1 130 m² (eiet)
Fasiliteter
Bredbåndstilknytning
Kjæledyr tillatt
Kabel-TV
Offentlig vann/kloakk
Rolig
Sentralt
Om boligen
Velkommen til Jens Bjelkes gate 86B!
Her bor du i hjertet av Tøyen, samtidig rolig og med "alt" av servicefasilitert like utenfor døren. Beliggenheten byr også på gode kollektivmuligheter i umiddelbar nærhet med buss, t-bane, tog og trikk. Gode tur-, trening- og rekreasjonsmuligheter med gangavstand til flere parker (bl.a. Tøyenparken, Botanisk Hage og Kampen Park).
Leiligheten har flere gode kvaliteter som bl.a.:
- En gjennomgående og svært god planløsning hvor ingen rom oppleves å gå på bekostning av hverandre
- Innbydende standard med et stilrent og gjennomført preg
- Moderne KVIK kjøkken fra 2022
- Bad fra 2017
- Gjennomgående planløsning med mange vinduer og mye lys
- Bredbånd, varmtvann og fyring inkludert i felleskostnadene
- Gode oppbevaringsmuligheter i kjeller- og loftsbod
Her bor du i hjertet av Tøyen, samtidig rolig og med "alt" av servicefasilitert like utenfor døren. Beliggenheten byr også på gode kollektivmuligheter i umiddelbar nærhet med buss, t-bane, tog og trikk. Gode tur-, trening- og rekreasjonsmuligheter med gangavstand til flere parker (bl.a. Tøyenparken, Botanisk Hage og Kampen Park).
Leiligheten har flere gode kvaliteter som bl.a.:
- En gjennomgående og svært god planløsning hvor ingen rom oppleves å gå på bekostning av hverandre
- Innbydende standard med et stilrent og gjennomført preg
- Moderne KVIK kjøkken fra 2022
- Bad fra 2017
- Gjennomgående planløsning med mange vinduer og mye lys
- Bredbånd, varmtvann og fyring inkludert i felleskostnadene
- Gode oppbevaringsmuligheter i kjeller- og loftsbod
NB: Knappen for å vise hele beskrivelsen har kun en visuell effekt.
NB: Knappen for å vise hele beskrivelsen har kun en visuell effekt.
Salgsoppgaven beskriver vesentlig og lovpålagt informasjon om eiendommen
Se komplett salgsoppgaveNærområdet
Aktiv Gamle Oslo/Bjørvika
Annonseinformasjon
| FINN-kode | 406602036 |
|---|---|
| Sist endret | 05. jan. 2026 09:54 |
| Referanse | 1002250061 |
Annonsene kan være mangelfulle i forhold til lovpålagt opplysningsplikt. Før bindende avtale inngås oppfordres interessenter til å innhente komplett informasjon fra meglerforetaket, selger eller utleier.



























