Bildegalleri

Meget attraktiv med sjelden god beliggenhet. Velkommen på visning i Ryenbergveien 52J!
Solgt
IDYLLISK OG SKJERMET V/EKEBERGSKRENTEN
Gjennomgående 2-roms i toppetasje med meget god planløsning. Balkong. Barnevennlig. Ingen dok. avgift!
Prisantydning4 500 000 kr
Nøkkelinfo
- Boligtype
- Andre
- Eieform
- Andel
- Soverom
- 1
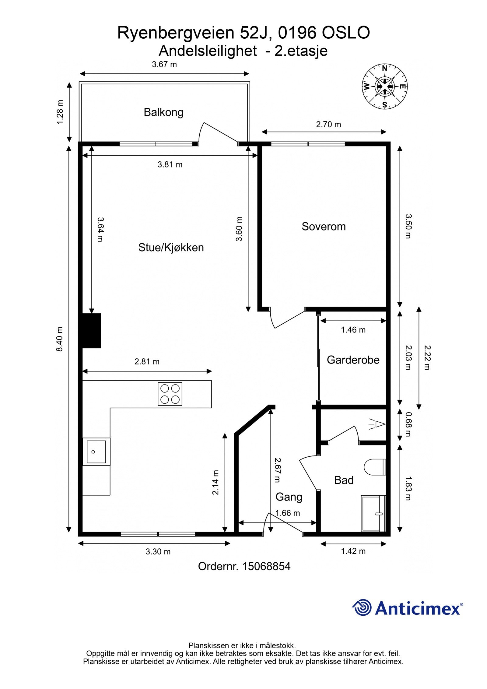
- Internt bruksareal
- 56 m² (BRA-i)
- Bruksareal
- 56 m²
- Balkong/Terrasse
- 5 m² (TBA)
- Etasje
- 2
- Byggeår
- 1982
- Energimerking
- F - Oransje
- Rom
- 2
- Tomteareal
- 3 958 m² (eiet)
Fasiliteter
Balkong/Terrasse
Moderne
Sentralt
Turterreng
Om boligen
Meget attraktiv med sjelden god beliggenhet. Området ligger meget skjermet og rolig til, men allikevel gangavstand til bla. Gamlebyen, Fjordbyen, Sentrum, Svartdalsparken og Ekeberg. Flotte rekreasjonsmuligheter året rundt med fine turområder.
- Mulighet for 2 soverom
- Meget god planløsing tilsvarende leiligheter i borettslaget har bygd om til 3-roms
- Toppleilighet i småhusbebyggelse
- Lysinnslipp fra 2 sider av rommet
- Gode solforhold på balkong og felles svalgang foran boligen
- Praktisk innvendig bod
- Moderne peisovn i stue
- Flislagt bad med gulvvarme. Opplegg vaskemaskin
- Sosial planløsning med kjøkken og stue i åpen løsning
- Trygg gate uten biltrafikk
- Veldrevet og familievennlig brl
- Lave felleskostnader
- Gangavstand til sentrum
- Felles lekeplass, grøntomr. og sykkelbod
- Lave kjøpsomkostninger
NB: Knappen for å vise hele beskrivelsen har kun en visuell effekt.
NB: Knappen for å vise hele beskrivelsen har kun en visuell effekt.
Salgsoppgaven beskriver vesentlig og lovpålagt informasjon om eiendommen
Se komplett salgsoppgaveNyttige lenker
Nærområdet
OBOS eiendomsmeglere - Oslo Sentrum
Annonseinformasjon
| FINN-kode | 406565902 |
|---|---|
| Sist endret | 16. mai 2025 11:29 |
| Referanse | 701250017 |
Annonsene kan være mangelfulle i forhold til lovpålagt opplysningsplikt. Før bindende avtale inngås oppfordres interessenter til å innhente komplett informasjon fra meglerforetaket, selger eller utleier.























