Bildegalleri

Velkommen til Sundveien 41A - Presentert av Ulrik Bøe V/Privatmegleren Dyve & Partnere
Fantastisk bolig beliggende i strandkanten I 2(3) sov I Badehus I Brygge med båtplass I Dobbelgarasje I Naturskjønn tomt
Nøkkelinfo
- Boligtype
- Tomannsbolig
- Eieform
- Eier (Selveier)
- Soverom
- 3
- Internt bruksareal
- 138 m² (BRA-i)
- Bruksareal
- 168 m²
- Eksternt bruksareal
- 30 m² (BRA-e)
- Balkong/Terrasse
- 82 m² (TBA)
- Byggeår
- 2007
- Energimerking
- D - Oransje
- Rom
- 4
- Tomteareal
- 1 183 m² (eiet)
- Boligselgerforsikring
- Ja
Fasiliteter
Visning
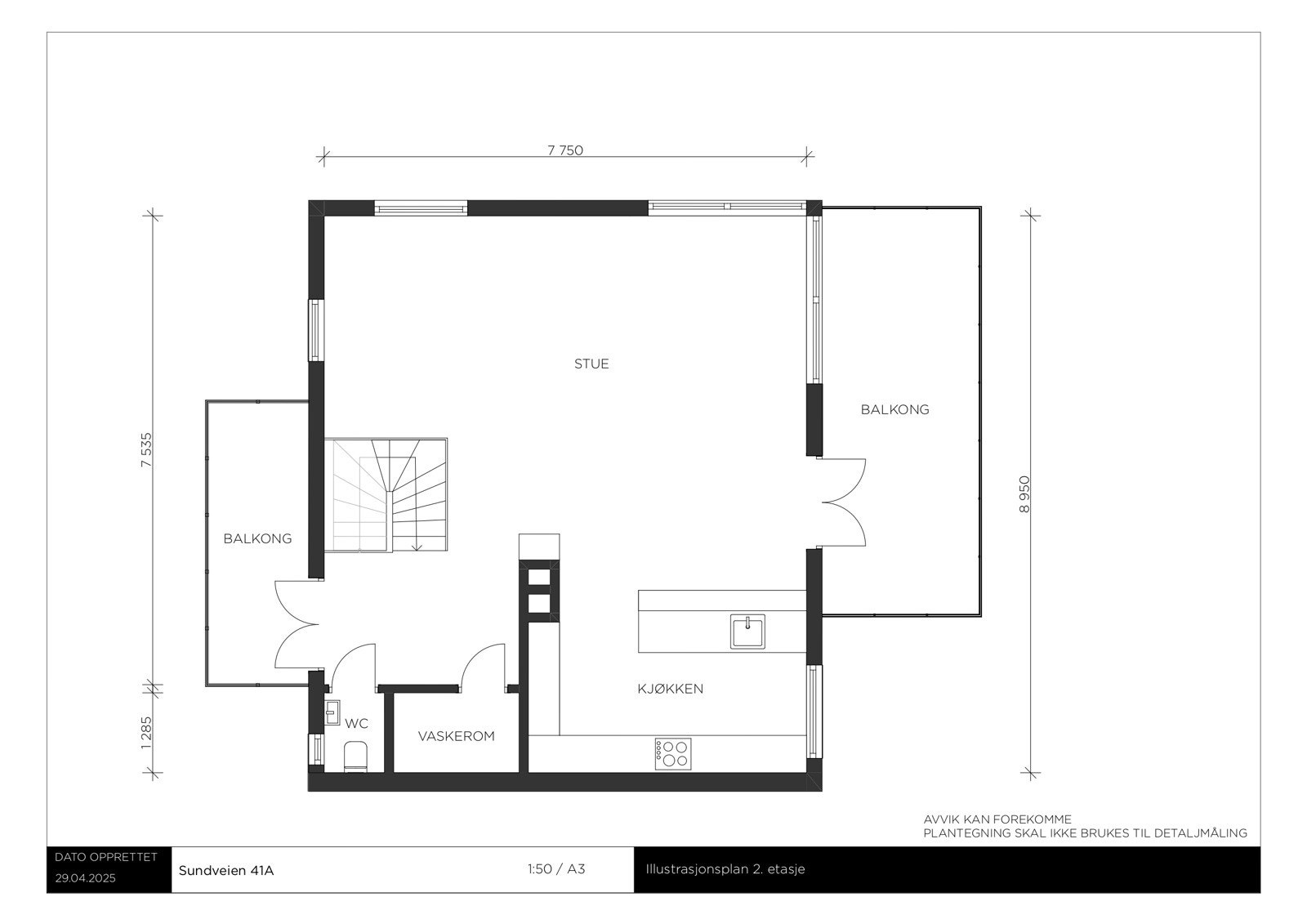
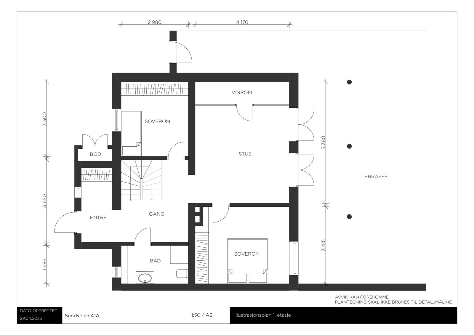
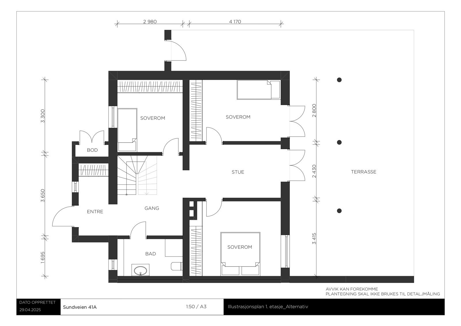
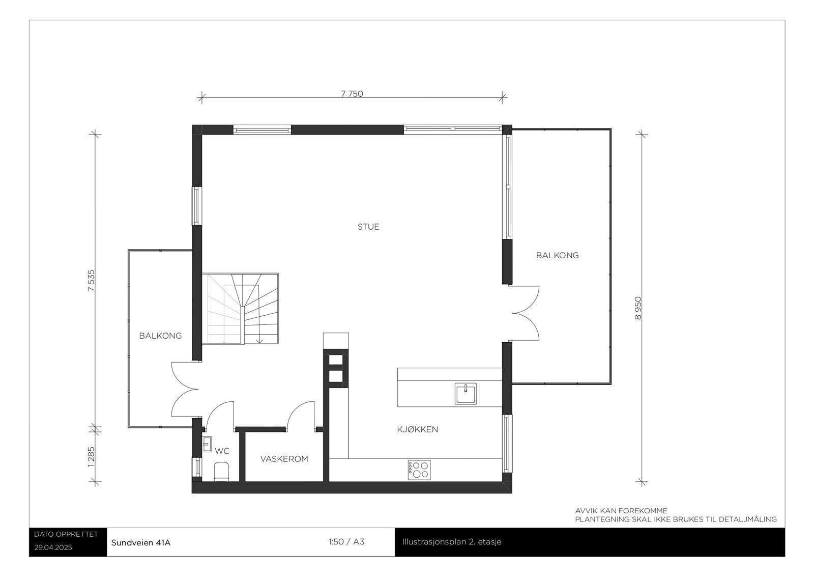
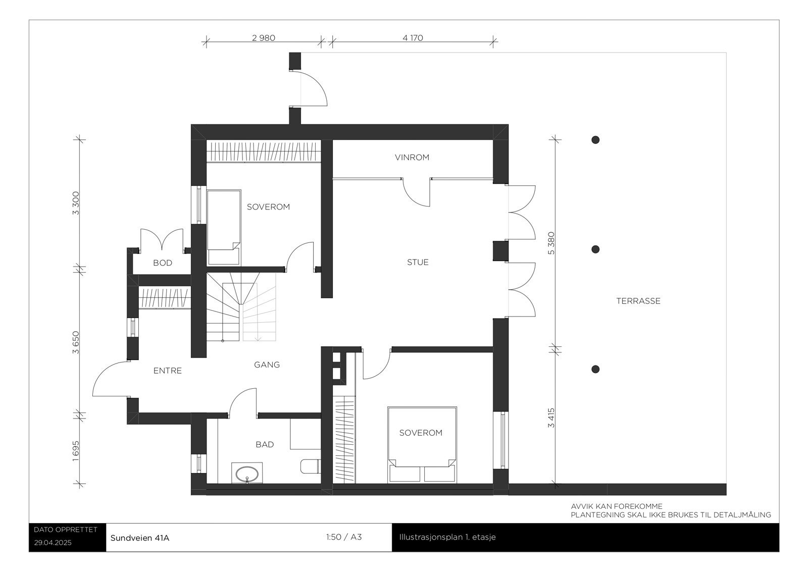
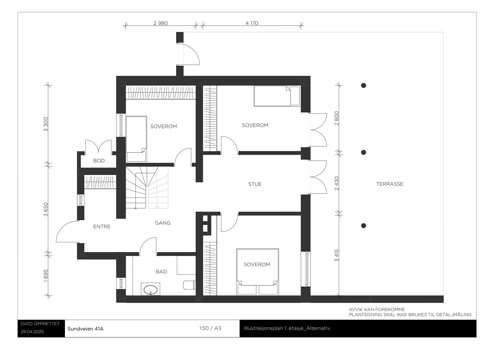
Om boligen
Velkommen til Sundveien 41 A. En flott bolig beliggende i vannkanten på ettertraktede Nesøya. Sameie Nesøya Brygge består av 4 ulike enheter. Her bor du i fantastiske omgivelser med båthus, strandlinje, 1/2 part av brygge og deler av naturtomt. Boligen ligger høyt og fritt til, med vidstrakt utsikt over sundet. Eiendommen har flere solrike uteplasser, slik at solen kan nytes fra morgen til kveld.
Kort fortalt:
- Sjelden mulighet helt i sjøkanten på Nesøya
- 2 (3) soverom
- Strandlinje, båthus og 1/2 part av brygge
- Egen trapp ned til sjøen
- Skjermede uteplasser
- Dobbelgarasje med elbillader
- Store vindusflater og fantastisk sjøutsikt
- Stue med gasspeis
- Parkett fra 2024
- Kjøkken fra Kvik
- Vinrom i tilknytning til spisestue
- Båthus og brygge oppgradert i 2023
Salgsoppgaven beskriver vesentlig og lovpålagt informasjon om eiendommen
Se komplett salgsoppgaveNyttige lenker
Nærområdet

PrivatMegleren Dyve & Partnere
Thea Sofie Lian Hvam
Annonseinformasjon
| FINN-kode | 406436319 |
|---|---|
| Sist endret | 03. jan. 2026 03:03 |
| Referanse | 159250227 |
Annonsene kan være mangelfulle i forhold til lovpålagt opplysningsplikt. Før bindende avtale inngås oppfordres interessenter til å innhente komplett informasjon fra meglerforetaket, selger eller utleier.




















































