Bildegalleri

Jonas Ekse Hovland v/ Eiendomsmegler Krogsveen har gleden av å presentere Agmund Bolts vei 28!
Inaktiv
Teisen Vest
Lys, lekker og gjennomgående 3-roms leilighet. Vestvendt og solrik balkong. Svært skjermet og god intern beliggenhet.
Prisantydning4 700 000 kr
Nøkkelinfo
- Boligtype
- Leilighet
- Eieform
- Andel
- Soverom
- 2
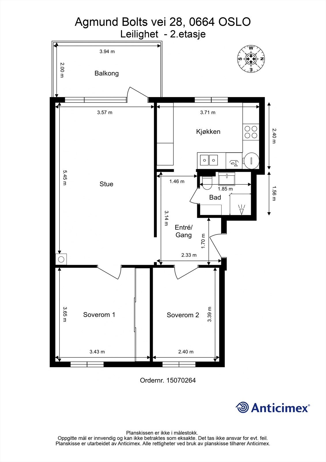
- Internt bruksareal
- 61 m² (BRA-i)
- Bruksareal
- 70 m²
- Eksternt bruksareal
- 9 m² (BRA-e)
- Balkong/Terrasse
- 8 m² (TBA)
- Etasje
- 2
- Byggeår
- 1953
- Energimerking
- F - Rød
- Rom
- 3
- Tomteareal
- 30 969 m² (eiet)
Fasiliteter
Balkong/Terrasse
Barnevennlig
Bredbåndstilknytning
Kjæledyr tillatt
Ingen gjenboere
Kabel-TV
Offentlig vann/kloakk
Parkett
Rolig
Sentralt
Vaktmester-/vektertjeneste
Om boligen
Vi har gleden av å presentere denne flotte 3-roms leiligheten i Teisen Vest Borettslag. Leiligheten har en praktisk, åpen og romslig planløsning. Store vindusflater sørger for rikelig med lys samt fint og grønt utsyn.
Sentral og attraktiv beliggenhet med gangavstand til flere buss- og T-baneforbindelser som tar deg raskt inn til sentrum og ut av Oslo. I nærområdet finnes det hyggelige spisesteder, store grøntområder og gode servicetilbud som dagligvarebutikker og treningsmuligheter.
Kvaliteter:
Sentral og attraktiv beliggenhet med gangavstand til flere buss- og T-baneforbindelser som tar deg raskt inn til sentrum og ut av Oslo. I nærområdet finnes det hyggelige spisesteder, store grøntområder og gode servicetilbud som dagligvarebutikker og treningsmuligheter.
Kvaliteter:
- Herlig balkong på 8 kvm med optimale solforhold og flott utsyn
- God intern beliggenhet midt i borettslaget, lite innsyn
- Vinduer og balkongdør fra 2018
- Hyggelig og veldrevet borettslag
- Flotte og grønne fellesområder
- Godt med lagringsplass
Velkommen!
NB: Knappen for å vise hele beskrivelsen har kun en visuell effekt.
NB: Knappen for å vise hele beskrivelsen har kun en visuell effekt.
Salgsoppgaven beskriver vesentlig og lovpålagt informasjon om eiendommen
Se komplett salgsoppgaveNyttige lenker
Nærområdet
Krogsveen Hasle
Verdien av en god megler.
Annonseinformasjon
| FINN-kode | 406364075 |
|---|---|
| Sist endret | 18. mai 2025 20:39 |
| Referanse | KR37.25200 |
Annonsene kan være mangelfulle i forhold til lovpålagt opplysningsplikt. Før bindende avtale inngås oppfordres interessenter til å innhente komplett informasjon fra meglerforetaket, selger eller utleier.











































