Bildegalleri

Velkommen til Grusveien 26, presentert av Espen Johnsen ved Nordvik.
Solgt
Populært på Lambertseter/Bergkrystallen!
Lys og fin 3(4)-roms | Solrik balkong på 4kvm | Fyring og varmtvann inkl | Flott intern beliggenhet | Ingen dok.avgift
Prisantydning4 650 000 kr
Nøkkelinfo
- Boligtype
- Leilighet
- Eieform
- Andel
- Soverom
- 2
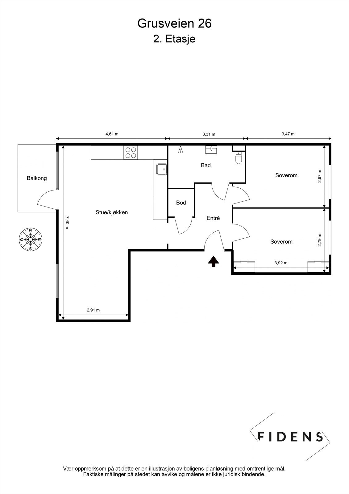
- Internt bruksareal
- 65 m² (BRA-i)
- Bruksareal
- 69 m²
- Eksternt bruksareal
- 4 m² (BRA-e)
- Balkong/Terrasse
- 4 m² (TBA)
- Etasje
- 2
- Byggeår
- 1960
- Energimerking
- E - Mørkegrønn
- Rom
- 3
- Tomt
- Eiet
Fasiliteter
Balkong/Terrasse
Barnevennlig
Bredbåndstilknytning
Fellesvaskeri
Kjæledyr tillatt
Ingen gjenboere
Kabel-TV
Offentlig vann/kloakk
Parkett
Rolig
Sentralt
Utsikt
Vaktmester-/vektertjeneste
Turterreng
Lademulighet
Om boligen
Lys og fin 3(4)-roms leilighet med populær og idyllisk beliggenhet på Lambertseter/Bergkrystallen. Leiligheten ligger fint og fritt til i byggets 2. etasje med solrik vestvendt balkong, store vindusflater, usjenert utsyn og grønne omgivelser.
Leiligheten fremstår lys og luftig med gjennomgående planløsning og fin standard, som skaper en flott atmosfære - Bør sees!
-Delikat og stort Kvik kjøkken 2017
-Solrik vestvendt balkong 4kvm
-Pent bad i regi av brl 2013
-Fyring og varmtvann inkl
-Vinduer 2019
-Ingen dok.avgift
-Mulighet for 3 soverom*
-Gode parkeringsmuligheter
-Tilbaketrukket i rolig og stille blindvei
-Svært god intern beliggenhet i populært, barnevennlig og veldrevet borettslag
-Gode kollektivforbindelser, fasiliteter, servicetilbud og hyggelige grøntområder rett i nærheten
Leiligheten fremstår lys og luftig med gjennomgående planløsning og fin standard, som skaper en flott atmosfære - Bør sees!
-Delikat og stort Kvik kjøkken 2017
-Solrik vestvendt balkong 4kvm
-Pent bad i regi av brl 2013
-Fyring og varmtvann inkl
-Vinduer 2019
-Ingen dok.avgift
-Mulighet for 3 soverom*
-Gode parkeringsmuligheter
-Tilbaketrukket i rolig og stille blindvei
-Svært god intern beliggenhet i populært, barnevennlig og veldrevet borettslag
-Gode kollektivforbindelser, fasiliteter, servicetilbud og hyggelige grøntområder rett i nærheten
NB: Knappen for å vise hele beskrivelsen har kun en visuell effekt.
NB: Knappen for å vise hele beskrivelsen har kun en visuell effekt.
Salgsoppgaven beskriver vesentlig og lovpålagt informasjon om eiendommen
Se komplett salgsoppgaveNyttige lenker
Nærområdet
Nordvik Majorstuen
Annonseinformasjon
| FINN-kode | 405987431 |
|---|---|
| Sist endret | 11. aug. 2025 06:50 |
| Referanse | 8-0242/25 |
Annonsene kan være mangelfulle i forhold til lovpålagt opplysningsplikt. Før bindende avtale inngås oppfordres interessenter til å innhente komplett informasjon fra meglerforetaket, selger eller utleier.









































