Bildegalleri

Eiendomsmegler Krogsveen avd. Årnes har gleden av å presentere Steinbukken 66!
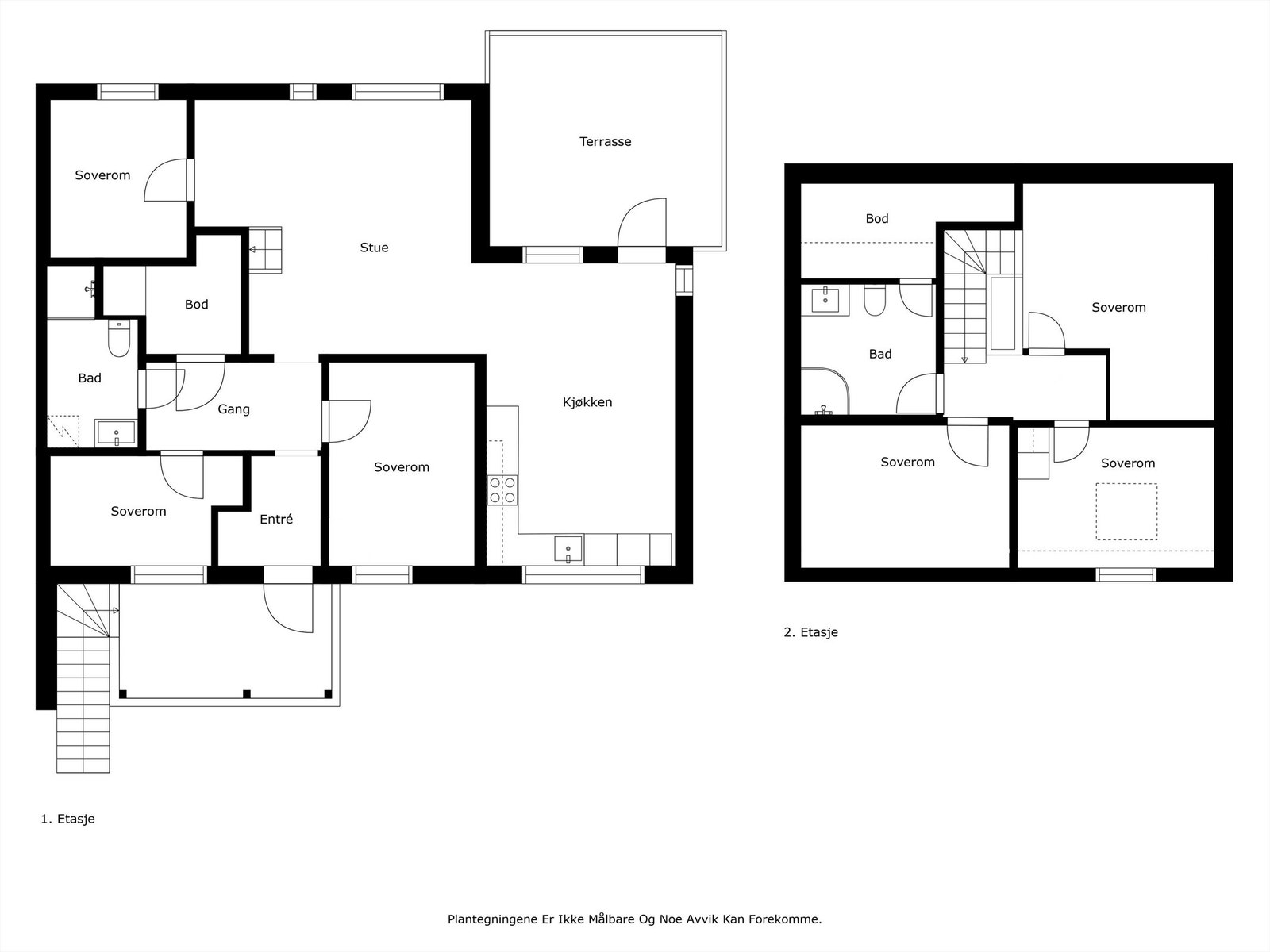
Romslig endeleilighet over 2 plan | 5 soverom, solrik terrasse og barnevennlig beliggenhet
Prisantydning5 450 000 kr
Nøkkelinfo
- Boligtype
- Leilighet
- Eieform
- Selveier
- Soverom
- 5
- Internt bruksareal
- 139 m² (BRA-i)
- Bruksareal
- 159 m²
- Eksternt bruksareal
- 20 m² (BRA-e)
- Balkong/Terrasse
- 27 m² (TBA)
- Etasje
- 2
- Byggeår
- 2022
- Energimerking
- Rom
- 6
- Tomteareal
- 13 743 m² (eiet)
Fasiliteter
Balkong/Terrasse
Barnevennlig
Garasje/P-plass
Golfbane
Kjæledyr tillatt
Kabel-TV
Parkett
Rolig
Utsikt
Turterreng
Lademulighet
Balansert ventilasjon
Visning
tirsdag, 19. mai
17:30 – 18:30
For å delta på visning, ber vi om at du melder deg på. Da sikrer vi at du får nødvendig informasjon og at det er satt av tilstrekkelig med tid. Kontakt megler dersom annet tidspunkt ønskes. Husk å lese salgsoppgaven før visningen, så du stiller forberedt. NB. Visning utgår dersom det ikke er noen påmeldte.
Ønsker du kun å bli holdt orientert, kan du fra eiendommens hjemmeside få varsel om solgtpris, eller kontakte megler.
VisningspåmeldingOm boligen
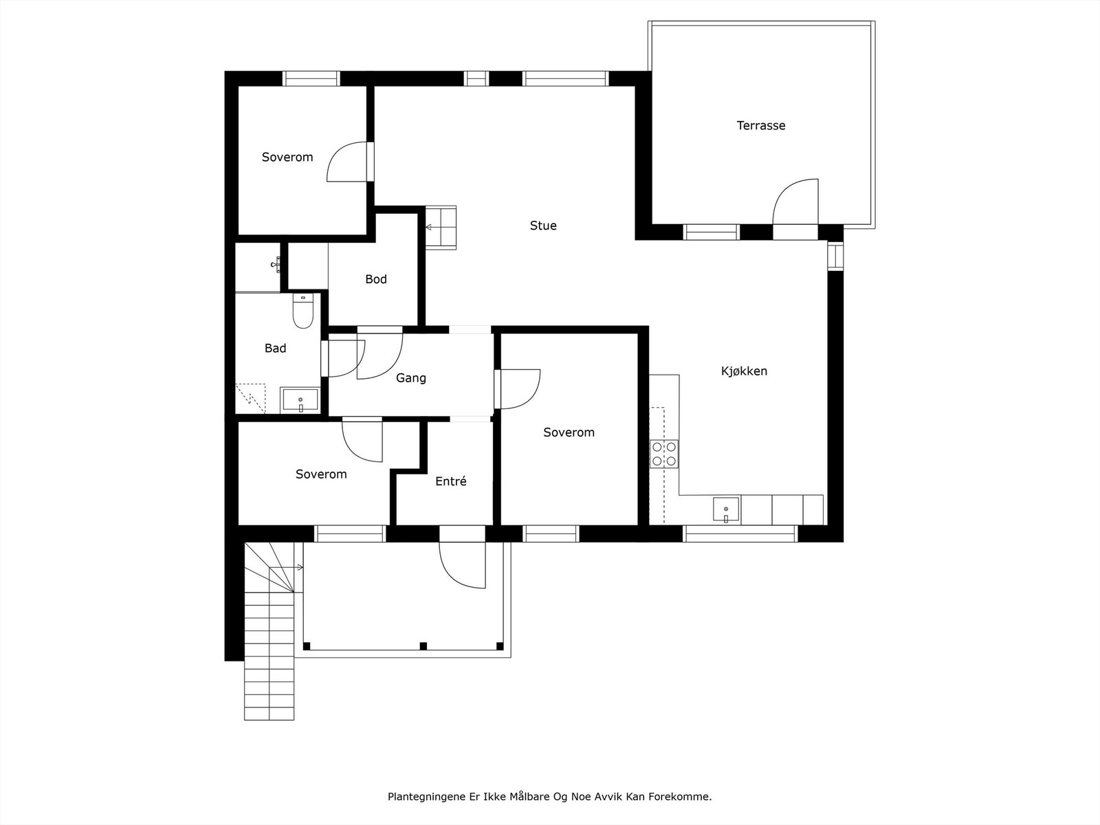
Velkommen til Steinbukken 66 - en romslig og innbydende endeleilighet over to plan, beliggende i et attraktivt og barnevennlig område på Neskollen. Boligen ligger i 2. etasje og byr på hele 5 soverom, 2 stuer og 2 bad, noe som gir god plass og fleksible løsninger for familier i ulike livsfaser.
Leiligheten har gjennomgående god standard og en praktisk planløsning som gir rom for både fellesskap og privatliv. Fra stuen er det utgang til en stor, solrik terrasse med gode solforhold - en naturlig forlengelse av oppholdsrommet i sommerhalvåret.
Her bor dere trygt og rolig med kort vei til skole, barnehage, lekeplasser, butikker og flotte turområder. Carport gir enkel parkering. Et hjem som kombinerer god plass, komfort og en velfungerende hverdag.
Velkommen til visning!
Leiligheten har gjennomgående god standard og en praktisk planløsning som gir rom for både fellesskap og privatliv. Fra stuen er det utgang til en stor, solrik terrasse med gode solforhold - en naturlig forlengelse av oppholdsrommet i sommerhalvåret.
Her bor dere trygt og rolig med kort vei til skole, barnehage, lekeplasser, butikker og flotte turområder. Carport gir enkel parkering. Et hjem som kombinerer god plass, komfort og en velfungerende hverdag.
Velkommen til visning!
NB: Knappen for å vise hele beskrivelsen har kun en visuell effekt.
NB: Knappen for å vise hele beskrivelsen har kun en visuell effekt.
Salgsoppgaven beskriver vesentlig og lovpålagt informasjon om eiendommen
Se komplett salgsoppgaveNyttige lenker
Nærområdet
Krogsveen Årnes
Verdien av en god megler.
Annonseinformasjon
| FINN-kode | 405874088 |
|---|---|
| Sist endret | 13. mai 2026 20:25 |
| Referanse | KR24.2543 |
Annonsene kan være mangelfulle i forhold til lovpålagt opplysningsplikt. Før bindende avtale inngås oppfordres interessenter til å innhente komplett informasjon fra meglerforetaket, selger eller utleier.
































