Bildegalleri

Kavringen Brygge 1 presentert av Sarah Aamodt, Sem og Johnsen eiendomsmegling.
YTTERST PÅ TJUVHOLMEN
Superstrøken hjørneleil. m/balkong på 13 kvm + felles takterrasse m/fantastisk utsikt. Mulighet for kjøp av parkering.
Prisantydning9 990 000 kr
Nøkkelinfo
- Boligtype
- Leilighet
- Eieform
- Eier (Selveier)
- Soverom
- 2
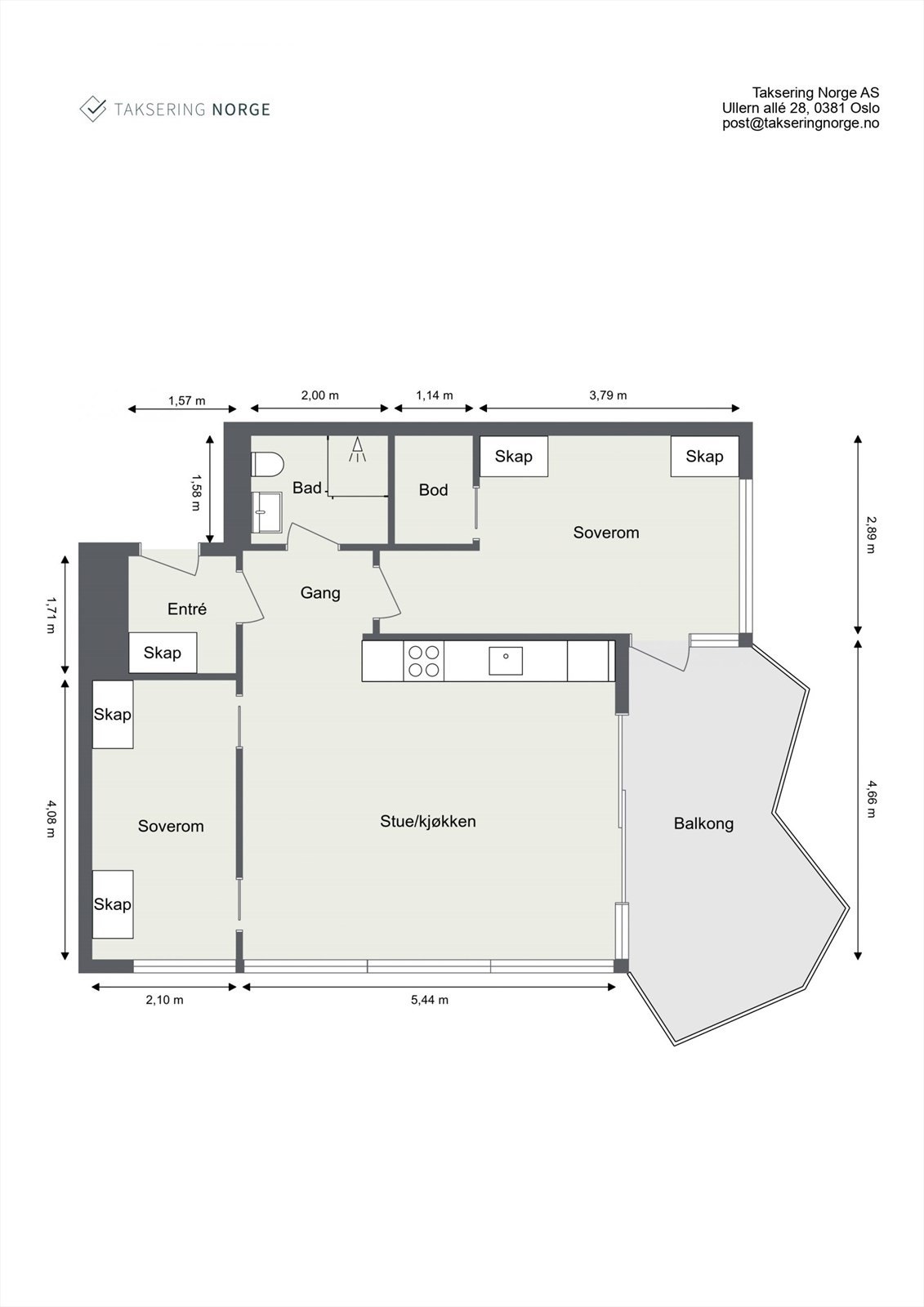
- Internt bruksareal
- 60 m² (BRA-i)
- Bruksareal
- 65 m²
- Eksternt bruksareal
- 5 m² (BRA-e)
- Balkong/Terrasse
- 13 m² (TBA)
- Etasje
- 3
- Byggeår
- 2011
- Energimerking
- C - Mørkegrønn
- Rom
- 3
- Tomteareal
- 382 m² (eiet)
Fasiliteter
Balkong/Terrasse
Bredbåndstilknytning
Garasje/P-plass
Heis
Kjæledyr tillatt
Kabel-TV
Offentlig vann/kloakk
Parkett
Rolig
Sentralt
Utsikt
Vaktmester-/vektertjeneste
Bademulighet
Fiskemulighet
Balansert ventilasjon
Om boligen
Denne arealeffektive og delikate leiligheten ytterst på Tjuvholmen kombinerer moderne komfort med førsteklasses beliggenhet og en utsikt du vil elske.
Leiligheten har en romslig balkong med nydelig sjøutsikt, perfekt plassert for å nyte solen Her starter du dagen med kaffekoppen og blikket vendt mot fjorden, mens byens liv våkner rundt deg.
Med urban utsikt og nærhet til både sjø og byliv, får du det beste fra to verdener.
Som prikken over i-en får du tilgang til en felles takterrasse med panoramautsikt og sol hele dagen et perfekt sted å nyte lange sommerkvelder med venner og familie. Leiligheten kan selges møblert.
Leiligheten har en romslig balkong med nydelig sjøutsikt, perfekt plassert for å nyte solen Her starter du dagen med kaffekoppen og blikket vendt mot fjorden, mens byens liv våkner rundt deg.
Med urban utsikt og nærhet til både sjø og byliv, får du det beste fra to verdener.
Som prikken over i-en får du tilgang til en felles takterrasse med panoramautsikt og sol hele dagen et perfekt sted å nyte lange sommerkvelder med venner og familie. Leiligheten kan selges møblert.
NB: Knappen for å vise hele beskrivelsen har kun en visuell effekt.
NB: Knappen for å vise hele beskrivelsen har kun en visuell effekt.
Salgsoppgaven beskriver vesentlig og lovpålagt informasjon om eiendommen
Se komplett salgsoppgaveNærområdet
Sem & Johnsen
Boliger utenom det vanlige
Annonseinformasjon
| FINN-kode | 405859477 |
|---|---|
| Sist endret | 15. feb. 2026 17:56 |
| Referanse | 20-25-0536 |
Annonsene kan være mangelfulle i forhold til lovpålagt opplysningsplikt. Før bindende avtale inngås oppfordres interessenter til å innhente komplett informasjon fra meglerforetaket, selger eller utleier.





















































