Bildegalleri

Leinæs & Partners v/Fremmerlid Glasø har gleden av å presentere Sønsebergveien 12.
Fenomenal eiendom med nydelige sol- og utsiktsforhold i populære Helgeroa. Flotte uteområder. Mulighet for utleiedel
Nøkkelinfo
- Boligtype
- Enebolig
- Eieform
- Selveier
- Soverom
- 5
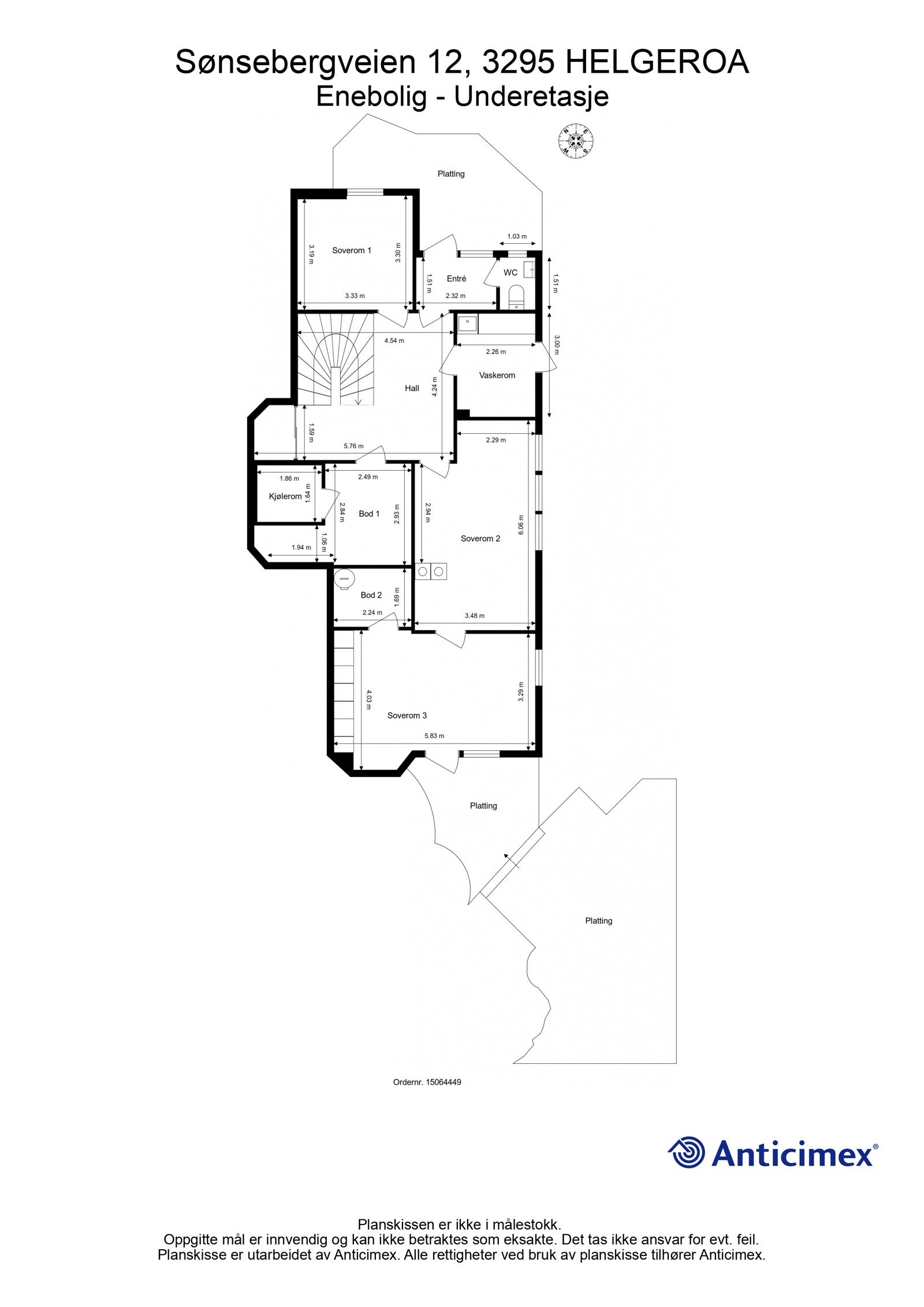
- Internt bruksareal
- 348 m² (BRA-i)
- Bruksareal
- 393 m²
- Eksternt bruksareal
- 45 m² (BRA-e)
- Balkong/Terrasse
- 207 m² (TBA)
- Byggeår
- 1986
- Energimerking
- F - Rød
- Tomteareal
- 1 302 m² (eiet)
Fasiliteter
Visning
Om boligen
Leinæs & Partners v/Fremmerlid Glasø har gleden av å presentere Sønsebergveien 12. Dette er en fenomenal eiendom med nydelige uteområder, gode solforhold og fantastisk sjøutsikt. Boligen er innholdsrik strekker seg over 3 plan, samt dobbelgarasje m/innredet overetasje. Se video for eiendommen!
Kvaliteter ved eiendommen:
- Stor enebolig på hele 393 BRA
- Nydelige uteområder
- Gode solforhold og flott sjøutsikt
- Dobbelgarasje m/innredet overetasje
- Nydelige bad og særdeles flott kjøkken
- Gjennomgående god standard
- Meget flott opparbeidet tomt med flere biloppstillingsplasser
- Flott belysning rundt hele eiendommen
- Innredet med hele 5 soverom
- Barnevennlig og attraktiv beliggenhet
- Nærhet til buss, butikk, skole og barnehage.
Dersom oppsatt visningstidspunkt ikke passer, gi megler beskjed!
Salgsoppgaven beskriver vesentlig og lovpålagt informasjon om eiendommen
Se komplett salgsoppgaveNyttige lenker
Nærområdet
Leinæs & Partners
Annonseinformasjon
| FINN-kode | 405852676 |
|---|---|
| Sist endret | 20. mars 2026 03:19 |
| Referanse | 22240168 |
Annonsene kan være mangelfulle i forhold til lovpålagt opplysningsplikt. Før bindende avtale inngås oppfordres interessenter til å innhente komplett informasjon fra meglerforetaket, selger eller utleier.





































































