Bildegalleri

Topp- og ende-leilighet med hyggelig utsikt mot skogholt
Solgt
Lambertseter
Topp- og ende-leilighet med garasje. Meget usjenert beliggenhet mot skogholt. Fleksibel planløsning.
Prisantydning4 300 000 kr
Nøkkelinfo
- Boligtype
- Leilighet
- Eieform
- Andel
- Soverom
- 2
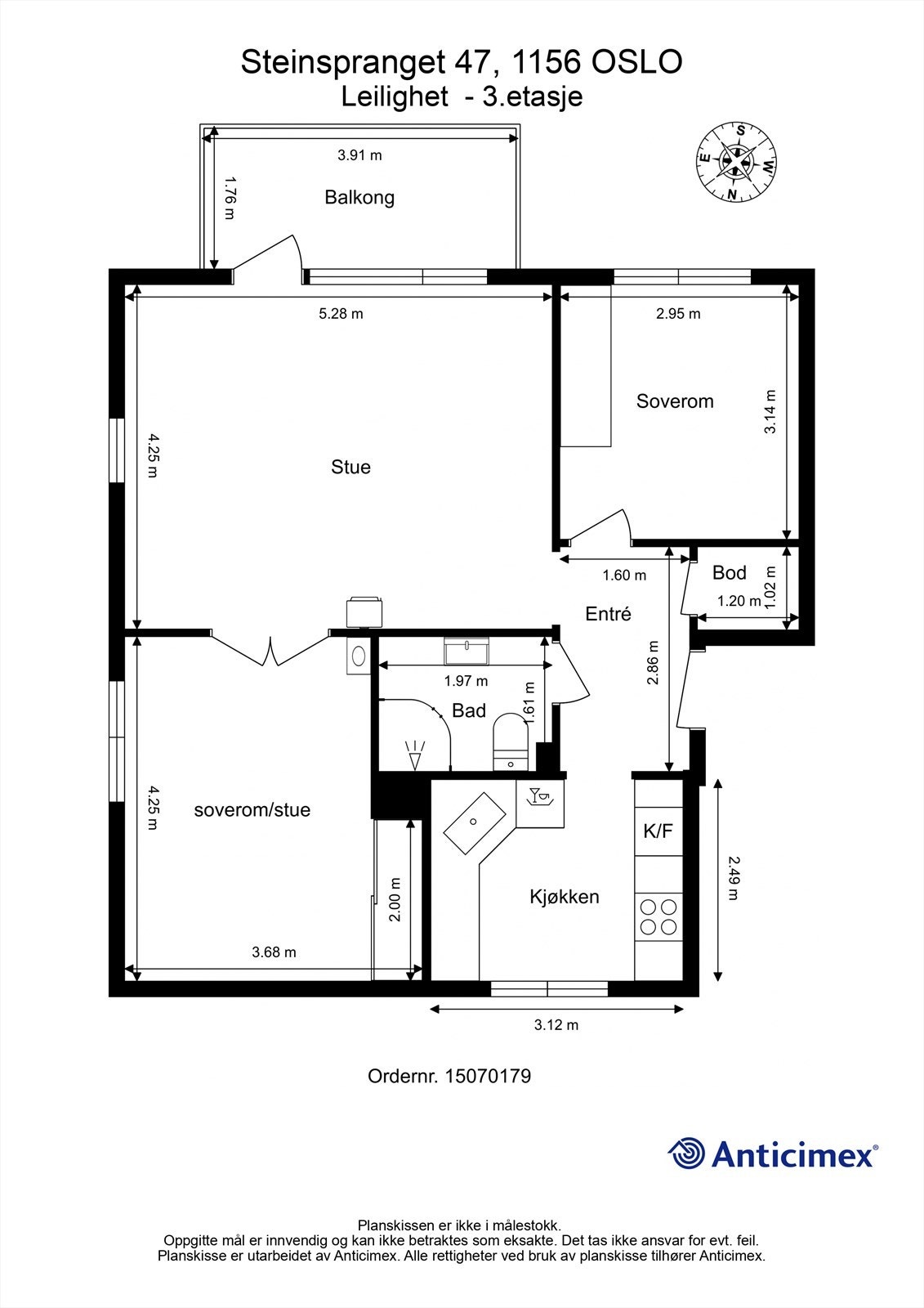
- Internt bruksareal
- 67 m² (BRA-i)
- Bruksareal
- 95 m²
- Eksternt bruksareal
- 28 m² (BRA-e)
- Balkong/Terrasse
- 7 m² (TBA)
- Etasje
- 3
- Byggeår
- 1955
- Energimerking
- F - Rød
- Rom
- 3
- Tomteareal
- 34 607 m² (eiet)
Fasiliteter
Balkong/Terrasse
Barnevennlig
Bredbåndstilknytning
Garasje/P-plass
Ingen gjenboere
Offentlig vann/kloakk
Parkett
Peis/Ildsted
Rolig
Sentralt
Vaktmester-/vektertjeneste
Turterreng
Om boligen
Attraktiv topp- og ende- leilighet med usjenert balkong vendt mot skogholt. Beliggenheten er ideell med gangavstand til lokale fasiliteter som matbutikk, T-bane, turområder, skole, barnehager og diverse servicetilbud på Lambertseter senter.
Leiligheten har en fleksibel planløsning med adskilt spisestue som også kan brukes som soverom, stor stue med peisovn og utgang til usjenert takoverbygget balkong. Den er malt i lyse farger og badet ble pusset opp i 2009. Garasjeplass medfølger salget.
Høydepunkter:
Garasjeplass
Helt usjenert toppleilighet
Grenser mot skogholt.
Fleksibel planløsning i stuen
Bad fra 2009.
Topp- og ende-leilighet, dvs ekstra vindu i stuen.
Vinduer/balkongdør fra 2022
Varmtvann inkl. i mnd. felleskostnader
Usjenert beliggenhet
Sentralt med gangavstand til alt
Leiligheten har en fleksibel planløsning med adskilt spisestue som også kan brukes som soverom, stor stue med peisovn og utgang til usjenert takoverbygget balkong. Den er malt i lyse farger og badet ble pusset opp i 2009. Garasjeplass medfølger salget.
Høydepunkter:
Garasjeplass
Helt usjenert toppleilighet
Grenser mot skogholt.
Fleksibel planløsning i stuen
Bad fra 2009.
Topp- og ende-leilighet, dvs ekstra vindu i stuen.
Vinduer/balkongdør fra 2022
Varmtvann inkl. i mnd. felleskostnader
Usjenert beliggenhet
Sentralt med gangavstand til alt
NB: Knappen for å vise hele beskrivelsen har kun en visuell effekt.
NB: Knappen for å vise hele beskrivelsen har kun en visuell effekt.
Salgsoppgaven beskriver vesentlig og lovpålagt informasjon om eiendommen
Se komplett salgsoppgaveNyttige lenker
Nærområdet
Krogsveen Nordstrand
Verdien av en god megler.
Annonseinformasjon
| FINN-kode | 405850295 |
|---|---|
| Sist endret | 29. sep. 2025 12:31 |
| Referanse | KR44.25101 |
Annonsene kan være mangelfulle i forhold til lovpålagt opplysningsplikt. Før bindende avtale inngås oppfordres interessenter til å innhente komplett informasjon fra meglerforetaket, selger eller utleier.




























