Bildegalleri

Velkommen til en klassisk perle i Thereses gate 17B med Stensparken som nærmeste nabo!
Solgt
Stensparken som nærmeste nabo
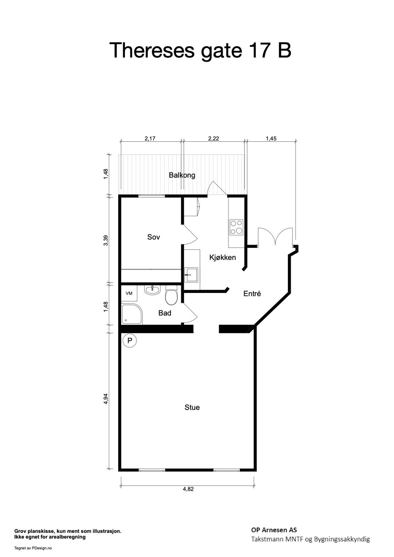
Klassisk 2-roms med vestvendt balkong. Store vindusflater, rosett, stukkatur og peisovn. Takhøyde på hele 3,1 meter!
Prisantydning6 250 000 kr
Nøkkelinfo
- Boligtype
- Leilighet
- Eieform
- Andel
- Soverom
- 1
- Internt bruksareal
- 54 m² (BRA-i)
- Bruksareal
- 67 m²
- Eksternt bruksareal
- 13 m² (BRA-e)
- Balkong/Terrasse
- 6 m² (TBA)
- Etasje
- 3
- Byggeår
- 1891
- Energimerking
- G - Oransje
- Rom
- 2
- Tomteareal
- 543 m² (eiet)
Fasiliteter
Balkong/Terrasse
Offentlig vann/kloakk
Parkett
Peis/Ildsted
Turterreng
Utsikt
Sentralt
Om boligen
Thereses gate 17B er en 2-roms leilighet med klassiske detaljer som rosett og stukkatur, og i tillegg har leiligheten peisovn! Borettslaget har en skjermet, stille, idyllisk og grønn bakgård med sittegrupper og sykkelparkering. Leiligheten ligger sentralt og populært til på Bislett, rett ved Stensparken. Dette er en fantastisk beliggenhet for deg som ønsker å bo sentralt, og samtidig tilbaketrukket.
Høydepunkter:
- Vestvendt balkong på 6 m² vendt mot bakgård og park.
- Original rosett og stukkatur i stuen.
- Morsø peisovn i stuen.
- Nytt fibernett i borettslaget i 2025.
- Takhøyde på 3.10 m i stue og 3.17 m på kjøkken.
- Disponerer 2 boder alene med gulvareal på til sammen 16 m². I tillegg deler man en trappebod med naboen.
Høydepunkter:
- Vestvendt balkong på 6 m² vendt mot bakgård og park.
- Original rosett og stukkatur i stuen.
- Morsø peisovn i stuen.
- Nytt fibernett i borettslaget i 2025.
- Takhøyde på 3.10 m i stue og 3.17 m på kjøkken.
- Disponerer 2 boder alene med gulvareal på til sammen 16 m². I tillegg deler man en trappebod med naboen.
NB: Knappen for å vise hele beskrivelsen har kun en visuell effekt.
NB: Knappen for å vise hele beskrivelsen har kun en visuell effekt.
Salgsoppgaven beskriver vesentlig og lovpålagt informasjon om eiendommen
Se komplett salgsoppgaveNyttige lenker
Nærområdet

Privatmegleren Komplett
Kun det beste på dine vegne
Annonseinformasjon
| FINN-kode | 405799379 |
|---|---|
| Sist endret | 16. mai 2025 15:29 |
| Referanse | 306250086 |
Annonsene kan være mangelfulle i forhold til lovpålagt opplysningsplikt. Før bindende avtale inngås oppfordres interessenter til å innhente komplett informasjon fra meglerforetaket, selger eller utleier.



























