Bildegalleri

Velkommen til Myrullsvingen 2a - presentert av Advokatfirmaet Herstad AS!
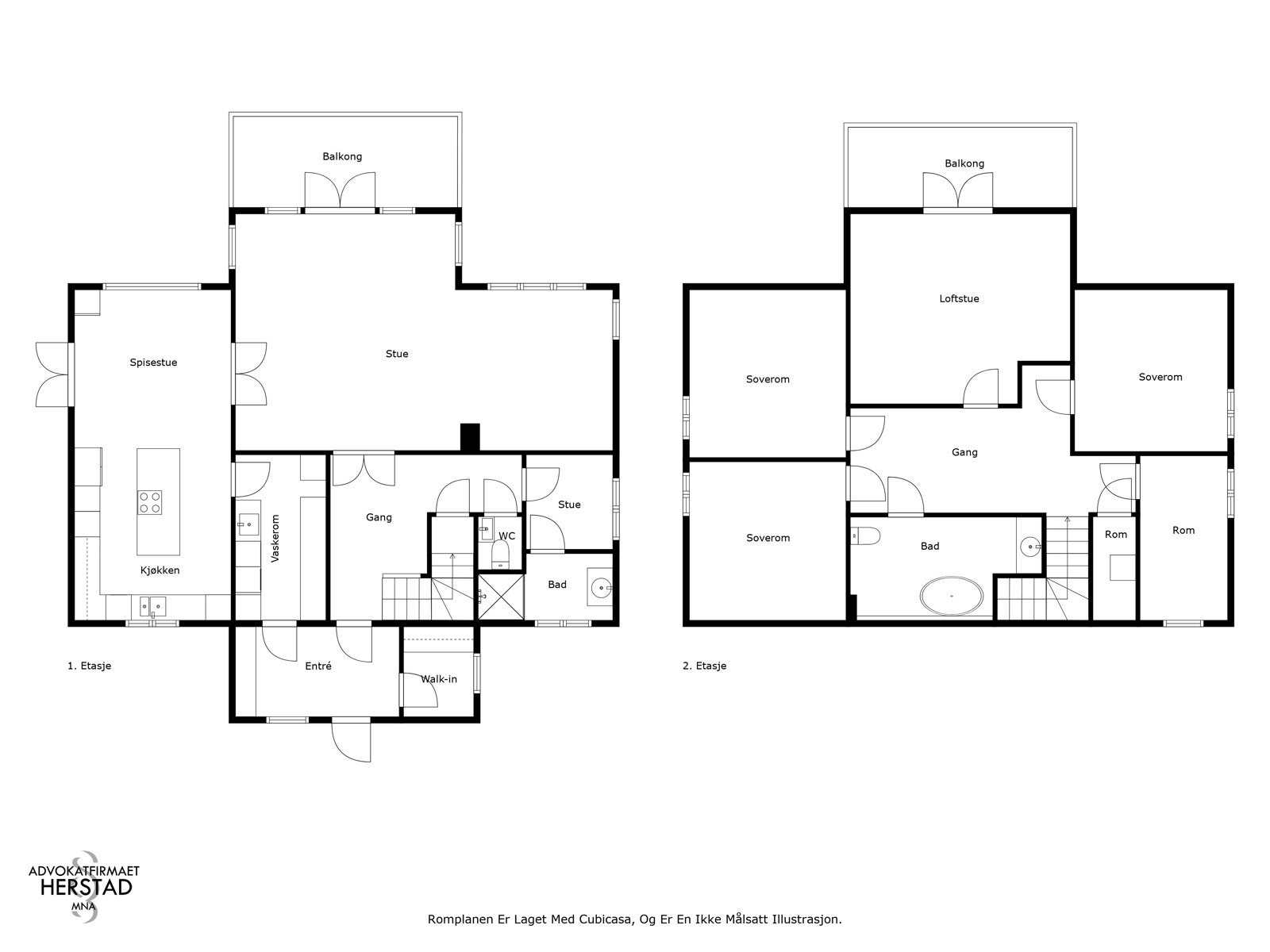
Hesseng: Stor, nyere enebolig med bla tre soverom, stor stue, flott kjøkken og to romslige utleiedeler!
Nøkkelinfo
- Boligtype
- Enebolig
- Eieform
- Eier (Selveier)
- Soverom
- 5
- Internt bruksareal
- 321 m² (BRA-i)
- Bruksareal
- 358 m²
- Balkong/Terrasse
- 37 m² (TBA)
- Byggeår
- 2011
- Energimerking
- B - Gul
- Tomteareal
- 1 018 m² (festet)
- Festeavgift
- 994 kr
- Boligselgerforsikring
- Ja
Fasiliteter
Visning
Om boligen
Velkommen til Myrullsvingen 2a på Hessen - presentert av Advokatfirmaet Herstad AS!
Eneboligen er fra 2011, og består av en hoveddel over to etasjer med blant annet tre soverom, stor stue og flott kjøkken, samt to utleiedeler i underetasjen som sørger for gode leieinntekter! Begge disse er for tiden utleid.
Boligen har en fin beliggenhet i et attraktivt og barnevennlig boligområde sentralt på Hesseng. Her bor man i kort avstand til Hesseng flerbrukssenter, barnehager, Kirkenes videregående skole, dagligvarebutikker, treningssenter mm, og ca 4 km fra Kirkenes sentrum.
Salgsoppgaven beskriver vesentlig og lovpålagt informasjon om eiendommen
Se komplett salgsoppgaveNyttige lenker
Nærområdet

Advokatfirmaet Herstad AS
Annonsene kan være mangelfulle i forhold til lovpålagt opplysningsplikt. Før bindende avtale inngås oppfordres interessenter til å innhente komplett informasjon fra meglerforetaket, selger eller utleier.



































































