Bildegalleri

Velkommen til hyggelige Frederik Glads gate og denne fine leiligheten!
Solgt
Øvre Torshov / Sandaker
Lys og flott 3-R med nyere standard - Totalrenovert i 2021/2022 - Lave felleskost. - Heis - Skjermet og rolig - Sentralt
Prisantydning4 870 000 kr
Nøkkelinfo
- Boligtype
- Leilighet
- Eieform
- Selveier
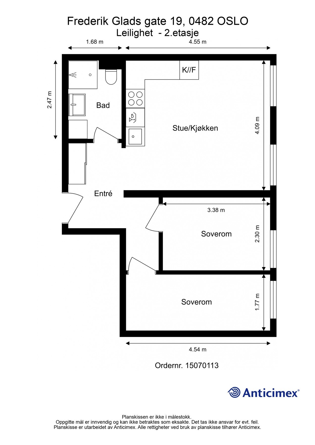
- Soverom
- 2
- Internt bruksareal
- 48 m² (BRA-i)
- Bruksareal
- 52 m²
- Eksternt bruksareal
- 4 m² (BRA-e)
- Etasje
- 2
- Byggeår
- 1980
- Energimerking
- E - Rød
- Rom
- 3
- Tomteareal
- 1 132 m² (eiet)
Fasiliteter
Barnevennlig
Heis
Offentlig vann/kloakk
Sentralt
Bredbåndstilknytning
Moderne
Rolig
Om boligen
Velkommen til hyggelige Frederik Glads gate og denne fine leiligheten!
Dette er en lys og moderne 3-roms leilighet med en skjermet, rolig og tilbaketrukket beliggenhet på øvre Torshov/Sandaker. Leiligheten har en gjennomgående god standard og ble i sin helhet totalrenovert i 2021/2022 med blant annet nytt bad og kjøkken, i tillegg til omgjøring av planløsning for å få to gode soverom. Det foreligger dokumentasjon på arbeid utført av fagfolk. Her kan du med andre ord flytte rett inn!
Nabolaget er hyggelig og populært, med yrende byliv, kafeer, butikker og grønne parker rett utenfor døren. Frederik Glads gate er en rolig og stille gate uten mye gjennomfartstrafikk. Hva mer kan man ønske seg?
- Skjermet, rolig og tilbaketrukket bomiljø
- Hele leiligheten totalrenovert i 2021-2022
- Nye vinduer i 2022 og ny inngangsdør i 2025
- Nymalt oppgang i sameiet
- Heisadkomst
- Lave felleskostnader
- Nærme Storo senter og Handelshøyskolen BI
- Svært godt kollektivtilbud med buss, trikk og T-bane
Dette er en lys og moderne 3-roms leilighet med en skjermet, rolig og tilbaketrukket beliggenhet på øvre Torshov/Sandaker. Leiligheten har en gjennomgående god standard og ble i sin helhet totalrenovert i 2021/2022 med blant annet nytt bad og kjøkken, i tillegg til omgjøring av planløsning for å få to gode soverom. Det foreligger dokumentasjon på arbeid utført av fagfolk. Her kan du med andre ord flytte rett inn!
Nabolaget er hyggelig og populært, med yrende byliv, kafeer, butikker og grønne parker rett utenfor døren. Frederik Glads gate er en rolig og stille gate uten mye gjennomfartstrafikk. Hva mer kan man ønske seg?
- Skjermet, rolig og tilbaketrukket bomiljø
- Hele leiligheten totalrenovert i 2021-2022
- Nye vinduer i 2022 og ny inngangsdør i 2025
- Nymalt oppgang i sameiet
- Heisadkomst
- Lave felleskostnader
- Nærme Storo senter og Handelshøyskolen BI
- Svært godt kollektivtilbud med buss, trikk og T-bane
NB: Knappen for å vise hele beskrivelsen har kun en visuell effekt.
NB: Knappen for å vise hele beskrivelsen har kun en visuell effekt.
Salgsoppgaven beskriver vesentlig og lovpålagt informasjon om eiendommen
Se komplett salgsoppgaveNyttige lenker
Nærområdet
EIE eiendomsmegling Ullevål & Sagene
Annonseinformasjon
| FINN-kode | 405659614 |
|---|---|
| Sist endret | 12. juni 2025 15:07 |
| Referanse | 15251093 |
Annonsene kan være mangelfulle i forhold til lovpålagt opplysningsplikt. Før bindende avtale inngås oppfordres interessenter til å innhente komplett informasjon fra meglerforetaket, selger eller utleier.







































