Bildegalleri

Velkommen til Norderhovgata 4B!
Solgt
Unik og særdeles innholdsrik enebolig (ombygd stall) - Nydelig utsikt over byen - Takterrasse - Mulighet for p-plass
Prisantydning16 300 000 kr
Nøkkelinfo
- Boligtype
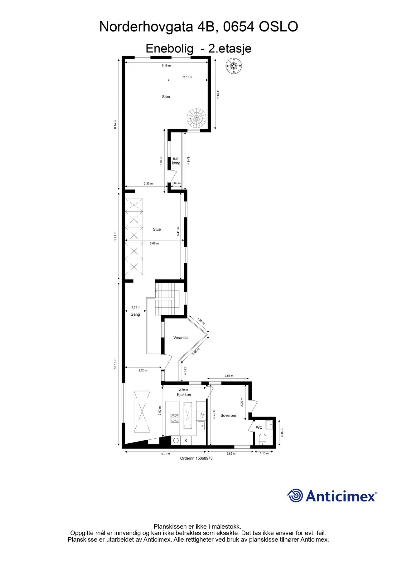
- Enebolig
- Eieform
- Selveier
- Soverom
- 3
- Internt bruksareal
- 206 m² (BRA-i)
- Bruksareal
- 219 m²
- Eksternt bruksareal
- 13 m² (BRA-e)
- Balkong/Terrasse
- 23 m² (TBA)
- Byggeår
- 1885
- Energimerking
- G - Rød
- Tomteareal
- 628 m² (eiet)
Fasiliteter
Barnevennlig
Balkong/Terrasse
Garasje/P-plass
Offentlig vann/kloakk
Parkett
Peis/Ildsted
Turterreng
Utsikt
Sentralt
Bredbåndstilknytning
Moderne
Rolig
Om boligen
Velkommen til Norderhovgata 4B!
Sjarmerende enebolig over 3 etasjer med takterasse på 15kvm. Boligen er opprinnelig oppført som stall i 1885, ombygget i 1987 og senere påbygget i 1997 med loftstue og takterrasse. Boligen har en 27m lang stue som ender opp i et koselig kjøkken med peis.
Verdt å merke seg:
- 2 flotte uteplasser
- Takterrasse
- Nydelig utsikt over Oslo
- Koselig brostensbelagt gårdsrom
- Kjellerbod på 13m2
- Mulighet for å overta leieavtale for parkeringsplass med el-bil lader
- Sentral og god beliggenhet midt på Kampen nær torget, kirken og skolen.
Velkommen til visning!
Sjarmerende enebolig over 3 etasjer med takterasse på 15kvm. Boligen er opprinnelig oppført som stall i 1885, ombygget i 1987 og senere påbygget i 1997 med loftstue og takterrasse. Boligen har en 27m lang stue som ender opp i et koselig kjøkken med peis.
Verdt å merke seg:
- 2 flotte uteplasser
- Takterrasse
- Nydelig utsikt over Oslo
- Koselig brostensbelagt gårdsrom
- Kjellerbod på 13m2
- Mulighet for å overta leieavtale for parkeringsplass med el-bil lader
- Sentral og god beliggenhet midt på Kampen nær torget, kirken og skolen.
Velkommen til visning!
NB: Knappen for å vise hele beskrivelsen har kun en visuell effekt.
NB: Knappen for å vise hele beskrivelsen har kun en visuell effekt.
Salgsoppgaven beskriver vesentlig og lovpålagt informasjon om eiendommen
Se komplett salgsoppgaveNyttige lenker
Nærområdet
EIE eiendomsmegling Vinderen
Annonseinformasjon
| FINN-kode | 405455171 |
|---|---|
| Sist endret | 23. juni 2025 09:43 |
| Referanse | 31250048 |
Annonsene kan være mangelfulle i forhold til lovpålagt opplysningsplikt. Før bindende avtale inngås oppfordres interessenter til å innhente komplett informasjon fra meglerforetaket, selger eller utleier.















































