Bildegalleri

EIE eiendomsmegling presenterer Fagerlivegen 8C.
Solgt
Fagerlia
Pen leilighet i veldrevet borettslag | Innglasset balkong (16 m²) | Parkering | Vedfyring | 2 soverom | Nær NTNU og NMK
Prisantydning2 150 000 kr
Nøkkelinfo
- Boligtype
- Leilighet
- Eieform
- Andel
- Soverom
- 2
- Internt bruksareal
- 65 m² (BRA-i)
- Bruksareal
- 89 m²
- Eksternt bruksareal
- 8 m² (BRA-e)
- Innglasset balkong
- 16 m² (BRA-b)
- Etasje
- 2
- Byggeår
- 1956
- Rom
- 3
- Tomteareal
- 4 722 m²
Fasiliteter
Barnevennlig
Balkong/Terrasse
Garasje/P-plass
Kabel-TV
Offentlig vann/kloakk
Peis/Ildsted
Utsikt
Sentralt
Bredbåndstilknytning
Rolig
Om boligen
EIE Eiendomsmegling har gleden av å presentere Fagerlivegen 8C!
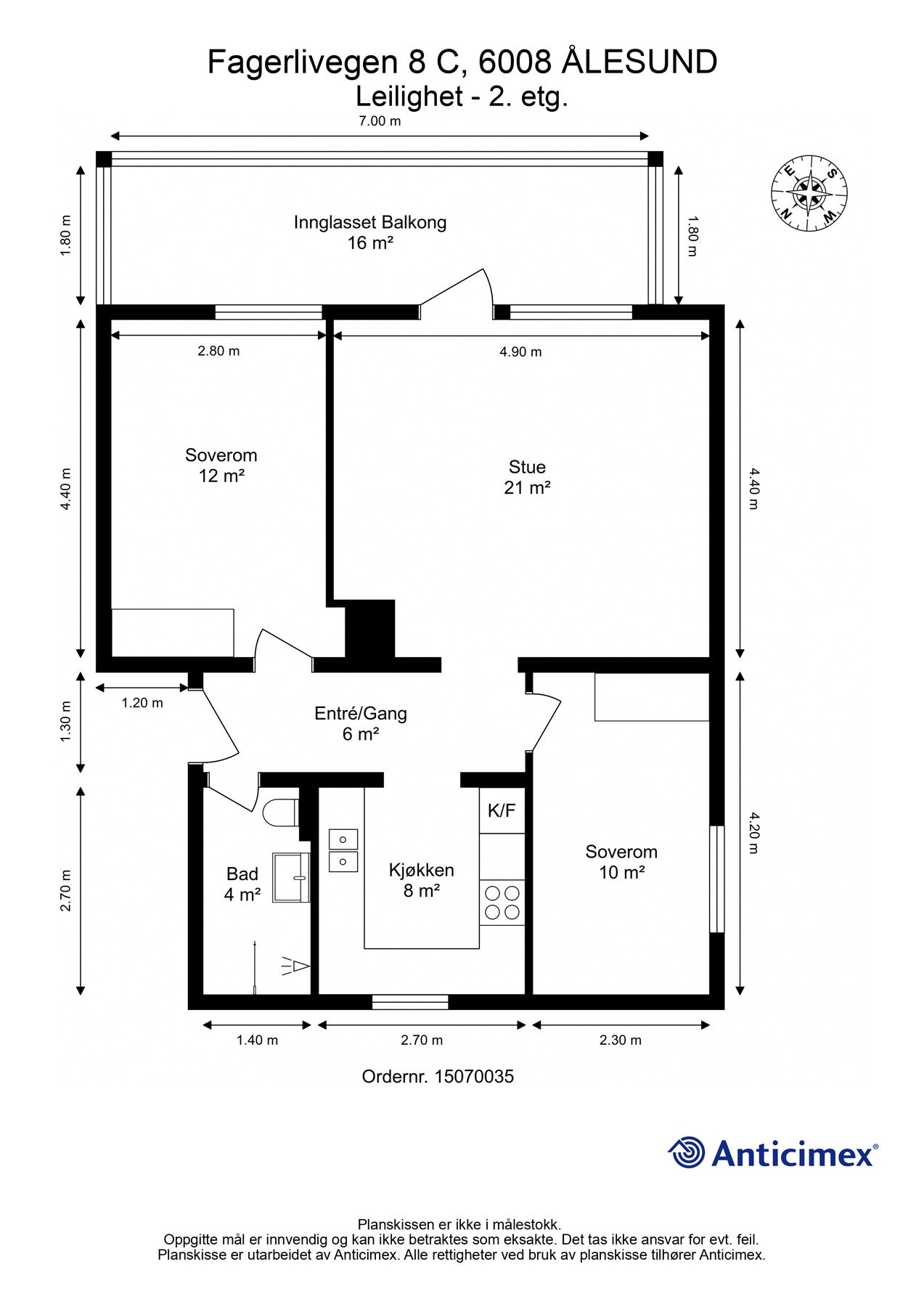
Leiligheten inneholder entré/gang, bad, kjøkken, stue og to soverom, samt en sydøstvendt, innglasset balkong, to kjellerboder og en nettingbod på loftet.
Høydepunkter:
Leiligheten inneholder entré/gang, bad, kjøkken, stue og to soverom, samt en sydøstvendt, innglasset balkong, to kjellerboder og en nettingbod på loftet.
Høydepunkter:
- Beliggende i et rolig område, nær NTNU, kollektivtransport og naturområder med flere turstier.
- Parkering på felles oppstillingsplass, basert på "første mann til mølla"-prinsippet.
- Et veldrevet borettslag, som blant annet har rehabilitert fasaden i 2014, pusset opp oppgangene i 2016, oppgradert uteområdet i 2017 og rehabilitert pipene i 2020.
- En innglasset balkong på 16 m², av god størrelse, med flott utsikt og gode solforhold - en naturlig forlengelse av stuen.
- Vedfyring.
- To romslige soverom.
- Rikelig med lagringsplass i tre boder - to i kjelleren og én på loftet.
Velkommen til visning! Husk å melde deg på.
NB: Knappen for å vise hele beskrivelsen har kun en visuell effekt.
NB: Knappen for å vise hele beskrivelsen har kun en visuell effekt.
Salgsoppgaven beskriver vesentlig og lovpålagt informasjon om eiendommen
Se komplett salgsoppgaveNyttige lenker
Nærområdet
EIE Eiendomsmegling Ålesund
Annonseinformasjon
| FINN-kode | 405309216 |
|---|---|
| Sist endret | 08. juli 2025 07:53 |
| Referanse | 17250046 |
Annonsene kan være mangelfulle i forhold til lovpålagt opplysningsplikt. Før bindende avtale inngås oppfordres interessenter til å innhente komplett informasjon fra meglerforetaket, selger eller utleier.

































