Bildegalleri

Solgt

BRUMUNDDAL - Lettstelt og stilren endeleilighet over 2 plan med sentral beliggenhet. Fine solforhold.

Prisantydning1 390 000 kr
Totalpris
1 797 091 kr
Omkostninger
11 240 kr
Fellesgjeld
395 851 kr
Felleskost/mnd.
6 761 kr
Fellesformue
30 124 kr
Formuesverdi
525 426 kr

Nøkkelinfo

Boligtype
Rekkehus
Eieform
Andel
Soverom
1
Internt bruksareal
64 m² (BRA-i)
Eksternt bruksareal
1 m² (BRA-e)
Balkong/Terrasse
32 m² (TBA)
Etasje
1
Byggeår
1977
Energimerking
E - Gul
Tomteareal
15 300 m² (eiet)
Bruttoareal
69 m²

Les mer om bruksareal her

Fasiliteter

Balkong/Terrasse
Peis/Ildsted
Barnevennlig
Rolig
Sentralt
Turterreng
Offentlig vann/kloakk
Bredbåndstilknytning
Lademulighet

Om boligen

EIE har gleden av å presentere denne lune og koselige andelsleiligheten i Børkesvevegen 19!


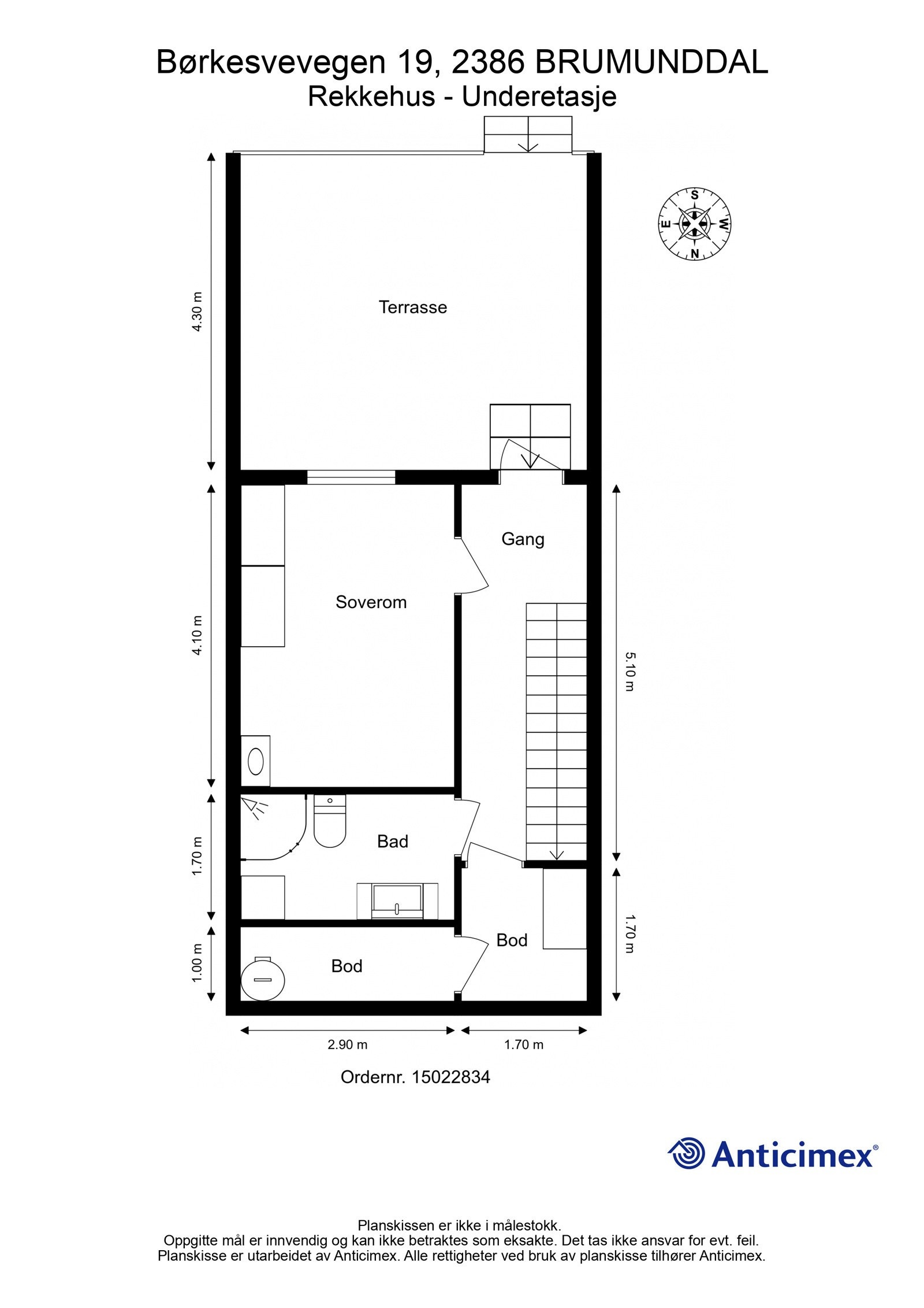
Denne flotte endeleiligheten strekker seg over to etasjer og fremstår lys og stilren. Boligen inneholder entré, soverom, bad, stue, kjøkken og 2 boder. Fra stuen er det utgang til flott og solrik balkong. I underetasjen er det utgang til en sørvendt og stor terrasse på 21 m² med fine solforhold. Eiendommen ligger i et rolig boligområde, med kort vei til Brumunddal sentrum. Dette gir deg det beste fra begge verdener - en praktisk beliggenhet som gir tilgang til alle fasiliteter, samtidig som du kan nyte et rolig og avslappende nabolag med flotte turmuligheter rett utenfor døren.


Velkommen til en hyggelig visning!

Salgsoppgaven beskriver vesentlig og lovpålagt informasjon om eiendommen

Se komplett salgsoppgave

Nærområdet

Annonseinformasjon

FINN-kode405281906
Sist endret10. mai 2025 12:19
Referanse22220087

Rapporter annonse

Annonsene kan være mangelfulle i forhold til lovpålagt opplysningsplikt. Før bindende avtale inngås oppfordres interessenter til å innhente komplett informasjon fra meglerforetaket, selger eller utleier.