Bildegalleri

Velkommen til Langhusveien 274. Vi gjør oppmerksom på at bildene i denne annonsen er hentet fra et tidligere salg og at boligen vil fremstå annerledes på visningen
Langhus
Flott enebolig med hybel | Oppusset i 2022 | solrik tomt | Stor hage | Stor garasje | Familievennlig | Kort vei til Oslo
Prisantydning7 200 000 kr
Nøkkelinfo
- Boligtype
- Enebolig
- Eieform
- Eier (Selveier)
- Soverom
- 5
- Internt bruksareal
- 155 m² (BRA-i)
- Bruksareal
- 189 m²
- Eksternt bruksareal
- 34 m² (BRA-e)
- Balkong/Terrasse
- 44 m² (TBA)
- Byggeår
- 1963
- Energimerking
- G - Rød
- Rom
- 7
- Tomteareal
- 1 084 m² (eiet)
Fasiliteter
Barnevennlig
Balkong/Terrasse
Garasje/P-plass
Offentlig vann/kloakk
Peis/Ildsted
Turterreng
Sentralt
Moderne
Rolig
Lademulighet
Visning
søndag, 15. mars
14:00 – 14:45
Meld deg på visning eller kontakt eiendomsmegler for privatvisning.
Visning blir ikke gjennomført uten påmeldte.
Om boligen
Velkommen til Langhusveien 274! Presentert av Reis Malik v/Eiendomsmeglerne AS
Lys og innbydende enebolig på Langhus! Her bor du i et hyggelig nabolag og et familievennlig område, med kort vei til buss, tog, skole, barnehager og flotte grøntområder.
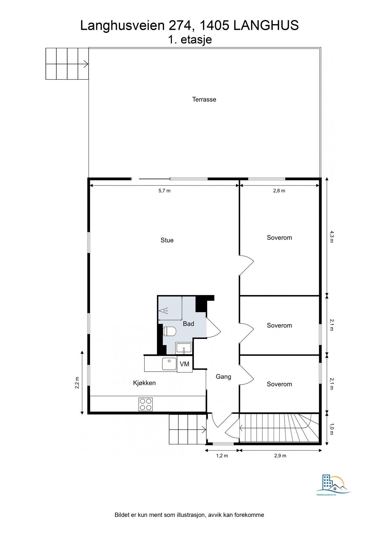
Boligen har fått betydelige oppgraderinger, blant annet innredet kjeller fra 2022 med nytt bad, vaskerom/kjøkken, stue og soverom.
Hovedetasjen byr på stue med peis, nyere kjøkken med integrerte hvitevarer, tre soverom og bad. Sydvestvendt terrasse gir gode solforhold på ettermiddagen og kvelden.
Noen kvaliteter:
Lys og innbydende enebolig på Langhus! Her bor du i et hyggelig nabolag og et familievennlig område, med kort vei til buss, tog, skole, barnehager og flotte grøntområder.
Boligen har fått betydelige oppgraderinger, blant annet innredet kjeller fra 2022 med nytt bad, vaskerom/kjøkken, stue og soverom.
Hovedetasjen byr på stue med peis, nyere kjøkken med integrerte hvitevarer, tre soverom og bad. Sydvestvendt terrasse gir gode solforhold på ettermiddagen og kvelden.
Noen kvaliteter:
- Utleiedel / kjellerhybel med skattefri inntekt
- Dobbel garasje+stor biloppstillingsplass
- Solrik tomt på ca. 1084 m²
- Nyere kjøkken
- Peis
- Stor hage med terrasse på ca. 44 m²
- Barnevennlig beliggenhet nær skole, barnehage og togstasjon
- Ca 30 min til Oslo med Buss/Tog og 20 min med bil
- Nærhet til turområder
NB: Knappen for å vise hele beskrivelsen har kun en visuell effekt.
NB: Knappen for å vise hele beskrivelsen har kun en visuell effekt.
Salgsoppgaven beskriver vesentlig og lovpålagt informasjon om eiendommen
Se komplett salgsoppgaveNærområdet
Eiendomsmeglerne AS
Erfaring og lokalkunnskap
Annonseinformasjon
| FINN-kode | 405267360 |
|---|---|
| Sist endret | 04. mars 2026 16:33 |
| Referanse | 202250053 |
Annonsene kan være mangelfulle i forhold til lovpålagt opplysningsplikt. Før bindende avtale inngås oppfordres interessenter til å innhente komplett informasjon fra meglerforetaket, selger eller utleier.












































