Bildegalleri

Nydelig toppleilighet med sentral beliggenhet like ved Gløshaugen og Høyskoleparken.
Nydelig toppleilighet med sjel og stilsikker fremtoning like ved Gløshaugen. Heis i bygget. 2 soverom og romslig hems.
Nøkkelinfo
- Boligtype
- Leilighet
- Eieform
- Andel
- Soverom
- 2
- Internt bruksareal
- 75 m² (BRA-i)
- Bruksareal
- 84 m²
- Eksternt bruksareal
- 9 m² (BRA-e)
- Etasje
- 5
- Byggeår
- 1917
- Energimerking
- G - Rød
- Tomt
- Eiet
- Boligselgerforsikring
- Ja
Fasiliteter
Om boligen
Nydelig bygårdsleilighet med stilsikker fremtoning og særpreg med høy himling og synlige bjelkelag. Leiligheten har en svært sentral beliggenhet og ligger med umiddelbar nærhet til både Gløshaugen og St. Olavs. Videre innover mot sentrum ligger Torget drøye 10 minutters gange fra boligen.
- Glimrende plassering i toppetasjen med adkomst via heis.
- Privat bofølelse, helt skjermet for innsyn og støy.
- Stilsikker framtoning med fiskebeinsgulv og smakfulle fargevalg.
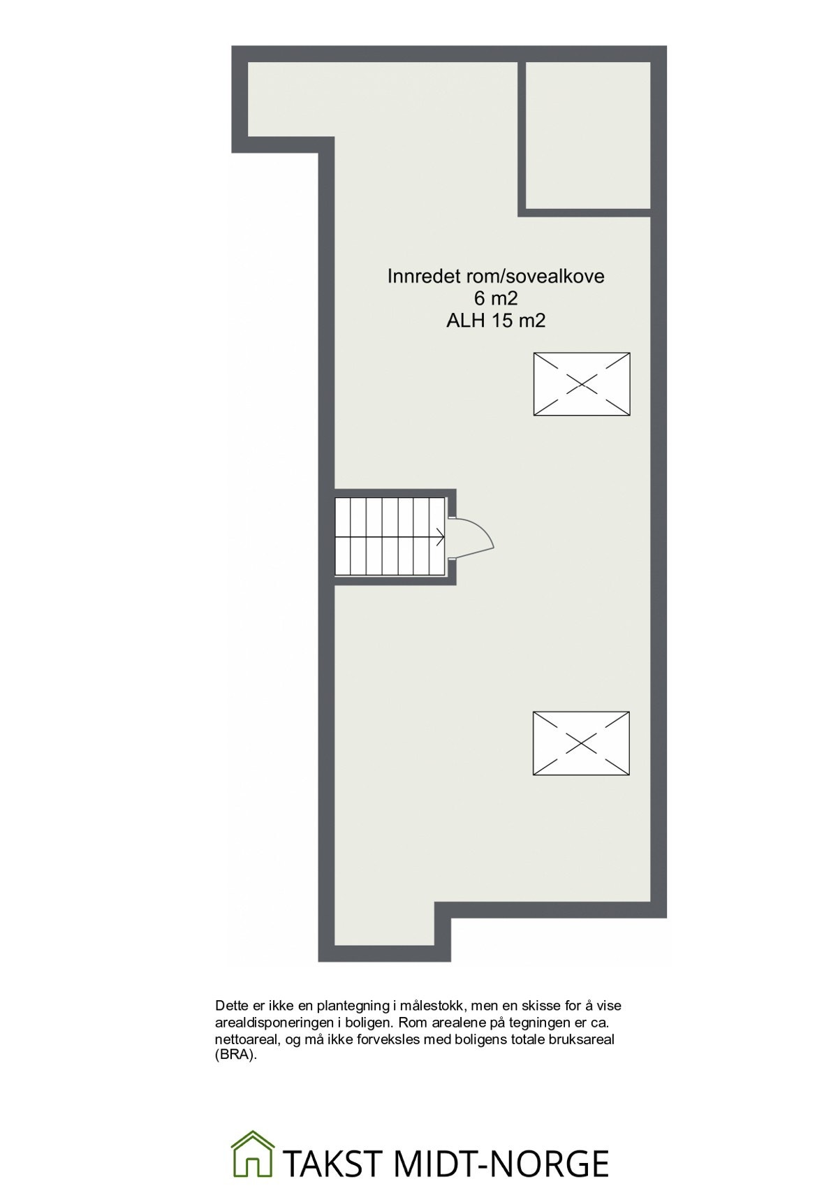
- To soverom pluss hems, tidligere utleid for kr. 7.000,- pr. rom.
- Hems med gulvvareal på 21 kvm, sovealkove og kontorplass, totalrenort i 2022.
- Herlig, luftig allrom som utgjør stue/kjøkken med høy himling.
- NTNU, Høyskoleparken, St. Olavs og Samfundet i umiddelbar nærhet.
- Flere dagligvarebutikker og bussholdeplass rett utenfor døra.
Salgsoppgaven beskriver vesentlig og lovpålagt informasjon om eiendommen
Se komplett salgsoppgaveNyttige lenker
Nærområdet

PrivatMegleren Trondheim
Prisstatistikk
Udbyes gate 7
på annonsen
prisantydning per kvadratmeter
Prisfordeling
Pris per m² ligger 10 329 kr under snittet for leiligheter i Trondheim Sentrum.
Grafen viser antall leiligheter solgt i Trondheim Sentrum siste året fordelt på pris per m² - totalt 853 leiligheter
Antall boliger
Kvadratmeterpris tilsvarer prisantydning pluss fellesgjeld per kvadratmeter (p-rom eller BRA-i). Prisene i grafen er avrundet til nærmeste 1000 kr.
Annonseinformasjon
| FINN-kode | 405205760 |
|---|---|
| Sist endret | 19. sep. 2025 15:04 |
| Referanse | 114240305 |
Annonsene kan være mangelfulle i forhold til lovpålagt opplysningsplikt. Før bindende avtale inngås oppfordres interessenter til å innhente komplett informasjon fra meglerforetaket, selger eller utleier.


































