Bildegalleri

Velkommen til Gustav Vigelands vei 42, en unik topp- og endeleilighet i Casinetto borettslag på Skøyen.
Solgt
SKØYEN/CASINETTO
Unik 6-roms topp- og endeleilighet, svært gode lys- og solforhold, fjordutsikt, balkong, p-plass, rolig og barnevennlig
Prisantydning11 500 000 kr
Nøkkelinfo
- Boligtype
- Leilighet
- Eieform
- Andel
- Soverom
- 5
- Internt bruksareal
- 120 m² (BRA-i)
- Bruksareal
- 126 m²
- Eksternt bruksareal
- 6 m² (BRA-e)
- Balkong/Terrasse
- 4 m² (TBA)
- Etasje
- 4
- Byggeår
- 1983
- Energimerking
- F - Lysegrønn
- Rom
- 6
- Tomteareal
- 33 072 m² (eiet)
Fasiliteter
Barnevennlig
Balkong/Terrasse
Garasje/P-plass
Parkett
Turterreng
Utsikt
Vaktmester-/vektertjeneste
Fellesvaskeri
Sentralt
Bredbåndstilknytning
Rolig
Om boligen
Velkommen til Gustav Vigelands vei 42, en unik topp- og endeleilighet over tre plan i Casinetto borettslag på Skøyen.
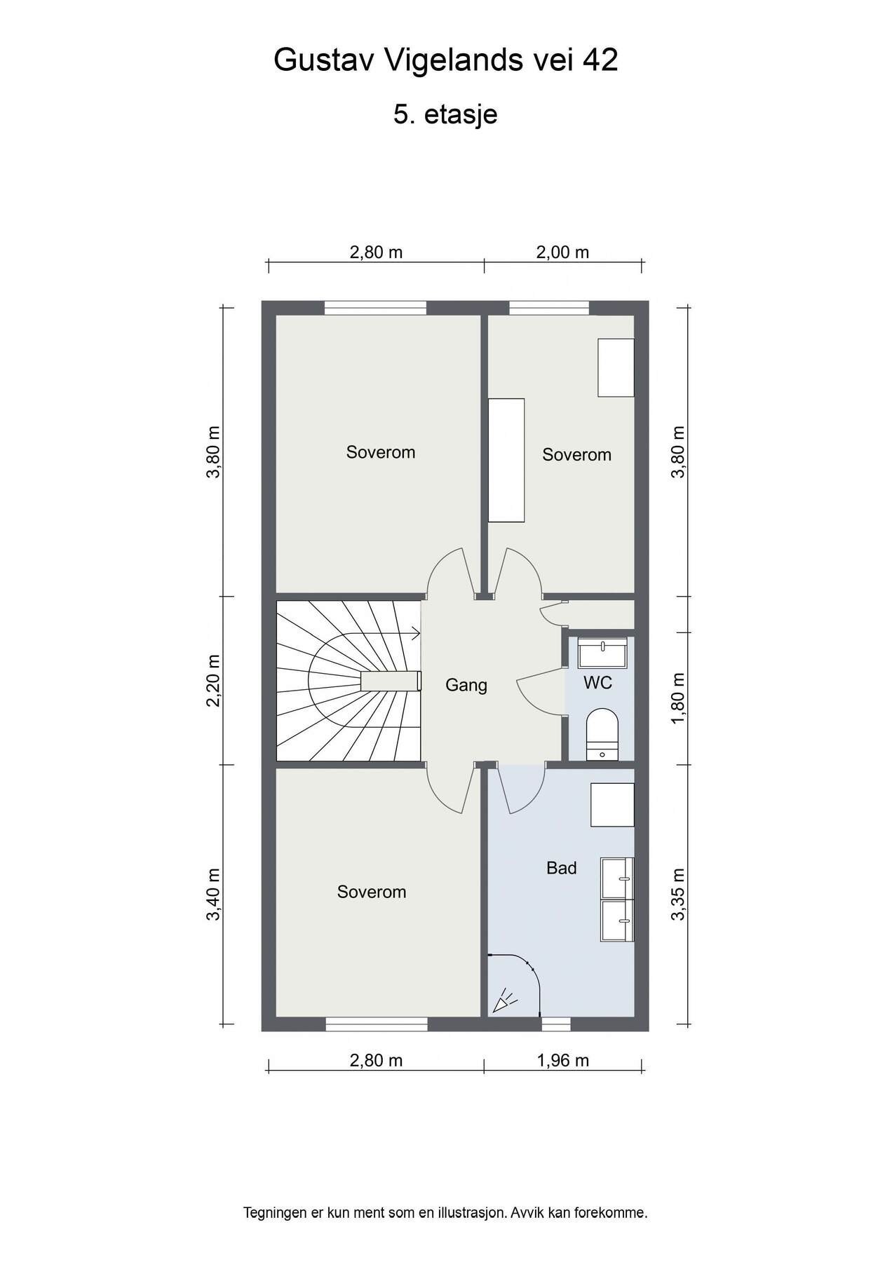
Leiligheten ligger høyt og usjenert til, og inneholder blant annet 5 soverom, 2 bad, kjøkken, stue med karnapp og utgang til balkong.
Med beliggenhet på enden og vinduer på 3 sider, kommer det godt med naturlig lys inn i leiligheten. Det er i tillegg svært flott utsikt både til fjorden og Den Engelske Park.
Egen inngang fra hyggelig svalgang med mulighet for å nyte frokosten ute. Leiligheten har en god intern beliggenhet på øvre tun i borettslaget.
Parkeringsplass og godt med bodplass medfølger.
Casinetto er svært rolig og barnevennlig med bilfrie leketun, og intern barnehage med fortrinnsrett for beboerne.
Bilfritt til Skøyen skole og Frognerparken, som er rett ved.
Leiligheten ligger høyt og usjenert til, og inneholder blant annet 5 soverom, 2 bad, kjøkken, stue med karnapp og utgang til balkong.
Med beliggenhet på enden og vinduer på 3 sider, kommer det godt med naturlig lys inn i leiligheten. Det er i tillegg svært flott utsikt både til fjorden og Den Engelske Park.
Egen inngang fra hyggelig svalgang med mulighet for å nyte frokosten ute. Leiligheten har en god intern beliggenhet på øvre tun i borettslaget.
Parkeringsplass og godt med bodplass medfølger.
Casinetto er svært rolig og barnevennlig med bilfrie leketun, og intern barnehage med fortrinnsrett for beboerne.
Bilfritt til Skøyen skole og Frognerparken, som er rett ved.
NB: Knappen for å vise hele beskrivelsen har kun en visuell effekt.
NB: Knappen for å vise hele beskrivelsen har kun en visuell effekt.
Salgsoppgaven beskriver vesentlig og lovpålagt informasjon om eiendommen
Se komplett salgsoppgaveNyttige lenker
Nærområdet
EIE eiendomsmegling Vinderen
Annonsene kan være mangelfulle i forhold til lovpålagt opplysningsplikt. Før bindende avtale inngås oppfordres interessenter til å innhente komplett informasjon fra meglerforetaket, selger eller utleier.


















































