Bildegalleri

Velkommen til Kvikneveien 4551 og 4553!
Fradelt gårdsbruk med over 9 måls tomt - Bolig, eldre våningshus, sommerstue, fjøs og stabbur.
Prisantydning1 500 000 kr
Nøkkelinfo
- Boligtype
- Enebolig
- Eieform
- Eier (Selveier)
- Soverom
- 3
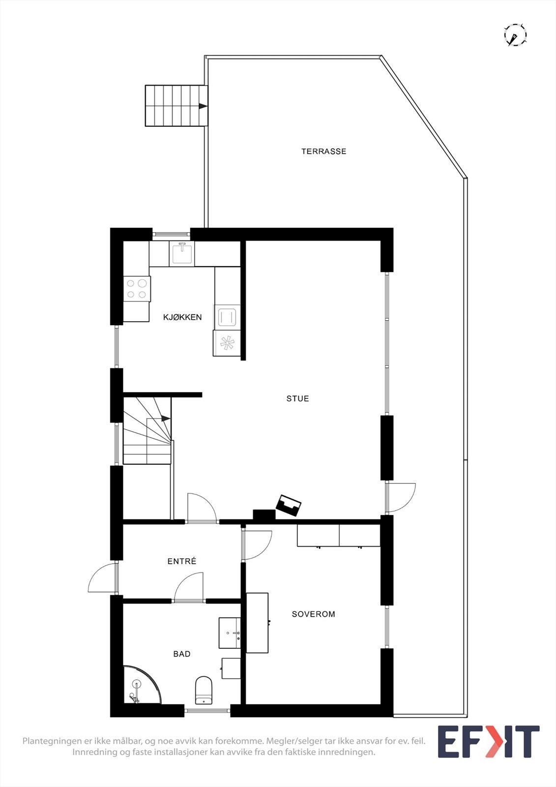
- Internt bruksareal
- 251 m² (BRA-i)
- Bruksareal
- 654 m²
- Eksternt bruksareal
- 403 m² (BRA-e)
- Balkong/Terrasse
- 63 m² (TBA)
- Byggeår
- 1989
- Energimerking
- D - Oransje
- Tomteareal
- 9 388 m² (eiet)
Visning
Ønsker du å delta på visningen ber vi deg melde deg på slik at vi vet at du kommer. Da kan vi bistå alle best mulig og gi deg tiden du trenger på visningen. Visningen avholdes bare dersom det er påmeldte. Ta gjerne kontakt med megler før visning hvis du har noen spørsmål. Velkommen!
VisningspåmeldingOm boligen
Velkommen til Kvikneveien 4551 og 4553!
Fradelt gårdsbruk som tidligere har vært en del av en landbrukseiendom. Eiendommen er på drøye 9 mål og består av bolighus fra 1989, et eldre våningshus fra 1920-tallet, sommerstue, stabbur og fjøs. Bolighuset fremstår som godt vedlikeholdt og har blant annet nytt bad fra 2013 og 2020. Kjøkkenet er byttet i 2015. Inngang både i sokkel og overetasjen. Det gamle våningshuset er tilkoblet strøm, vann og avløp. Kreves renovering om boligen skal tas i bruk til helårbruk.
Sommerstue av enkel standard. Fjøset har vært benyttet til sauehold for inntil noen år siden. Brukes i dag som garasje og lager. Fra eiendommen er det 2 km til dagligvarebutikk på Yset. Der finner man også bensinstasjon, hotell med restaurant, lysløype m.m.
Velkommen til visning!
Fradelt gårdsbruk som tidligere har vært en del av en landbrukseiendom. Eiendommen er på drøye 9 mål og består av bolighus fra 1989, et eldre våningshus fra 1920-tallet, sommerstue, stabbur og fjøs. Bolighuset fremstår som godt vedlikeholdt og har blant annet nytt bad fra 2013 og 2020. Kjøkkenet er byttet i 2015. Inngang både i sokkel og overetasjen. Det gamle våningshuset er tilkoblet strøm, vann og avløp. Kreves renovering om boligen skal tas i bruk til helårbruk.
Sommerstue av enkel standard. Fjøset har vært benyttet til sauehold for inntil noen år siden. Brukes i dag som garasje og lager. Fra eiendommen er det 2 km til dagligvarebutikk på Yset. Der finner man også bensinstasjon, hotell med restaurant, lysløype m.m.
Velkommen til visning!
NB: Knappen for å vise hele beskrivelsen har kun en visuell effekt.
NB: Knappen for å vise hele beskrivelsen har kun en visuell effekt.
Salgsoppgaven beskriver vesentlig og lovpålagt informasjon om eiendommen
Se komplett salgsoppgaveNyttige lenker
Nærområdet
EiendomsMegler 1 Tynset
Vi loser deg trygt gjennom hele boligsalget
Annonseinformasjon
| FINN-kode | 404594556 |
|---|---|
| Sist endret | 11. nov. 2025 13:27 |
| Referanse | 10250025 |
Annonsene kan være mangelfulle i forhold til lovpålagt opplysningsplikt. Før bindende avtale inngås oppfordres interessenter til å innhente komplett informasjon fra meglerforetaket, selger eller utleier.
















































