Bildegalleri

Velkommen til Børsteveien 17 - en meget lekker og påkostet 4-roms fra 2022 med høy standard, garasjeplass og balkong!
Solgt
Løren
Rålekker 4roms med balkong og parkering | Nybygg fra 2022 | Høy standard | 6.etg med heis | Gode solforhold
Prisantydning9 190 000 kr
Nøkkelinfo
- Boligtype
- Leilighet
- Eieform
- Andel
- Soverom
- 3
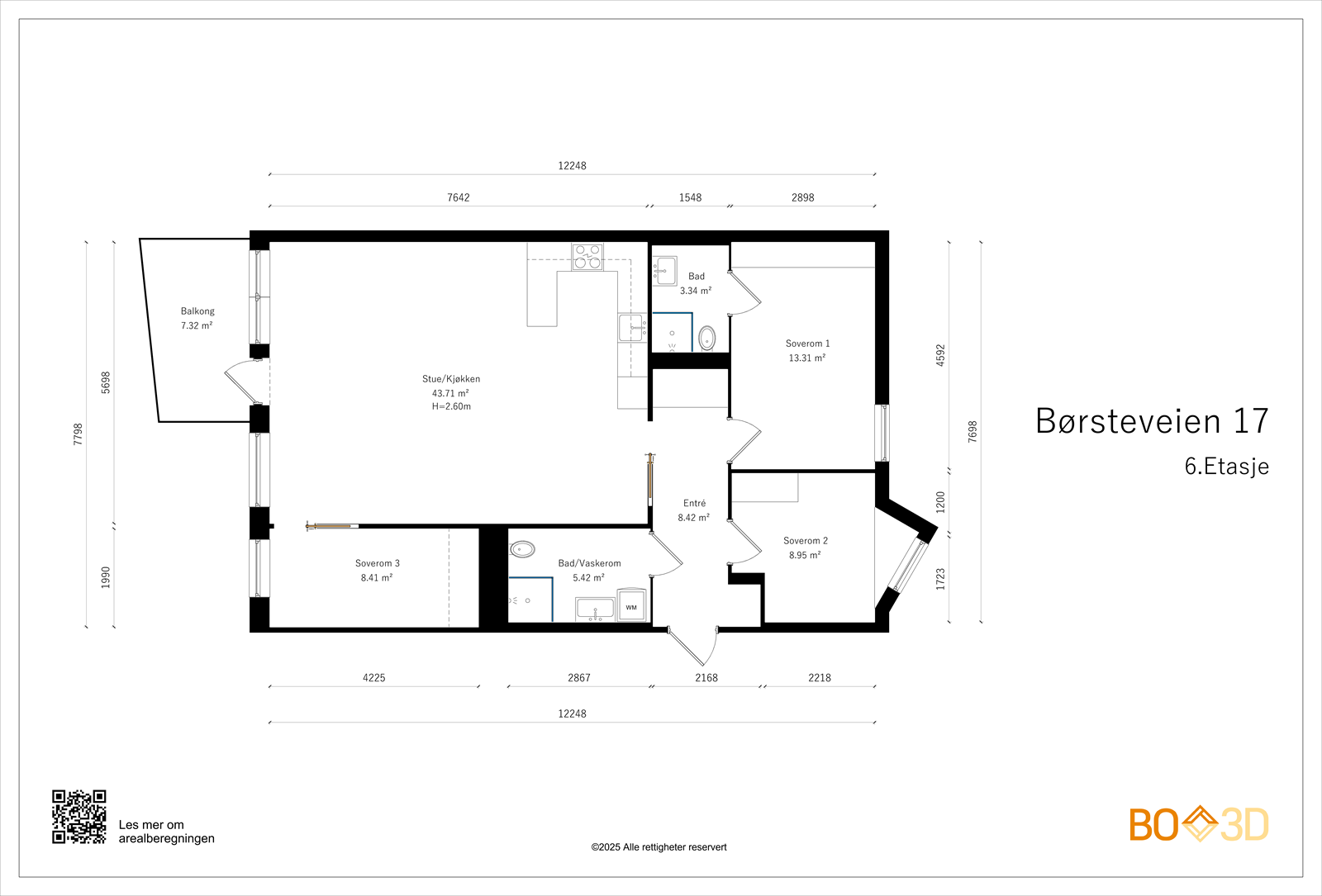
- Internt bruksareal
- 96 m² (BRA-i)
- Bruksareal
- 102 m²
- Eksternt bruksareal
- 6 m² (BRA-e)
- Balkong/Terrasse
- 7 m² (TBA)
- Etasje
- 6
- Byggeår
- 2022
- Energimerking
- B - Mørkegrønn
- Rom
- 4
- Tomteareal
- 1 212 m² (eiet)
Fasiliteter
Takterrasse
Balkong/Terrasse
Barnevennlig
Bredbåndstilknytning
Garasje/P-plass
Heis
Kjæledyr tillatt
Kabel-TV
Offentlig vann/kloakk
Parkett
Rolig
Sentralt
Utsikt
Vaktmester-/vektertjeneste
Lademulighet
Om boligen
Velkommen til Børsteveien 17 - en lekker og gjennomgående 4-roms med balkong, garasjeplass og heis! Boligen ligger høyt og fritt i byggets 6.etg og fremstår lys, velholdt og moderne. Leiligheten består av en innbydende entré med romslig gang, bad/vaskerom, samt tre soverom, hvorav ett har tilgang til eget bad. Det er en åpen og romslig kjøkken-/stueløsning med utgang til stor balkong med gode solforhold. Parkeringsplass med heisadkomst i felles parkeringsanlegg. Sameiet har flere fellesområder, blant annet en felles takterrasse, verkstedbod og andre fasiliteter.
* Moderne 4roms med høy standard
* Stor og solrik balkong
* Parkeringsplass med ELbil-lader
* Heis
* 3 gode soverom
* Velholdt og lite slitasje
* Nybygg fra 2022
* Barnehage i et av nabobyggene
* Sentral beliggenhet
* Moderne 4roms med høy standard
* Stor og solrik balkong
* Parkeringsplass med ELbil-lader
* Heis
* 3 gode soverom
* Velholdt og lite slitasje
* Nybygg fra 2022
* Barnehage i et av nabobyggene
* Sentral beliggenhet
NB: Knappen for å vise hele beskrivelsen har kun en visuell effekt.
NB: Knappen for å vise hele beskrivelsen har kun en visuell effekt.
Salgsoppgaven beskriver vesentlig og lovpålagt informasjon om eiendommen
Se komplett salgsoppgaveNyttige lenker
Nærområdet
Nordvik Bærum
Annonseinformasjon
| FINN-kode | 404496590 |
|---|---|
| Sist endret | 17. mai 2025 11:44 |
| Referanse | 56-0092/25 |
Annonsene kan være mangelfulle i forhold til lovpålagt opplysningsplikt. Før bindende avtale inngås oppfordres interessenter til å innhente komplett informasjon fra meglerforetaket, selger eller utleier.
























































