Bildegalleri

Stor og meget attraktiv 2-roms med nordvestvendt terrasse og garasje med lader
Solgt
Skøyen Terrasse
Stor og attraktiv 2r m/vestvendt terrasse og garasje - Idylliske omgivelser - Ingen dok. avgift - Fyring og vv. inkl.
Prisantydning5 800 000 kr
Nøkkelinfo
- Boligtype
- Leilighet
- Eieform
- Andel
- Soverom
- 1
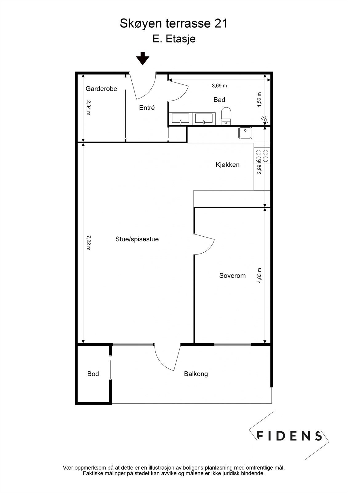
- Internt bruksareal
- 68 m² (BRA-i)
- Bruksareal
- 71 m²
- Eksternt bruksareal
- 3 m² (BRA-e)
- Balkong/Terrasse
- 12 m² (TBA)
- Etasje
- 2
- Byggeår
- 1982
- Energimerking
- D - Lysegrønn
- Rom
- 2
- Tomteareal
- 31 335 m² (eiet)
Fasiliteter
Balkong/Terrasse
Barnevennlig
Bredbåndstilknytning
Garasje/P-plass
Kjæledyr tillatt
Kabel-TV
Rolig
Sentralt
Utsikt
Vaktmester-/vektertjeneste
Turterreng
Lademulighet
Om boligen
Stor og meget attraktiv 2r m/etterspurt beliggenhet i veldrevet Skøyen Terrasse. Skjermet og idyllisk i grønne omgivelser m/stor solrik terrasse, langstrakt utsikt og garasjeplass m/lader.
Luftig og åpen planløsning m/god atmosfære, kjøkken m/øy og romslig stue m/utgang til terrasse. Stort soverom m/dobbeltseng og plassbygd ekstra seng og skuffer, samt stor garderobe. Delikat bad m/gulvvarme og opplegg for vaskemaskin. Praktisk entre m/ skyvedørsgarderobe.
Her bor du i et sentralt, rolig og svært populært boligområde, m/kort vei til et rikt servicetilbud, hyggelige kaféer, restauranter og offentlig kommunikasjon.
Høydepunkter:
Garasje m/lader, gratis gjesteparkering
Nymalt, ny terrassedør og nye LED spotter i 2023
Nyoppusset bad og kjøkken 2010/2011
Ingen dok.avg
Fyring og v.vann inkl.
Luftig og åpen planløsning m/god atmosfære, kjøkken m/øy og romslig stue m/utgang til terrasse. Stort soverom m/dobbeltseng og plassbygd ekstra seng og skuffer, samt stor garderobe. Delikat bad m/gulvvarme og opplegg for vaskemaskin. Praktisk entre m/ skyvedørsgarderobe.
Her bor du i et sentralt, rolig og svært populært boligområde, m/kort vei til et rikt servicetilbud, hyggelige kaféer, restauranter og offentlig kommunikasjon.
Høydepunkter:
Garasje m/lader, gratis gjesteparkering
Nymalt, ny terrassedør og nye LED spotter i 2023
Nyoppusset bad og kjøkken 2010/2011
Ingen dok.avg
Fyring og v.vann inkl.
NB: Knappen for å vise hele beskrivelsen har kun en visuell effekt.
NB: Knappen for å vise hele beskrivelsen har kun en visuell effekt.
Salgsoppgaven beskriver vesentlig og lovpålagt informasjon om eiendommen
Se komplett salgsoppgaveNyttige lenker
Nærområdet
Nordvik Majorstuen
Annonseinformasjon
| FINN-kode | 404470796 |
|---|---|
| Sist endret | 02. mai 2025 20:14 |
| Referanse | 8-0103/25 |
Annonsene kan være mangelfulle i forhold til lovpålagt opplysningsplikt. Før bindende avtale inngås oppfordres interessenter til å innhente komplett informasjon fra meglerforetaket, selger eller utleier.








































