Bildegalleri

Velkommen til Antenneveien 3 - Presenteres av Charlotte Marie Bårdsen ved EIE Eiendomsmegling.
Solgt
Lambertseter | Pen 3-roms med solrik, innglasset balkong. Nytt bad fra 2023. Lave omkostninger. Mulighet for p-plass.
Prisantydning4 650 000 kr
Nøkkelinfo
- Boligtype
- Leilighet
- Eieform
- Andel
- Soverom
- 2
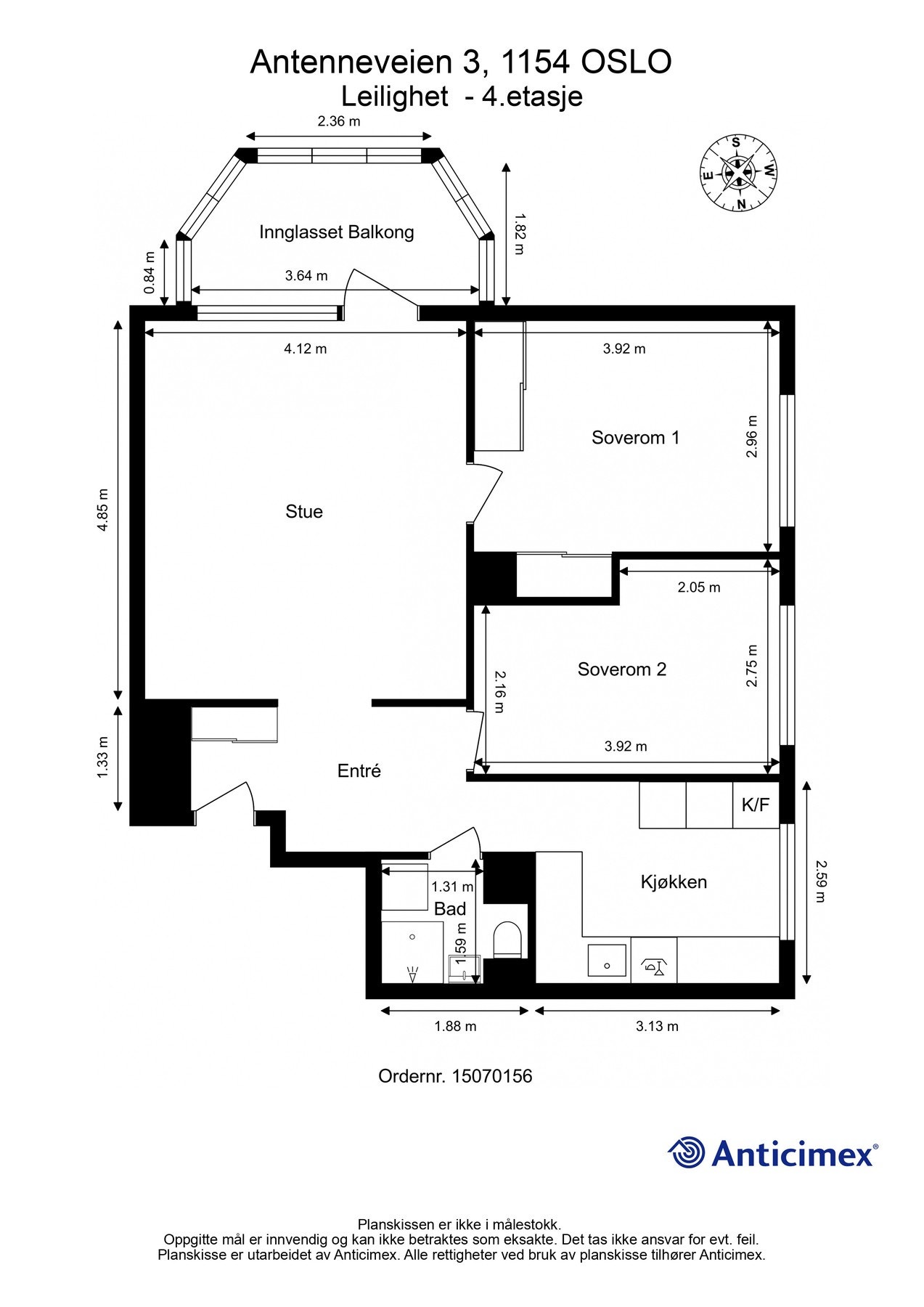
- Internt bruksareal
- 64 m² (BRA-i)
- Bruksareal
- 82 m²
- Eksternt bruksareal
- 11 m² (BRA-e)
- Innglasset balkong
- 7 m² (BRA-b)
- Etasje
- 4
- Byggeår
- 1952
- Energimerking
- G - Rød
- Rom
- 3
- Tomteareal
- 76 560 m² (eiet)
Fasiliteter
Barnevennlig
Balkong/Terrasse
Kabel-TV
Offentlig vann/kloakk
Parkett
Turterreng
Utsikt
Vaktmester-/vektertjeneste
Fellesvaskeri
Sentralt
Bredbåndstilknytning
Moderne
Rolig
Om boligen
Velkommen til Antenneveien 3 - En lys og pen 3-roms andelsleilighet med ypperlig internbeliggenhet i byggets 4. etasje. Her bor du i et rolig og usjenert boligområde med store, samtidig som det er kort veg til alt man måtte trenge. Leiligheten har en godt utnyttet planløsning og store, luftige rom.
Høydepunkter:
- Lys og innbydende 3-roms
- Høyt og fritt beliggende i 4. etasje
- God planløsning med store, luftige rom
- Sydvendt, solrik balkong på 7 kvm
- Nytt bad fra 2023 i regi av brl
- Mulighet for peis
- 3 disponible boder med totalt gulvareal på 18 kvm
- P-plasser/garasjer til utleie etter venteliste
- Kort veg til t-bane, buss og dagligvare
Eiendommen ligger i et sentralt boligområde på Lambertseter som preges av store, åpne grøntarealer, brede gater og enkel tilgang til flotte rekreasjonsområder. Her er det lysløype, turveier og et flott idrettsanlegg. Kort veg skoler i alle trinn, flere barnehager, samt nærsenter med et variert utvalg av butikker, SATS og flere spisesteder.
Høydepunkter:
- Lys og innbydende 3-roms
- Høyt og fritt beliggende i 4. etasje
- God planløsning med store, luftige rom
- Sydvendt, solrik balkong på 7 kvm
- Nytt bad fra 2023 i regi av brl
- Mulighet for peis
- 3 disponible boder med totalt gulvareal på 18 kvm
- P-plasser/garasjer til utleie etter venteliste
- Kort veg til t-bane, buss og dagligvare
Eiendommen ligger i et sentralt boligområde på Lambertseter som preges av store, åpne grøntarealer, brede gater og enkel tilgang til flotte rekreasjonsområder. Her er det lysløype, turveier og et flott idrettsanlegg. Kort veg skoler i alle trinn, flere barnehager, samt nærsenter med et variert utvalg av butikker, SATS og flere spisesteder.
NB: Knappen for å vise hele beskrivelsen har kun en visuell effekt.
NB: Knappen for å vise hele beskrivelsen har kun en visuell effekt.
Salgsoppgaven beskriver vesentlig og lovpålagt informasjon om eiendommen
Se komplett salgsoppgaveNyttige lenker
Nærområdet
Mekleriet Oslo
Annonsene kan være mangelfulle i forhold til lovpålagt opplysningsplikt. Før bindende avtale inngås oppfordres interessenter til å innhente komplett informasjon fra meglerforetaket, selger eller utleier.


































