Bildegalleri

EIE eiendomsmegling ved Mateusz Zubrzynski har gleden av å presentere Lauritz Hervigs vei 164A!
Inaktiv
Lys 2-roms med moderne løsninger | Vestvendt balkong | Heis | Kort vei til sentrum
Prisantydning2 000 000 kr
Nøkkelinfo
- Boligtype
- Leilighet
- Eieform
- Andel
- Soverom
- 1
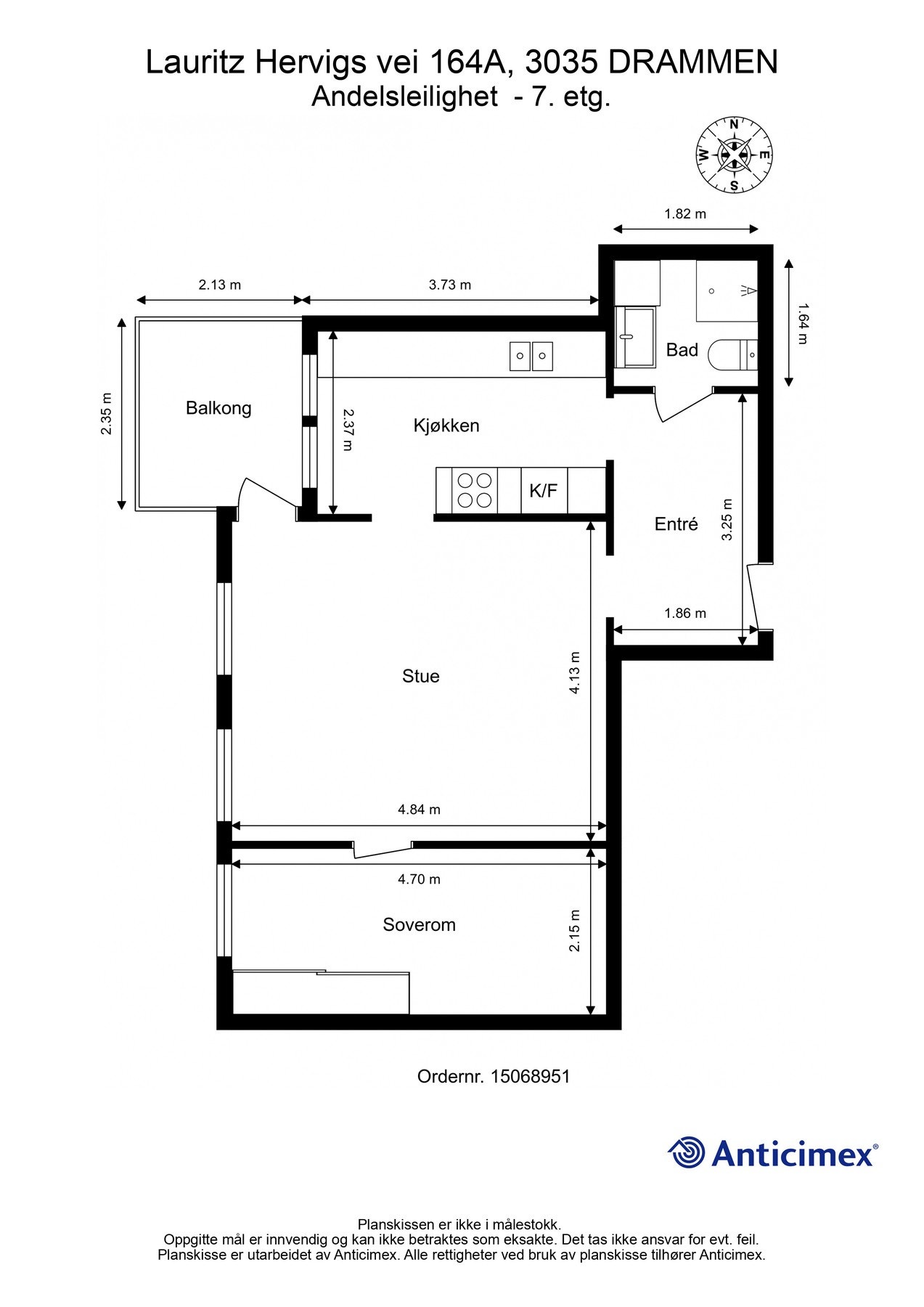
- Internt bruksareal
- 51 m² (BRA-i)
- Bruksareal
- 52 m²
- Eksternt bruksareal
- 1 m² (BRA-e)
- Byggeår
- 1973
- Energimerking
- G - Mørkegrønn
- Tomteareal
- 131 530 m² (eiet)
Fasiliteter
Balkong/Terrasse
Garasje/P-plass
Kabel-TV
Heis
Turterreng
Utsikt
Vaktmester-/vektertjeneste
Sentralt
Moderne
Om boligen
EIE eiendomsmegling ved Mateusz Zubrzynski har gleden av å presentere Lauritz Hervigs vei 164A - en lys og arealeffektiv 2-roms med vestvendt balkong og adkomst via heis. Leiligheten har sentral beliggenhet på Fjell, med gangavstand til dagligvare, kollektivtransport og flere servicetilbud. I området finner du også skoler, barnehager og tilbud som forenkler hverdagen. Planløsningen er praktisk og gir god romutnyttelse, med naturlig flyt mellom oppholdsrommene. Leiligheten fremstår som godt vedlikeholdt og har flere moderne løsninger. Passer perfekt for førstegangskjøpere, studenter eller par som vil bo sentralt, men samtidig ha nærhet til natur og aktivitetstilbud.
Kort fortalt:
- Kjøkken fra 2024
- Stilig baderom (oppgradert i2016)
- Heis
- Kjellerbod
- Nær kollektivtransport og butikker
Velkommen til visning!
Kort fortalt:
- Kjøkken fra 2024
- Stilig baderom (oppgradert i2016)
- Heis
- Kjellerbod
- Nær kollektivtransport og butikker
Velkommen til visning!
NB: Knappen for å vise hele beskrivelsen har kun en visuell effekt.
NB: Knappen for å vise hele beskrivelsen har kun en visuell effekt.
Salgsoppgaven beskriver vesentlig og lovpålagt informasjon om eiendommen
Se komplett salgsoppgaveNyttige lenker
Nærområdet
EIE eiendomsmegling Follo
Annonseinformasjon
| FINN-kode | 403282752 |
|---|---|
| Sist endret | 31. aug. 2025 20:24 |
| Referanse | 84250023 |
Annonsene kan være mangelfulle i forhold til lovpålagt opplysningsplikt. Før bindende avtale inngås oppfordres interessenter til å innhente komplett informasjon fra meglerforetaket, selger eller utleier.

































