Bildegalleri

Foto: Eivind Lauritzen
Rød / Asmaløy
Familiebolig med sokkelleilighet i naturnært og barnevennlig nabolag. Solrike uteplasser. Gangavst til barnehage/skole.
Prisantydning6 400 000 kr
Nøkkelinfo
- Boligtype
- Enebolig
- Eieform
- Eier (Selveier)
- Soverom
- 5
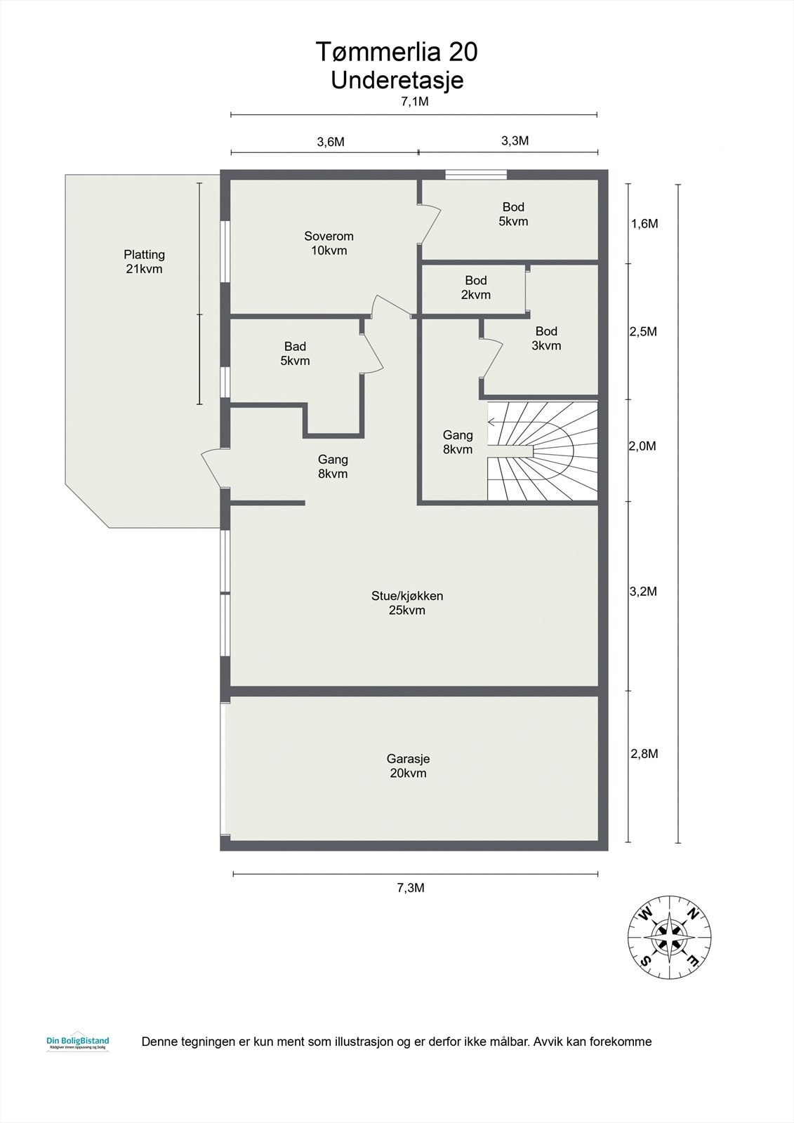
- Internt bruksareal
- 193 m² (BRA-i)
- Bruksareal
- 264 m²
- Eksternt bruksareal
- 71 m² (BRA-e)
- Balkong/Terrasse
- 169 m² (TBA)
- Etasje
- 3
- Byggeår
- 2007
- Rom
- 7
- Tomteareal
- 750 m² (eiet)
Fasiliteter
Balkong/Terrasse
Barnevennlig
Garasje/P-plass
Hage
Offentlig vann/kloakk
Parkett
Peis/Ildsted
Rolig
Turterreng
Lademulighet
Balansert ventilasjon
Visning
Påmeldingsfrist 48 timer før annonsert visning. Visningen gjennomføres kun ved påmeldte deltakere.
Meld deg på visning ved å trykke på lenken visningspåmelding.
VisningspåmeldingOm boligen
Velholdt og romslig enebolig med utleiedel i attraktivt og barnevennlig boligfelt. Her er det plass til både dine, mine og våre - perfekt for den moderne storfamilien. Hovedboligen er lys og innbydende, med moderne standard og god planløsning. Det er totalt 4 soverom i denne delen, samt kjøkken, stue, spisestue, loftstue, baderom og wc-rom. Store vindusflater gir flott kontakt med naturen, og eiendommen har uteplasser på tre sider - med sol fra morgen til kveld og usjenert terrasse mot øst. Leiligheten har egen inngang og passer perfekt for utleie eller for ungdommen som trenger mer plass. Over dobbelgarasjen er det et innredet lydstudio. Gangavstand til skole, barnehage, fotballbane, flotte turområder og idylliske badestrender gjør dette til et fantastisk sted for familier i alle faser.
NB: Knappen for å vise hele beskrivelsen har kun en visuell effekt.
NB: Knappen for å vise hele beskrivelsen har kun en visuell effekt.
Salgsoppgaven beskriver vesentlig og lovpålagt informasjon om eiendommen
Se komplett salgsoppgaveNyttige lenker
Nærområdet
Nordvik Fredrikstad og Hvaler
Vi vet hva det er verdt
Annonseinformasjon
| FINN-kode | 403249887 |
|---|---|
| Sist endret | 02. jan. 2026 15:52 |
| Referanse | 30-0098/25 |
Annonsene kan være mangelfulle i forhold til lovpålagt opplysningsplikt. Før bindende avtale inngås oppfordres interessenter til å innhente komplett informasjon fra meglerforetaket, selger eller utleier.







































































