Bildegalleri

Velkommen til Haugerudveien 82! - Presentert av Birgitte Græsholt, OBOS Eiendomsmeglere, avd. Tveita
Stor og luftig 3-roms leilighet | Flott beliggenhet | Fantastisk utsikt | Gode solforhold | Fyring og varmtvann inkl.
Nøkkelinfo
- Boligtype
- Leilighet
- Eieform
- Andel
- Internt bruksareal
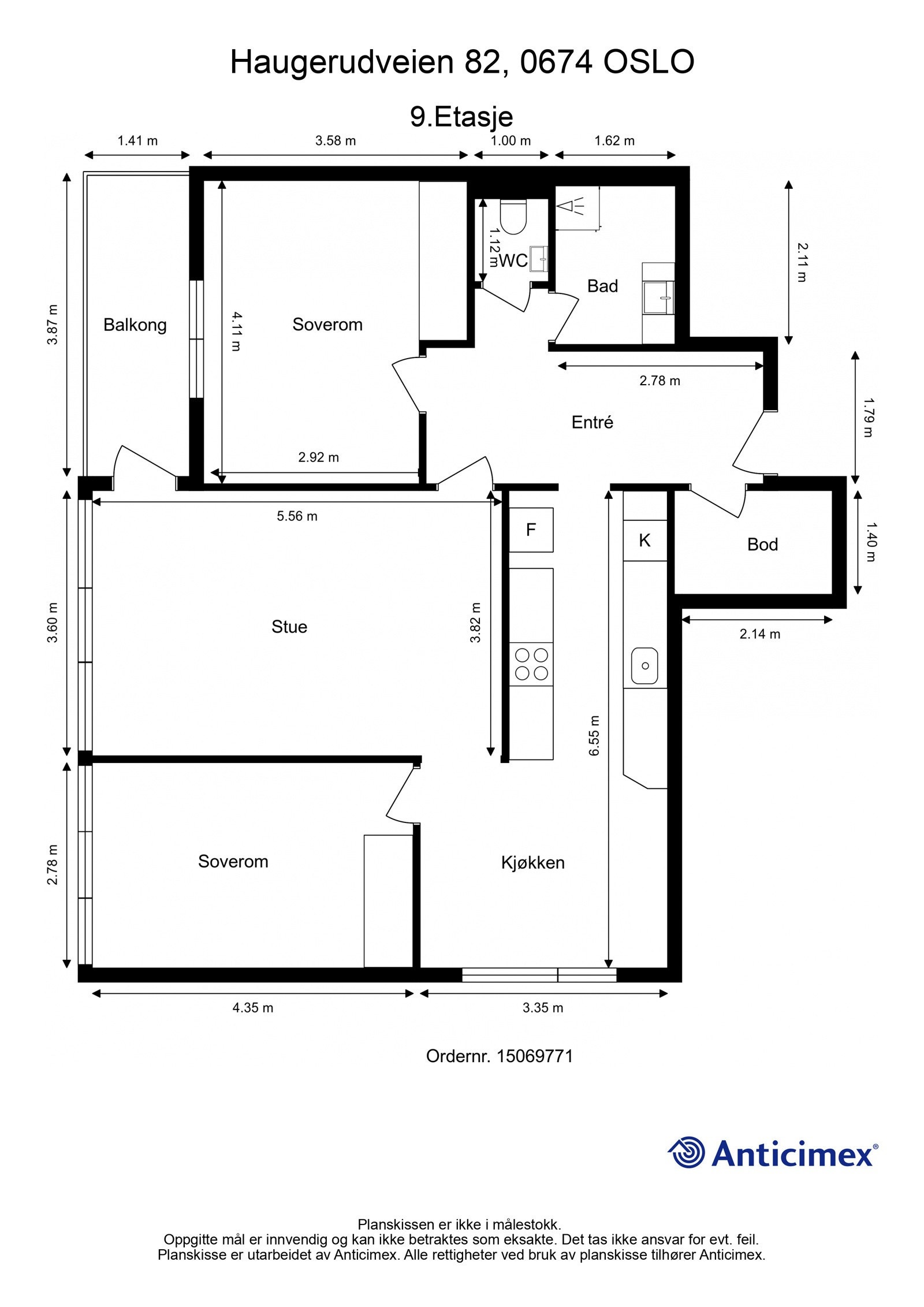
- 83 m² (BRA-i)
- Eksternt bruksareal
- 1 m² (BRA-e)
- Balkong/Terrasse
- 5 m² (TBA)
- Etasje
- 9
- Byggeår
- 1970
- Energimerking
- D - Lysegrønn
- Rom
- 3
- Tomt
- Eiet
- Bruttoareal
- 84 m²
Om boligen
Denne store og luftige leiligheten har en flott beliggenhet med utmerkede solforhold og fantastisk utsikt. Området er ideelt for deg som ønsker nærhet til naturen, da leiligheten ligger rett ved Østmarka. Det er også kort avstand til både buss og T-bane, samt lokale butikker, treningssenter og kjøpesenter.
Leiligheten består av: Entré, bod, bad, toalettrom, kjøkken, 2 soverom og stue med utg. til sydvendt balkong.
Kort om leiligheten:
- Romslig leilighet med god planløsning
- Fantastisk utsikt
- Fyring og varmtvann inkl.
- Kabel-TV/kollektiv bredbånd inkl.
- Trappefri adkomst
- Kjellerbod
- Mulighet for rask overtakelse
- Dyrehold tillatt
- Gode muligheter for leie av garasje/p-plass
- Rask avklaring av forkjøpsrett
Velkommen til visning!
Salgsoppgaven beskriver vesentlig og lovpålagt informasjon om eiendommen
Se komplett salgsoppgaveNyttige lenker
Nærområdet
OBOS eiendomsmeglere - Tveita
Annonseinformasjon
| FINN-kode | 403244351 |
|---|---|
| Sist endret | 27. apr. 2025 10:24 |
| Referanse | 705250044 |
Annonsene kan være mangelfulle i forhold til lovpålagt opplysningsplikt. Før bindende avtale inngås oppfordres interessenter til å innhente komplett informasjon fra meglerforetaket, selger eller utleier.





























