Bildegalleri

Velkommen til hyggelig visning i Grefsenveien 17!
Lys og romslig gjennomgående 3-roms selveier | V.v, Fyring og internett ink | Felles hage med gode solforhold
Nøkkelinfo
- Boligtype
- Leilighet
- Eieform
- Eier (Selveier)
- Soverom
- 2
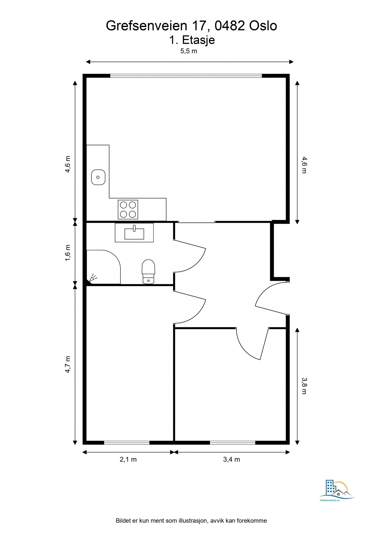
- Internt bruksareal
- 63 m² (BRA-i)
- Bruksareal
- 65 m²
- Eksternt bruksareal
- 2 m² (BRA-e)
- Etasje
- 1
- Byggeår
- 1953
- Energimerking
- G - Mørkegrønn
- Rom
- 3
- Tomteareal
- 437 m² (eiet)
- Boligselgerforsikring
- Ja
Fasiliteter
Om boligen
Velkommen til Grefsenveien 17. Boligen har en attraktiv og tilbaketrukket beliggenhet i et veletablert boligområde på Sandaker/Storo, midt mellom Oslo sentrum og marka. Her får du en flott gjennomgående planløsning, med store luftige rom og rikelig med naturlig lysinnslipp.
Leiligheten er meget sentral med et bredt kollektivtilbud, butikker og kaféer i umiddelbar nærhet. Området er kjent for sine store flotte og frodige parker som kan nytes - Her kan du flytte rett inn og trives fra første stund!
- Gjennomgående
- Integrerte hvitevarer
- Parkettgulv
- Takhøyde på 2,60 meter
- Varmtvann, fyring og internett ink
- Lave strømutgifter
- Sykkelparkering i bakgård
- Solrik hage i sameiet
- Flotte turområder
- Bredt kollektivtilbud
- Meget sentralt
Ta kontakt med megler på tlf. 92225144 for privatvisning.
Salgsoppgaven beskriver vesentlig og lovpålagt informasjon om eiendommen
Se komplett salgsoppgaveNyttige lenker
Nærområdet

PrivatMegleren Soria Moria
Annonseinformasjon
| FINN-kode | 403200938 |
|---|---|
| Sist endret | 24. juni 2025 12:21 |
| Referanse | 154240084 |
Annonsene kan være mangelfulle i forhold til lovpålagt opplysningsplikt. Før bindende avtale inngås oppfordres interessenter til å innhente komplett informasjon fra meglerforetaket, selger eller utleier.


























