Bildegalleri

Velkommen til Semsveien 116!
Bergan
Innholdsrik enebolig over 2 etasjer + kjeller. Dobbel garasje, og stor gårdsplass i solrikt og barnevennlig område!
Prisantydning5 490 000 kr
Nøkkelinfo
- Boligtype
- Enebolig
- Eieform
- Eier (Selveier)
- Soverom
- 3
- Internt bruksareal
- 185 m² (BRA-i)
- Bruksareal
- 268 m²
- Eksternt bruksareal
- 83 m² (BRA-e)
- Balkong/Terrasse
- 56 m² (TBA)
- Etasje
- 2
- Byggeår
- 1923
- Energimerking
- G - Gul
- Tomteareal
- 1 047 m² (eiet)
Fasiliteter
Aircondition
Balkong/Terrasse
Barnevennlig
Bredbåndstilknytning
Garasje/P-plass
Hage
Kjæledyr tillatt
Kabel-TV
Offentlig vann/kloakk
Parkett
Peis/Ildsted
Rolig
Sentralt
Utsikt
Fiskemulighet
Turterreng
Om boligen
Velkommen til Semsveien 116!
Dette er en romslig og velholdt familiebolig i et barnevennlig og solrikt område. Eiendommen har blant annet 3 soverom og ligger landlig og fint til i et rolig område med utsyn til omkringliggende bebyggelse, landskap og jorder. Det er ca. 7 km til Tønsberg sentrum.
Verdt å merke seg:
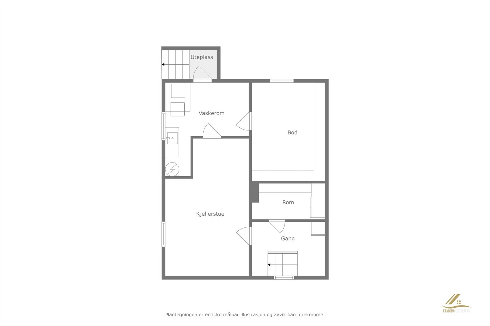
- Enebolig over 2 etasjer + innredet kjeller.
- Nytt kjøkken fra KVIK, 2021.
- Dobbeltgarasje (45 m²), med loft (38 m²).
- Det er store terrasser og plattinger på samlet ca. 55 m².
- Stor asfaltert gårdsplass.
- Gode solforhold hele dagen.
- Takhøyde i 1. etasje er på 281 cm.
- Takhøyden i 2. etasje er 260 cm på høyeste plass.
Velkommen til visning. Husk påmelding!
Dette er en romslig og velholdt familiebolig i et barnevennlig og solrikt område. Eiendommen har blant annet 3 soverom og ligger landlig og fint til i et rolig område med utsyn til omkringliggende bebyggelse, landskap og jorder. Det er ca. 7 km til Tønsberg sentrum.
Verdt å merke seg:
- Enebolig over 2 etasjer + innredet kjeller.
- Nytt kjøkken fra KVIK, 2021.
- Dobbeltgarasje (45 m²), med loft (38 m²).
- Det er store terrasser og plattinger på samlet ca. 55 m².
- Stor asfaltert gårdsplass.
- Gode solforhold hele dagen.
- Takhøyde i 1. etasje er på 281 cm.
- Takhøyden i 2. etasje er 260 cm på høyeste plass.
Velkommen til visning. Husk påmelding!
NB: Knappen for å vise hele beskrivelsen har kun en visuell effekt.
NB: Knappen for å vise hele beskrivelsen har kun en visuell effekt.
Salgsoppgaven beskriver vesentlig og lovpålagt informasjon om eiendommen
Se komplett salgsoppgaveNyttige lenker
Nærområdet
EiendomsMegler 1 Tønsberg
En del av Sparebank 1 Sør-Norge
Annonseinformasjon
| FINN-kode | 403183648 |
|---|---|
| Sist endret | 24. jan. 2026 10:15 |
| Referanse | 2871250112 |
Annonsene kan være mangelfulle i forhold til lovpålagt opplysningsplikt. Før bindende avtale inngås oppfordres interessenter til å innhente komplett informasjon fra meglerforetaket, selger eller utleier.



































































