Bildegalleri

Velkommen til Smålensgata 16 - Presentert av Jeanette Stenersen i EiendomsMegler 1.
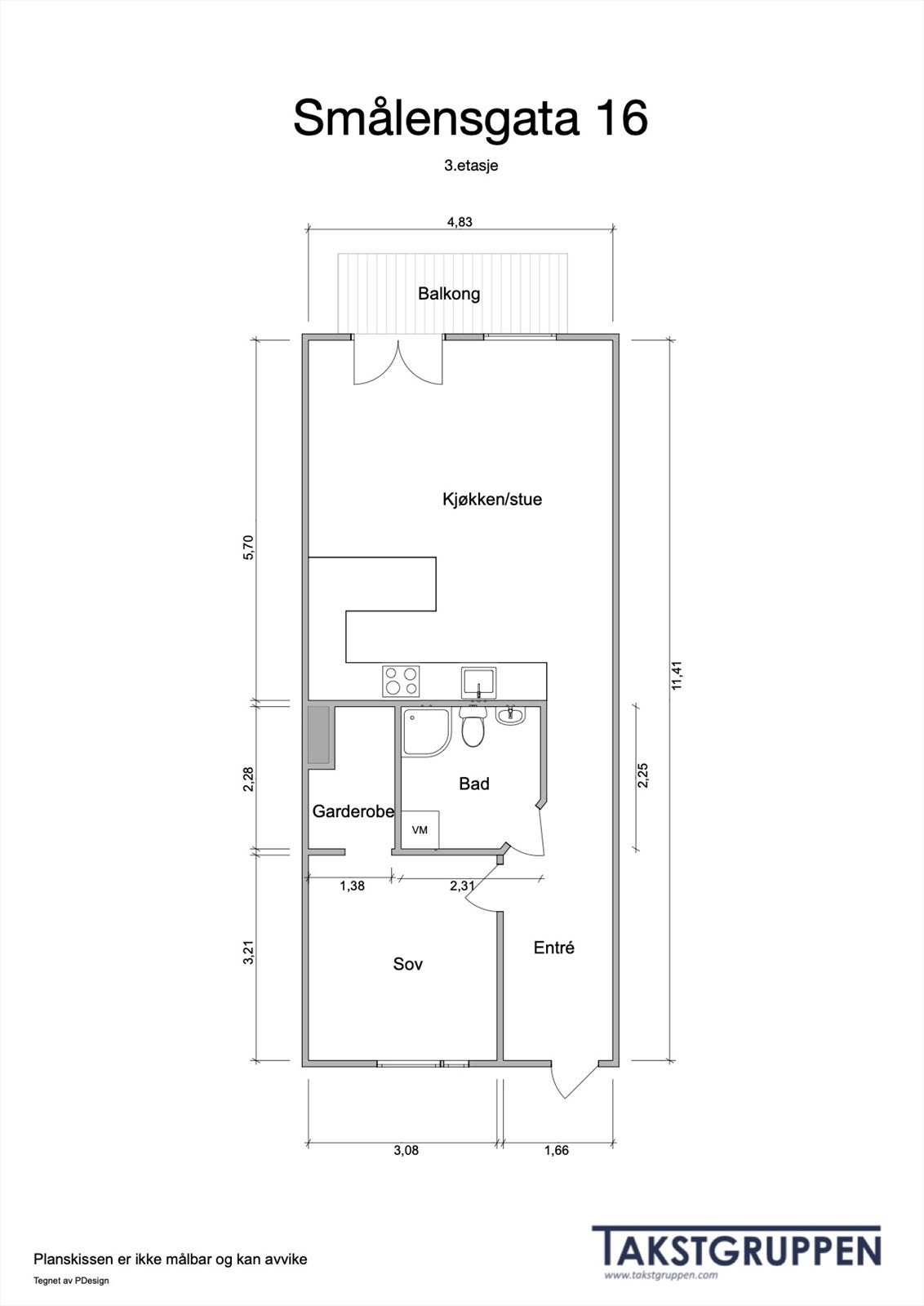
Stor og tiltalende 2-roms med en herlig, sydvestvendt balkong på 5 m² | Sjarmerende bakgård | Mulighet for garasjeleie
Nøkkelinfo
- Boligtype
- Leilighet
- Eieform
- Andel
- Soverom
- 1
- Internt bruksareal
- 55 m² (BRA-i)
- Bruksareal
- 60 m²
- Eksternt bruksareal
- 5 m² (BRA-e)
- Balkong/Terrasse
- 5 m² (TBA)
- Etasje
- 3
- Byggeår
- 1994
- Energimerking
- D - Rød
- Rom
- 2
- Tomteareal
- 1 473 m² (eiet)
Fasiliteter
Om boligen
I boligen er det lagt vekt på funksjonelle løsninger i boligen ved å bl.a. etablere en både stilig og praktisk halvøy på kjøkkenet med tilhørende sittebenk for å optimalisere arealet. Sommerdager kan nytes på egen balkong, i den koselige bakgården eller en av områdets parker.
Her bor du sentrumsnært, men likevel tilbaketrukket i grønne omgivelser rett ved idylliske Vålerenga park.
Høydepunkter:
- Gjennomgående planløsning med gode rom
- Sydvestvendt balkong fra 2016
- Nye vinduer og balkongdører fra 2024
- Kjellerbod på 5 m²
- Meget veldrevet og hyggelig borettslag
- Herlig bakgård med pergola og sittegrupper
- Garasjeleie etter venteliste (ingen venteliste p.t)
Salgsoppgaven beskriver vesentlig og lovpålagt informasjon om eiendommen
Se komplett salgsoppgaveNyttige lenker
Nærområdet
EiendomsMegler 1 Gamle Oslo
Prisstatistikk
Smålensgata 16
på annonsen
prisantydning per kvadratmeter
Prisfordeling
Pris per m² ligger 20 798 kr under snittet for leiligheter i Gamle Oslo.
Grafen viser antall leiligheter solgt i Gamle Oslo siste året fordelt på pris per m² - totalt 2 066 leiligheter
Antall boliger
Kvadratmeterpris tilsvarer prisantydning pluss fellesgjeld per kvadratmeter (p-rom eller BRA-i). Prisene i grafen er avrundet til nærmeste 1000 kr.
Annonseinformasjon
| FINN-kode | 403152745 |
|---|---|
| Sist endret | 29. sep. 2025 11:40 |
| Referanse | 3257250057 |
Annonsene kan være mangelfulle i forhold til lovpålagt opplysningsplikt. Før bindende avtale inngås oppfordres interessenter til å innhente komplett informasjon fra meglerforetaket, selger eller utleier.





































