Bildegalleri

Dette er en innholdsrik tomannsbolig med to separate boenheter beliggende i et rolig, familievennlig og landlig boligområde. Foto: Hege Leren
Tomannsbolig med to separate boenheter på Fenstad! Praktisk generasjonsbolig eller for utleie | Garasje | Solrik tomt
Prisantydning4 500 000 kr
Nøkkelinfo
- Boligtype
- Tomannsbolig
- Eieform
- Eier (Selveier)
- Soverom
- 4
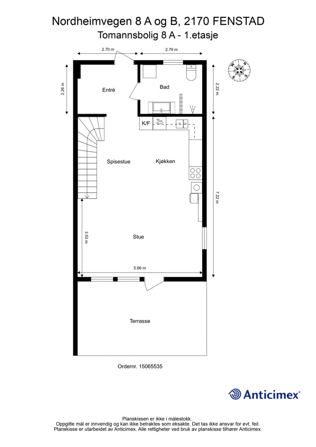
- Internt bruksareal
- 202 m² (BRA-i)
- Bruksareal
- 260 m²
- Eksternt bruksareal
- 58 m² (BRA-e)
- Balkong/Terrasse
- 47 m² (TBA)
- Byggeår
- 1958
- Energimerking
- G - Oransje
- Tomteareal
- 1 457 m² (eiet)
Fasiliteter
Barnevennlig
Balkong/Terrasse
Garasje/P-plass
Offentlig vann/kloakk
Peis/Ildsted
Turterreng
Rolig
Om boligen
EIE Jessheim v/ Julie Fredheim Maudal har gleden av å presentere Nordheimvegen 8A og B.
Dette er en innholdsrik tomannsbolig med to separate boenheter beliggende i et rolig, familievennlig og landlig boligområde. Eiendommen ligger ca. 1 km fra Fenstad sentrum i Nes kommune. Det er nærhet til barnehage, gangavstand til barneskole og til dagligvare butikk - Joker med post samt umiddelbar nærhet til idrettsanlegg på Fenstad Stadion.
Kvaliteter verdt å merke seg:
.To separate boenheter med egen uteplass
.Gode utleiemuligheter eller praktisk som generasjonsbolig
.Flat tomt på ca. 1,4 mål opparbeidet med gressplen, diverse planter og innkjørsel
.Godt med biloppstillingsplass eller parkering i garasje på ca. 58 kvm
.Peisovn
.Mange gode turområder i nærheten
Velkommen til en hyggelig visning!
Dette er en innholdsrik tomannsbolig med to separate boenheter beliggende i et rolig, familievennlig og landlig boligområde. Eiendommen ligger ca. 1 km fra Fenstad sentrum i Nes kommune. Det er nærhet til barnehage, gangavstand til barneskole og til dagligvare butikk - Joker med post samt umiddelbar nærhet til idrettsanlegg på Fenstad Stadion.
Kvaliteter verdt å merke seg:
.To separate boenheter med egen uteplass
.Gode utleiemuligheter eller praktisk som generasjonsbolig
.Flat tomt på ca. 1,4 mål opparbeidet med gressplen, diverse planter og innkjørsel
.Godt med biloppstillingsplass eller parkering i garasje på ca. 58 kvm
.Peisovn
.Mange gode turområder i nærheten
Velkommen til en hyggelig visning!
NB: Knappen for å vise hele beskrivelsen har kun en visuell effekt.
NB: Knappen for å vise hele beskrivelsen har kun en visuell effekt.
Salgsoppgaven beskriver vesentlig og lovpålagt informasjon om eiendommen
Se komplett salgsoppgaveNyttige lenker
Nærområdet
EIE eiendomsmegling Jessheim
Annonseinformasjon
| FINN-kode | 403121298 |
|---|---|
| Sist endret | 22. des. 2025 14:25 |
| Referanse | 20251236 |
Annonsene kan være mangelfulle i forhold til lovpålagt opplysningsplikt. Før bindende avtale inngås oppfordres interessenter til å innhente komplett informasjon fra meglerforetaket, selger eller utleier.


















































