Bildegalleri

Velkommen til Riihimækiveien 37 - en lys og romslig 4-roms toppleilighet i 4. etasje. Bad og vaskerom totalrenoveres NÅ og står klare fra 1. desember 2025.
4-roms toppleilighet | Nytt bad og vaskerom klart 01.12 | Innglasset balkong 14 kvm | Garasjeplass | Solrikt & sentralt
Nøkkelinfo
- Boligtype
- Leilighet
- Eieform
- Andel
- Soverom
- 3
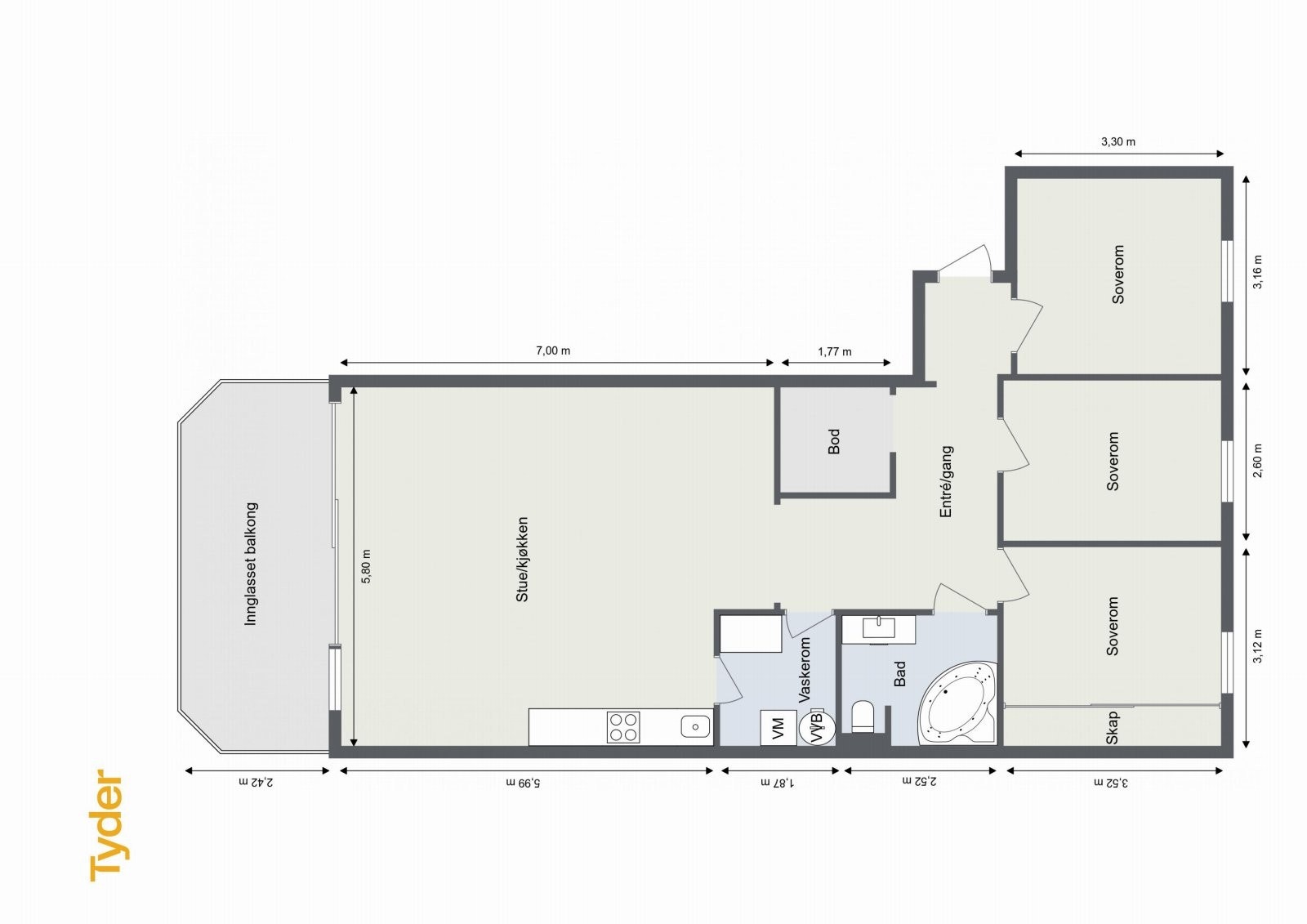
- Internt bruksareal
- 96 m² (BRA-i)
- Bruksareal
- 111 m²
- Eksternt bruksareal
- 1 m² (BRA-e)
- Innglasset balkong
- 14 m² (BRA-b)
- Etasje
- 4
- Byggeår
- 1975
- Energimerking
- F - Rød
- Tomteareal
- 12 949 m² (eiet)
- Boligselgerforsikring
- Ja
Fasiliteter
Visning
Om boligen
Riihimækiveien 37 er en lys og romslig 4-roms toppleilighet i 4. etasje. Bad og vaskerom totalrenoveres NÅ og står klare fra 1. desember 2025, med ny innredning og lysegrå fliser (Se bilder) ? en oppgradering som gir boligen et moderne og tidløst preg.
Leiligheten har åpen stue/kjøkken løsning med nyere Epoq-innredning, tre soverom og bod. Fra stuen er det utgang til en stor, innglasset balkong på 14 kvm med gode solforhold og fri utsikt. Ny laminat i stue/kjøkken, gang og soverom gir en helhetlig stil. Boligen ligger i et barnevennlig område med kort vei til skole, barnehage, butikker og gode kollektivforbindelser. Parkeringsplass i felles garasje følger med, og du slipper dokumentavgift ved kjøpet.
Ta kontakt med megler: Regine Hodt for visning
Salgsoppgaven beskriver vesentlig og lovpålagt informasjon om eiendommen
Se komplett salgsoppgaveNyttige lenker
Nærområdet

PrivatMegleren Lillestrøm
Annonseinformasjon
| FINN-kode | 403097048 |
|---|---|
| Sist endret | 20. okt. 2025 08:45 |
| Referanse | 24250128 |
Annonsene kan være mangelfulle i forhold til lovpålagt opplysningsplikt. Før bindende avtale inngås oppfordres interessenter til å innhente komplett informasjon fra meglerforetaket, selger eller utleier.






















