Bildegalleri

Fasade hageside
Søgne/Stifjellet | Moderne nytt rekkehus med sportsbod | barnevennlige | sjønære omgivelser
Prisantydning3 990 000 kr
Nøkkelinfo
- Boligtype
- Rekkehus
- Eieform
- Eier (Selveier)
- Soverom
- 3
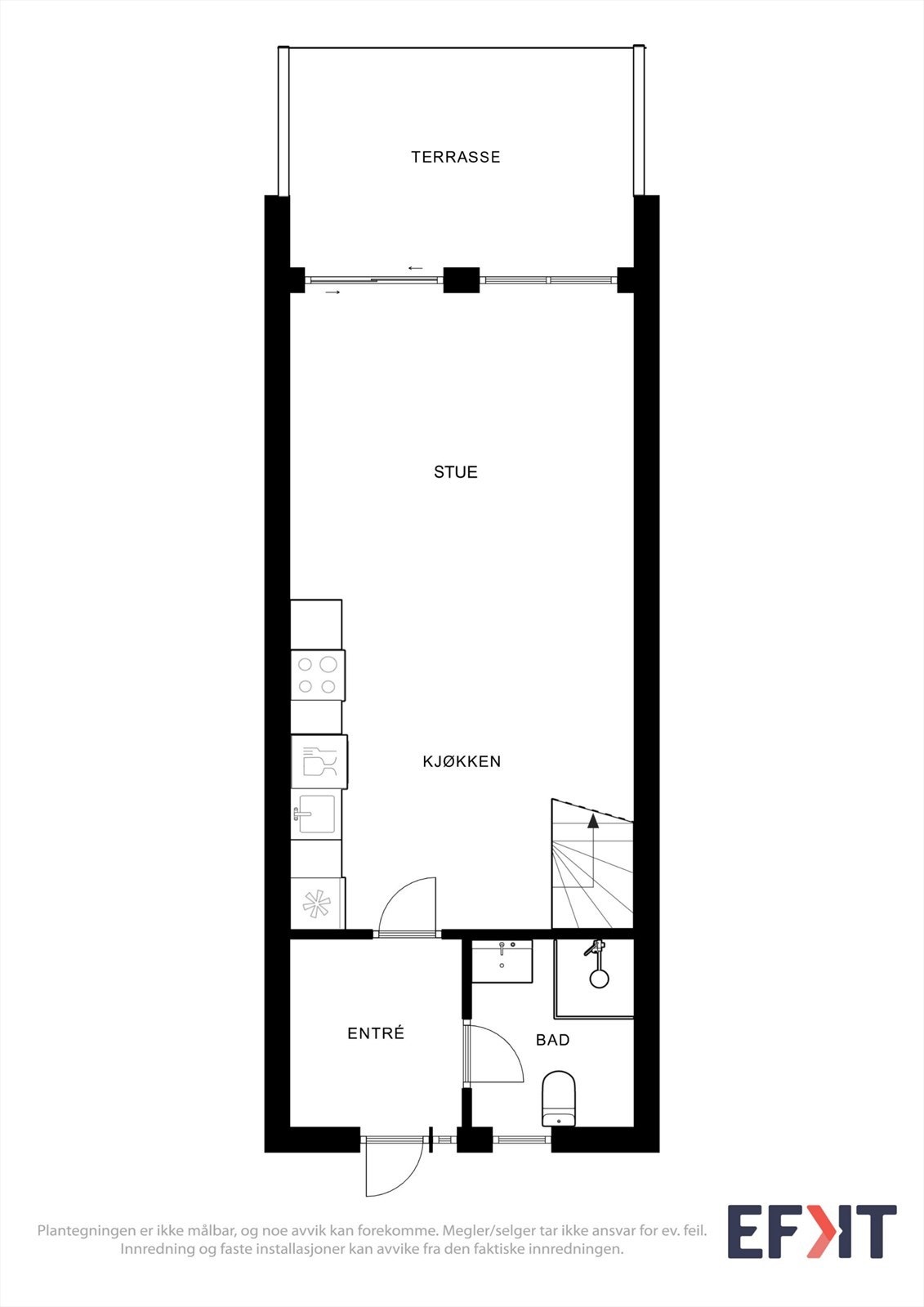
- Internt bruksareal
- 95 m² (BRA-i)
- Bruksareal
- 95 m²
- Etasje
- 1
- Byggeår
- 2025
- Rom
- 5
- Tomteareal
- 1 296 m² (eiet)
Fasiliteter
Balkong/Terrasse
Hage
Kjæledyr tillatt
Offentlig vann/kloakk
Rolig
Turterreng
Balansert ventilasjon
Om boligen
Ny flott rekkehusbebyggelse over to plan i arkitektonisk spennende bygg som ligger parallellforskjøvet og sikrer gode bokvaliteter for alle. Boligen er ikke tidligere vært bebodd og har ingen overflateslitasje. Det er en høy bygningsmessig utførelse på det arbeidet som er gjort. Med boligen følger det bod i felles bodrekke. Parkering på sameiets grunn. Boligen ligger i et nytt solrikt og spennende boligfelt i nærheten av Årosstranden, fantastiske tur og rekreasjonsområder i omgivelsene. Boligen har uteplass/terrasse, to bad og tre soverom.
NB: Knappen for å vise hele beskrivelsen har kun en visuell effekt.
NB: Knappen for å vise hele beskrivelsen har kun en visuell effekt.
Salgsoppgaven beskriver vesentlig og lovpålagt informasjon om eiendommen
Se komplett salgsoppgaveNærområdet
SPARESKILLINGSMEGLEREN AS
Vi selger ikke boliger, vi selger hjem.
Annonseinformasjon
| FINN-kode | 403071804 |
|---|---|
| Sist endret | 25. nov. 2025 07:30 |
| Referanse | SM1.2534 |
Annonsene kan være mangelfulle i forhold til lovpålagt opplysningsplikt. Før bindende avtale inngås oppfordres interessenter til å innhente komplett informasjon fra meglerforetaket, selger eller utleier.

































