Bildegalleri

Eiendomsmegler / Salgsleder / Partner Ken Martin Wigand presenterer Landåslien 15
VIDUNDERLIG TOPPLEILIGHET MED USJENERT / UTSIKTSVENDT BALKONG OG SOL FRA TIDLIG ETTERMIDDAG TIL SEN KVELD.
Nøkkelinfo
- Boligtype
- Leilighet
- Eieform
- Andel
- Soverom
- 2
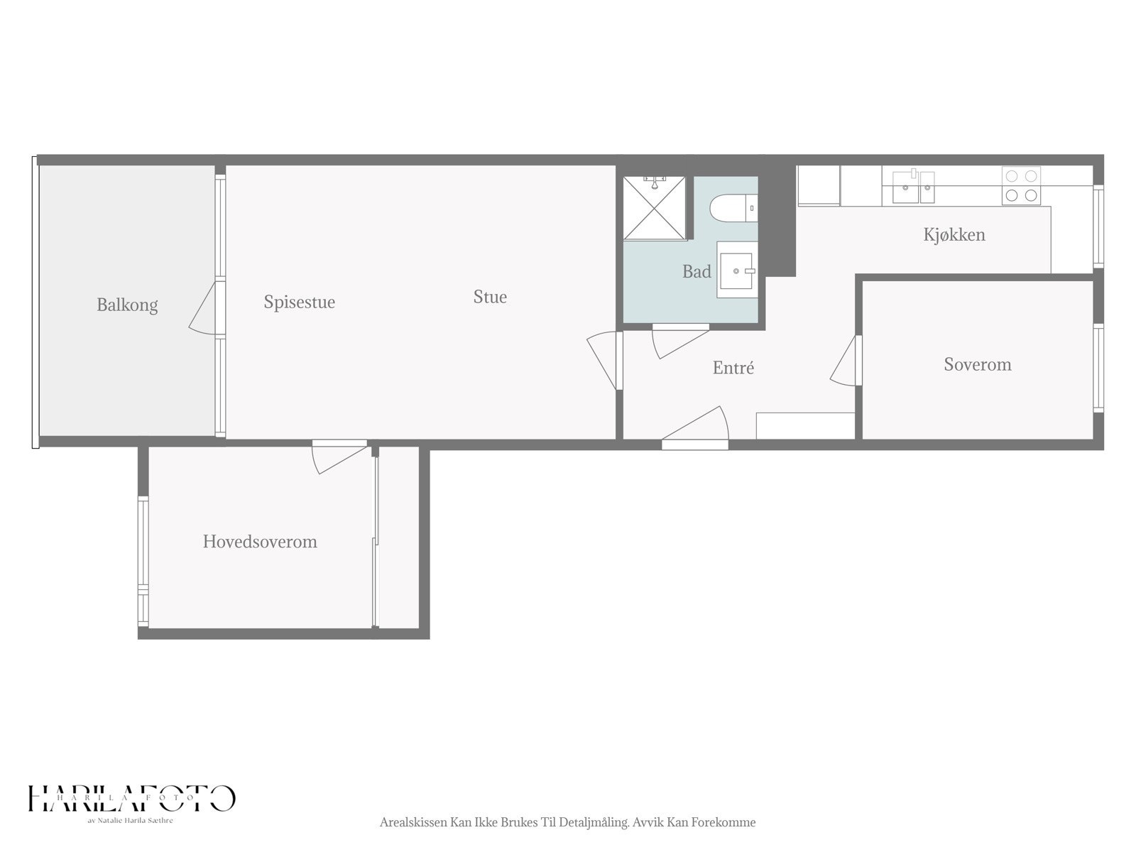
- Internt bruksareal
- 62 m² (BRA-i)
- Bruksareal
- 67 m²
- Eksternt bruksareal
- 5 m² (BRA-e)
- Balkong/Terrasse
- 9 m² (TBA)
- Etasje
- 3
- Byggeår
- 1956
- Energimerking
- G - Mørkegrønn
- Rom
- 3
- Tomteareal
- 41 562 m²
- Boligselgerforsikring
- Ja
Fasiliteter
Om boligen
En kort biltur, busstur eller bybanetur fra Bergen sentrum ligger Landås. Her er det veldig lett å bli imponert av den umiddelbare nærheten til alt og du rekker ikke en gang å høre to sanger i airpodsene før du står i matbutikken, på treningssenteret, på bussholdeplassen, på kjøpesenteret eller på bybanen. I Landåslien 15 kommer dere hjem til en vidunderlig toppleilighet med en praktisk planløsning bestående av en innbydende entré, en appellerende stue, en solvendt balkong med ettermiddag / kveldssol, et moderne kjøkken, et delikat badeværelse og to lune soveværelser. Forkjøpsretten har blitt utlyst i forkant av salget for rask avklaring, det betales ingen dokumentavgift ved kjøp og styreleder opplyser om at det ikke foreligger planer som medfører økning i felleskostnadene.
Salgsoppgaven beskriver vesentlig og lovpålagt informasjon om eiendommen
Se komplett salgsoppgaveNyttige lenker
Nærområdet
Proaktiv Eiendomsmegling Sandviken & Bergen Nord
Annonseinformasjon
| FINN-kode | 403041496 |
|---|---|
| Sist endret | 27. apr. 2025 18:34 |
| Referanse | 74240061 |
Annonsene kan være mangelfulle i forhold til lovpålagt opplysningsplikt. Før bindende avtale inngås oppfordres interessenter til å innhente komplett informasjon fra meglerforetaket, selger eller utleier.




































