Bildegalleri

Velkommen til Vekslerveien 7 - Presentert av Joakim Hjelm ved Nordvik Bolig!
Solgt
Løren
Lys og gjennomgående 3-r med solrik balkong, heis og garasjeplass. Lave felleskostnader. Varmtvann og fyring ink.
Prisantydning6 150 000 kr
Nøkkelinfo
- Boligtype
- Leilighet
- Eieform
- Eier (Selveier)
- Soverom
- 2
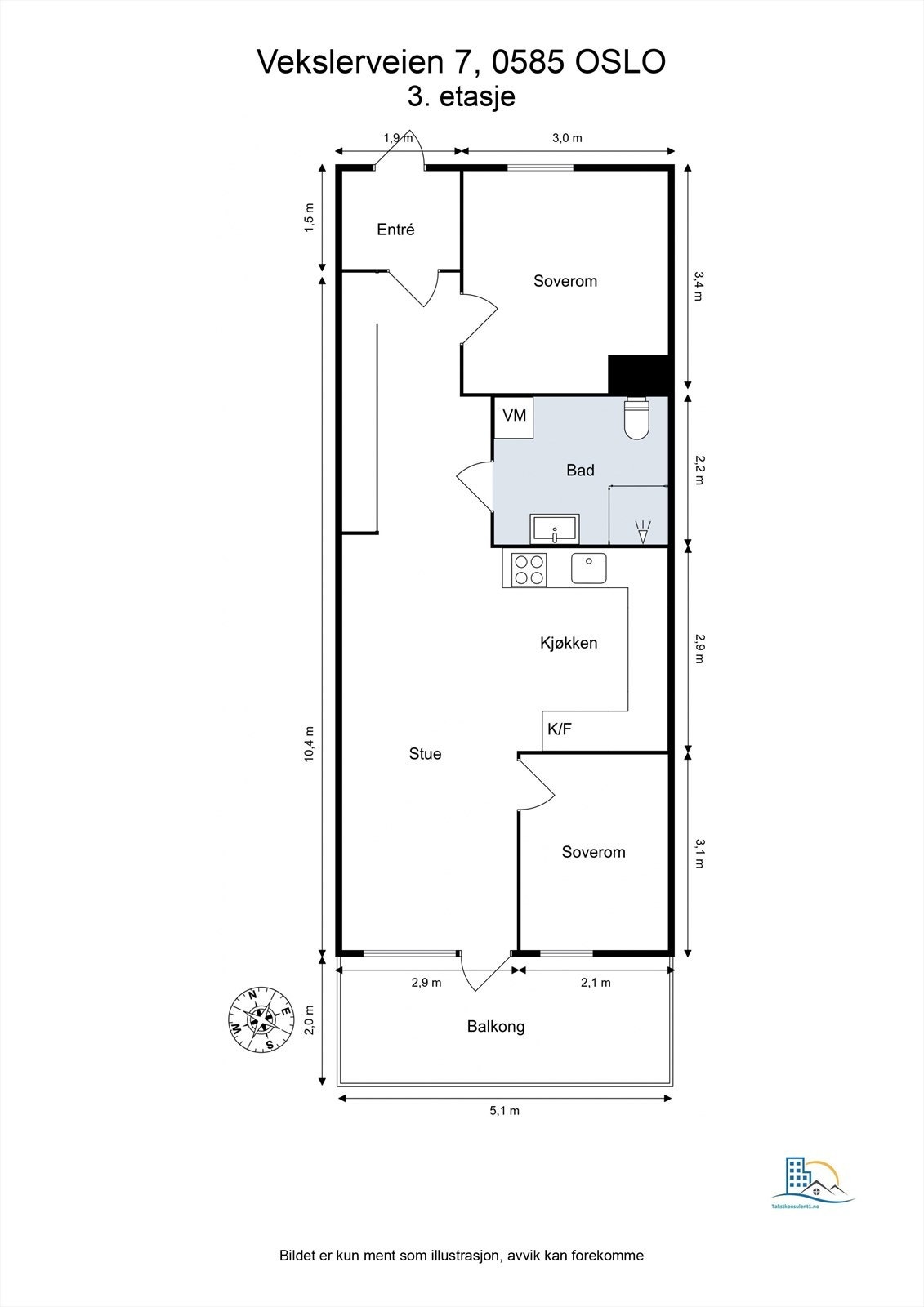
- Internt bruksareal
- 60 m² (BRA-i)
- Bruksareal
- 65 m²
- Eksternt bruksareal
- 5 m² (BRA-e)
- Balkong/Terrasse
- 10 m² (TBA)
- Etasje
- 3
- Byggeår
- 2012
- Energimerking
- D - Mørkegrønn
- Rom
- 3
- Tomteareal
- 7 393 m² (eiet)
Fasiliteter
Balkong/Terrasse
Barnevennlig
Bredbåndstilknytning
Garasje/P-plass
Heis
Kjæledyr tillatt
Kabel-TV
Offentlig vann/kloakk
Rolig
Sentralt
Vaktmester-/vektertjeneste
Turterreng
Lademulighet
Om boligen
Velkommen til Vekslerveien 7! Dette er en moderne 3-roms eierleilighet med gode lysforhold, stor og solrik balkong, og privat garasjeplass i felles anlegg. Leiligheten er bl.a. oppgradert med nytt 1-stav gulv fra 2022 og malte overflater i stuen fra 2021, i tillegg byr leiligheten på to gode soverom
Eiendommen er beliggende "midt i hjertet" av Løren, med kort vei til alt av servicetilbud og offentlig kommunikasjon
Fremtredende kvaliteter
Eiendommen er beliggende "midt i hjertet" av Løren, med kort vei til alt av servicetilbud og offentlig kommunikasjon
Fremtredende kvaliteter
- 3-roms med god standard
- Garasjeplass
- Heisadkomst til/fra garasjeanlegg
- To soverom med garderobeløsning på hovedsoverommet
- Bod i felles kjeller
- Lave felleskostnader
- Varmtvann og fyring inkludert i fellesutgiftene
- Sykkelparkering i parkeringskjeller
- Gå tørrskodd til Løren torg gjennom garasjeanlegg
NB: Knappen for å vise hele beskrivelsen har kun en visuell effekt.
NB: Knappen for å vise hele beskrivelsen har kun en visuell effekt.
Salgsoppgaven beskriver vesentlig og lovpålagt informasjon om eiendommen
Se komplett salgsoppgaveNyttige lenker
Nærområdet
Nordvik Løren
Annonseinformasjon
| FINN-kode | 403040206 |
|---|---|
| Sist endret | 01. mai 2025 12:34 |
| Referanse | 21-0052/25 |
Annonsene kan være mangelfulle i forhold til lovpålagt opplysningsplikt. Før bindende avtale inngås oppfordres interessenter til å innhente komplett informasjon fra meglerforetaket, selger eller utleier.





































