Bildegalleri

Nydelig utsikt mot sjø og byliv.
BUD INNKOMMET - Romslig leilighet med fantastisk utsikt og beliggenhet, med spennende utviklingsmuligheter på loft
Prisantydning4 850 000 kr
Nøkkelinfo
- Boligtype
- Leilighet
- Eieform
- Eier (Selveier)
- Soverom
- 3
- Internt bruksareal
- 168 m² (BRA-i)
- Bruksareal
- 168 m²
- Balkong/Terrasse
- 3 m² (TBA)
- Etasje
- 2
- Byggeår
- 1870
- Energimerking
- G - Oransje
- Rom
- 6
- Tomteareal
- 189 m² (eiet)
Fasiliteter
Balkong/Terrasse
Kabel-TV
Alarm
Offentlig vann/kloakk
Parkett
Utsikt
Aircondition
Sentralt
Bredbåndstilknytning
Moderne
Bademulighet
Om boligen
Innbydende leilighet med fantastisk beliggenhet midt i hjertet av Kragerø! Her bor du blant sjarmerende trehus og trange gater med vakker utsikt over Lilletorget og skjærgården - kun få meter fra bryggekanten og Blindtarmen.
Bygget er fra 1870 men ble renovert i 2016 med oppgradering til dagens standard og komfort. Det ble installert moderne tekniske installasjoner som sprinkel og brannvarslingsanlegg i hele bygget, med direkte kobling til brannvesenet. Det er fire leiligheter i bygget, denne leiligheten er den eneste som har balkong og er også den største. De originale dørene er bevart og gir leiligheten sjel.
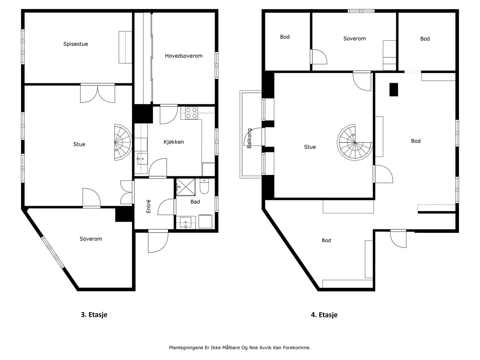
Leiligheten går over to etasjer og loftetasjen er delvis innredet. I tillegg er det et stort loft med egen inngang fra hovedtrapp og med spennende utviklingsmuligheter.
Boligen inneholder (fordelt på to etasjer):
Gang, bad, kjøkken, 3 soverom, stue, spisestue, loftstue og uinnredet loft med spennende utviklingsmulighet.
Utvendig sportsbod
Bygget er fra 1870 men ble renovert i 2016 med oppgradering til dagens standard og komfort. Det ble installert moderne tekniske installasjoner som sprinkel og brannvarslingsanlegg i hele bygget, med direkte kobling til brannvesenet. Det er fire leiligheter i bygget, denne leiligheten er den eneste som har balkong og er også den største. De originale dørene er bevart og gir leiligheten sjel.
Leiligheten går over to etasjer og loftetasjen er delvis innredet. I tillegg er det et stort loft med egen inngang fra hovedtrapp og med spennende utviklingsmuligheter.
Boligen inneholder (fordelt på to etasjer):
Gang, bad, kjøkken, 3 soverom, stue, spisestue, loftstue og uinnredet loft med spennende utviklingsmulighet.
Utvendig sportsbod
NB: Knappen for å vise hele beskrivelsen har kun en visuell effekt.
NB: Knappen for å vise hele beskrivelsen har kun en visuell effekt.
Salgsoppgaven beskriver vesentlig og lovpålagt informasjon om eiendommen
Se komplett salgsoppgaveNyttige lenker
Nærområdet
Privatmegleren Kragerø
Kun det beste på dine vegne
Annonseinformasjon
| FINN-kode | 402985635 |
|---|---|
| Sist endret | 03. feb. 2026 19:24 |
| Referanse | 322250019 |
Annonsene kan være mangelfulle i forhold til lovpålagt opplysningsplikt. Før bindende avtale inngås oppfordres interessenter til å innhente komplett informasjon fra meglerforetaket, selger eller utleier.








































